Eladó átlagos állapotú ház - Velence
- INGYENES HIRDETÉS FELADÁS
Ingatlan adatai
- Eladó vagy kiadó:Eladó
- Település:Velence
- Kategória:Ház
- Alkategória:Családi ház
- Alapterület:100 m2
- Telekterület:473 m2
- Csere is:Nem
- Hirdető:Cég
- Élő videón megtekinthető:Nem
- Építés éve:1976
- Szobaszám:4
- Állapot:Átlagos állapotú
- Hány szintes az ingatlan:2 szintes
- Tetőtér:nincs megadva
- Komfortosság:nincs megadva
- Pince:nincs megadva
- Parkolási lehetőség:Teremgarázsban
- Fűtés:Gáz (cirko)
- Bútorozottság:nincs megadva
- Fényviszony:nincs megadva
- Tájolás:nincs megadva
- Kilátás:nincs megadva
- Internet:nincs megadva
- Klíma:nincs megadva
- Akadálymentesített:nincs megadva
- Energiatanúsítvány:nincs megadva
- Villany:Telken belül
- Víz:Telken belül
- Gáz:Telken belül
- Csatorna:Telken belül
- Kapcsolatfelvétel

Lepsényi Kornél
+36-70-884-0188
Mondd meg a hirdetőnek, hogy a megveszLAK-on találtad a hirdetést.
Hitel ajánlatok
Ingatlan hirdetés leírása
Velence csendes környékén, Újtelepen kínálunk eladásra egy fel...
Velence csendes környékén, Újtelepen kínálunk eladásra egy felújítandó családiházat.
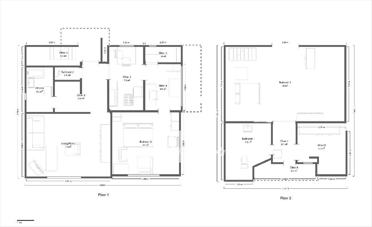
Az ingatlan 1976-ban épült, tégla szerkezetű családi ház, amely lakóövezeti besorolású területen található. a ház alapterülete 100 nm , a telek területe 473 nm , megközelítőleg 20 x 20 méteres mérettel. Az épület kétszintes, belmagassága 2, 7 méter.
A fűtésről gáz-cirkó rendszer gondoskodik radiátoros hőleadással. a közművek: víz, villany, csatorna és gáz a telken belül rendelkezésre állnak. a nappali déli tájolású, így az ingatlan fényviszonyai kedvezőek. Parkolás garázsban biztosított.
A földszinten található egy 18 nm -es nappali, egy 14 nm -es szoba, egy 7, 3 nm -es konyha, az ahhoz kapcsolódó 5, 5 nm -es étkező, valamint egy 1, 9 nm -es kamra. Ezen a szinten kapott helyet továbbá egy 4 nm -es fürdőszoba, egy különálló, 1, 1 nm -es wc, valamint egy 6, 9 nm -es közlekedő. a bejárati ajtónál tetővel rendelkező kétoldalról megközelíthető lépcső is megtalálható. Az oldal kert irányában pedig egy kényelmes terasz található, amelynél a ház saját fala és tetőszerkezete természetes védelmet nyújt az eső és a szél ellen.
Az emeleten egy tágas, 20 nm -es szoba, egy 6, 3 nm -es szoba, egy 7, 5 nm -es fürdőszoba, valamint egy 3 nm -es közlekedő található. a közlekedőből nyílik az erkély, ahol kényelmesen elfogyaszthatjuk a reggeli kávénkat.
Az ingatlan jogilag rendezett, a térképmásolaton minden feltüntetésre került. Ügyfeleink részére díjmentesen biztosítunk előzetes hitelbírálatot, piaci hitel esetén egyedi kamatot adunk és teljeskörű támogatást adunk egészen a birtokbavételig! Keressen bizalommal akár hétvégén is! FIX 3% lakáshitelre megvehető
Tetszett ez az eladó Velencei átlagos állapotú 4 szobás családi ház? Hívd fel a hirdetőt most, és tudj meg mindent erről az eladó családi házról! Ha gondolod nézelődj tovább az eladó ház Velence oldal hirdetései között. Ennek az eladó háznak az ára 69000000 Ft és mivel az alapterülete 100 négyzetméter, ezért az átlagos négyzetméterára 690000 HUF/m2.
Az eladó házak menüpontban további hirdetések között is böngészhetsz. Ha van kedved, akkor böngészhetsz a Lepsényi Kornél összes hirdetése között, vagy akár a/az Gárdony Bóné Kálmán utca 12 - OTP Ingatlanpont Iroda összes hirdetése között is.

