Eladó vendéglátási ingatlan Tuzsér
| Kedvencbe | Megosztás | Árfigyelő |
| Kedvezményes lakáshitel ajánlatok | ||
| 15 900 000 HUF | ||
Ingatlan adatai
- Eladó vagy kiadó:Eladó
- Település:Tuzsér
- Kategória:Vendéglátás
- Alkategória:Étterem, vendéglő
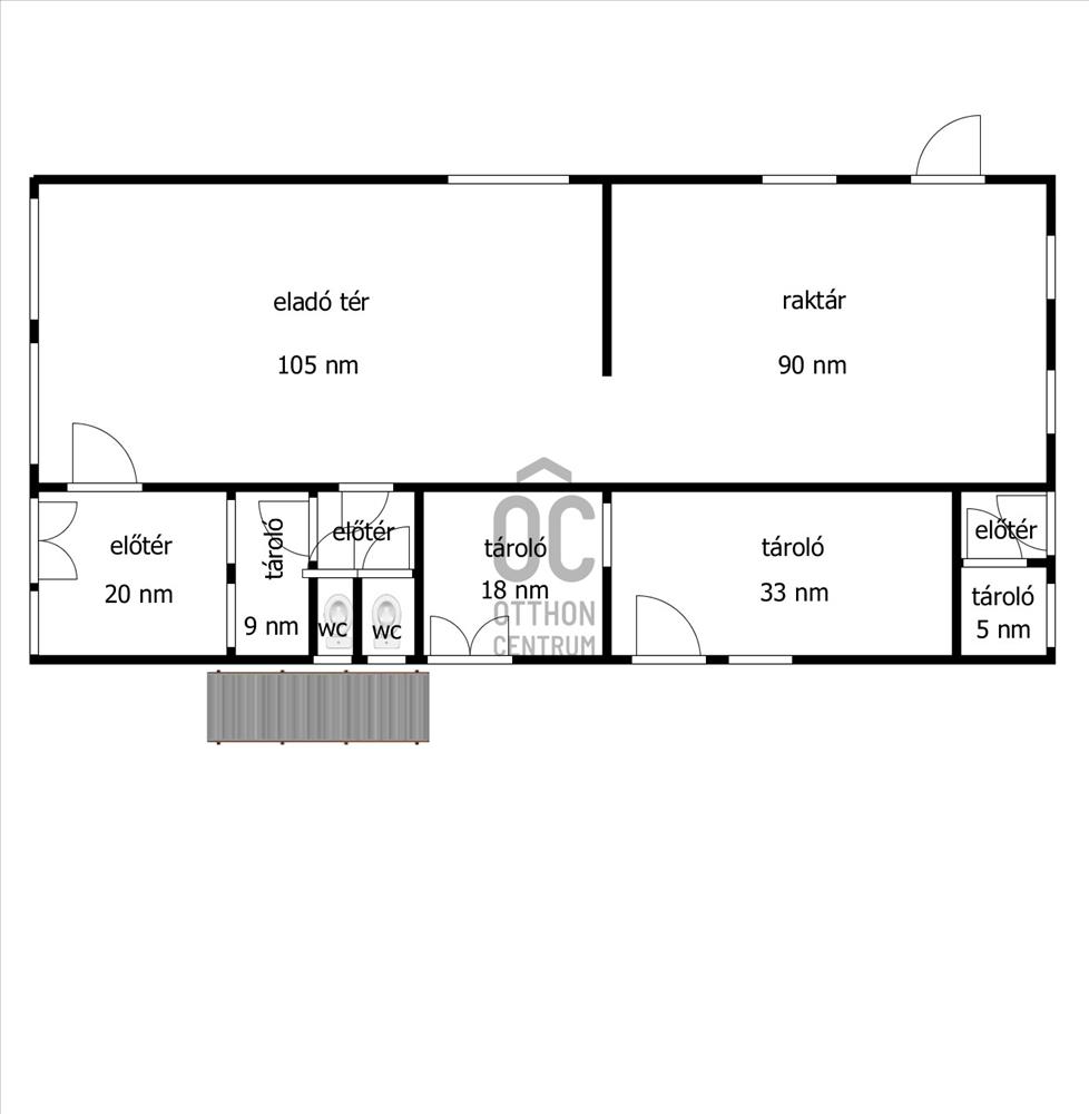
- Alapterület:270 m2
- Telekterület:1294 m2
- Csere is:Nem
- Hirdető:Cég
- Élő videón megtekinthető:Nem
- Építés éve:1980
- Szobaszám:nincs megadva
- Hány szintes az ingatlan:nincs megadva
- Hányadik emeleti:nincs megadva
- Parkolási lehetőség:nincs megadva
- Bútorozottság:nincs megadva
- Fényviszony:nincs megadva
- Tájolás:nincs megadva
- Internet:nincs megadva
- Akadálymentesített:nincs megadva
- Energiatanúsítvány:nincs megadva
- Üzenetküldés
- Hívás


Hitel ajánlat
Ingatlan hirdetés leírása
Megvételre kínálok Tuzséron, az ukrán határtól (Záhony) 9 kilo...
Megvételre kínálok Tuzséron, az ukrán határtól (Záhony) 9 kilométerre, közvetlenül a 4. Számú főút mellett, egy a 80 -as években téglából épült, hullám palával fedett nettó 270 nm -es, üzleti célú ingatlant 1294 nm -es telken. Az épület korábban élelmiszer diszkontkén üzemelt, de tulajdonosváltás után felújították, 2024 -ben az ablakokat hőszigetelt műanyagra cserélték, belül kialakítottak egy konyhát, a vizesblokkokat, továbbá egy iroda helyiséget. Az ingatlanban jelenleg nincs fűtés de az elektromos hálózatot hűtő-fűtő klímákra építették ki. Az épületet családi események (eljegyzés, lakodalom, érettségi) megtartására hasznosítják bérbeadással, de a méreténél fogva kiválóan alkalmas lehet raktározás, logisztikai központ, tárolás, vagy kereskedelmi célokra is.Tuzsér eladó üzleti ingatlan Hitel.hu - Hasonlítsa össze a bankok lakáshitel ajánlatait
Tetszett ez az eladó Tuzséri vendéglátási ingatlan? Hívd fel a hirdetőt most, és tudj meg mindent erről az eladó vendéglátási ingatlanról! Ha gondolod nézelődj tovább az eladó vendéglátási ingatlan Tuzsér oldal hirdetései között.
Az eladó vendéglátási ingatlanok menüpontban további hirdetések között is böngészhetsz. Ha van kedved, akkor böngészhetsz a Czeglédi Csaba összes hirdetése között, vagy akár a/az Otthon Centrum Kisvárda összes hirdetése között is.

