Eladó fejlesztési terület - Nyíregyháza
- INGYENES HIRDETÉS FELADÁS
Ingatlan adatai
- Eladó vagy kiadó:Eladó
- Település:Nyíregyháza
- Kategória:Fejlesztési terület
- Alkategória:Lakóterület
- Alapterület:nincs megadva
- Telekterület:712 m2
- Csere is:Nem
- Hirdető:Cég
- Élő videón megtekinthető:Nem
- Villany:nincs megadva
- Víz:nincs megadva
- Gáz:nincs megadva
- Csatorna:nincs megadva
- Kapcsolatfelvétel

Nádasdi Bence
+36-(20)-451-6275
Mondd meg a hirdetőnek, hogy a megveszLAK-on találtad a hirdetést.
Referencia szám: M319716
Hitel ajánlatok
Ingatlan hirdetés leírása
Eladó Ipari terület, Nyíregyháza
Nyíregyháza-Kertváros: Kiemelkedő adottságú, 363 nm -es irodaház és telephely eladó!
Nyíregyháza egyik legkedveltebb részén, a Kertvárosban kínálunk eladásra egy 2005-ös építésű, minden szempontból professzionális ipari és kereskedelmi ingatlant. a 712 nm -es, szabályos négyzet alakú telken fekvő épület jelenleg egy sikeres webshop központjaként és gyártóegységeként funkcionál. Kiváló választás azonnali használatba vételre vagy modern irodaház kialakítására.
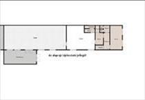
Alapterület és elosztás:
Az épület hasznos belső alapterülete 363 nm , amelyet egy 25 nm -es garázs és egy 30 nm -es fedett terasz egészít ki (így a teljes fedett terület összesen több mint 418 nm ).
A helyiségek csoportosítva:
Munkaterek és irodák (összesen 313 nm ):
Központi csarnok/nagyterem: 93, 5 nm
Tágas iroda/műhely: 54 nm
További 6 különálló helyiség: 46, 5 nm , 39 nm , 37 nm , 17, 4 nm , 13, 1 nm és 12, 5 nm .
Kiszolgáló és szociális blokk:
2 konyha (5 nm , 1, 9 nm ) és kamra (2 nm ).
Fürdőszoba (5, 3 nm ) és összesen 4 különálló WC/mosdó helyiség.
Két kényelmes közlekedő/előtér (5, 7 nm és 2 nm ).
Technikai helyiségek:
Belső tárolók (7 nm és 3, 3 nm ), kazánház (2 nm ) és lépcsőház (7, 5 nm ).
Gépjármű tárolás és pihenő:
25 nm -es saját garázs.
30 Nm-es fedett terasz.
Műszaki jellemzők:
Szigetelés: 38-as tégla falazat + 8 cm-es külső hőszigetelés.
Állapot: Kifogástalan tetőszerkezet, esztétikus hideg- és melegburkolatok.
Rezsiköltség: a cirkó gázfűtés havi átlagdíja rendkívül kedvező, mindössze 30 000 Ft körül alakul.
Miért kiváló befektetés?
Sokoldalúság: Szerkezeti adottságai révén az épület akár 4 különálló lakássá is átalakítható, így ingatlanfejlesztőknek is nagy profitot ígér.
Raktározás: Az udvaron található mobil fém raktárak megegyezés szerint átvehetők.
Logisztika: Az autópálya és vasút közelsége, valamint a buszközlekedés és az ingyenes utcai parkolás kiemelkedő.
Jogtiszta: Tehermentes, 1/1 céges tulajdon, azonnal hitelezhető.
Ügyintézés: Az OTP Bankcsoport teljes körű támogatást nyújt! Igény szerint megbízható ügyvédi közreműködést és soron kívüli, díjmentes hiteltanácsadást biztosítunk.
Referenciaszám: m319716 Hitel.hu - Hasonlítsa össze a bankok lakáshitel ajánlatait
Tetszett ez az eladó Nyíregyházai fejlesztési terület? Hívd fel a hirdetőt most, és tudj meg mindent erről az eladó fejlesztési területről! Ha gondolod nézelődj tovább az eladó fejleszttési terület Nyíregyháza oldal hirdetései között.
Az eladó fejlesztési területek menüpontban további hirdetések között is böngészhetsz. Ha van kedved, akkor böngészhetsz a Nádasdi Bence összes hirdetése között, vagy akár a/az OTPip Nyíregyháza Sólyom utca 4 - OTP Ingatlanpont Iroda összes hirdetése között is.

