Eladó befejezetlen ház - Budapest X. kerület
- INGYENES HIRDETÉS FELADÁS
Ingatlan adatai
- Eladó vagy kiadó:Eladó
- Település:Budapest X. kerület
- Kategória:Ház
- Alkategória:Ikerház
- Alapterület:122 m2
- Telekterület:231 m2
- Csere is:Nem
- Hirdető:Cég
- Élő videón megtekinthető:Nem
- Építés éve:2025
- Szobaszám:4
- Állapot:Befejezetlen
- Hány szintes az ingatlan:2 szintes
- Tetőtér:nincs megadva
- Komfortosság:nincs megadva
- Pince:nincs megadva
- Parkolási lehetőség:Garázsban
- Fűtés:nincs megadva
- Bútorozottság:nincs megadva
- Fényviszony:nincs megadva
- Tájolás:nincs megadva
- Kilátás:nincs megadva
- Internet:nincs megadva
- Klíma:nincs megadva
- Akadálymentesített:nincs megadva
- Energiatanúsítvány:nincs megadva
- Villany:Van
- Víz:Van
- Gáz:Nincs
- Csatorna:Van
- Kapcsolatfelvétel

Hallai Mónika
+36-(30)-649-5546
Mondd meg a hirdetőnek, hogy a megveszLAK-on találtad a hirdetést.
Hitel ajánlatok
Ingatlan hirdetés leírása
Új építésű, kétszintes ikerház prémium felszereltséggel és bút...
Új építésű, kétszintes ikerház prémium felszereltséggel és bútorzattal
Csendes környezet – Magas minőségű kivitelezés – Teljes digitális átláthatóság!
Budapest x. kerületének egyik legnyugodtabb mellékutcájában, kiváló közlekedési és infrastrukturális adottságok mellett készül ez a korszerű, kétszintes ikerház.
Az építkezés teljes folyamata átláthatóan nyomon követhető!
Főbb adatok
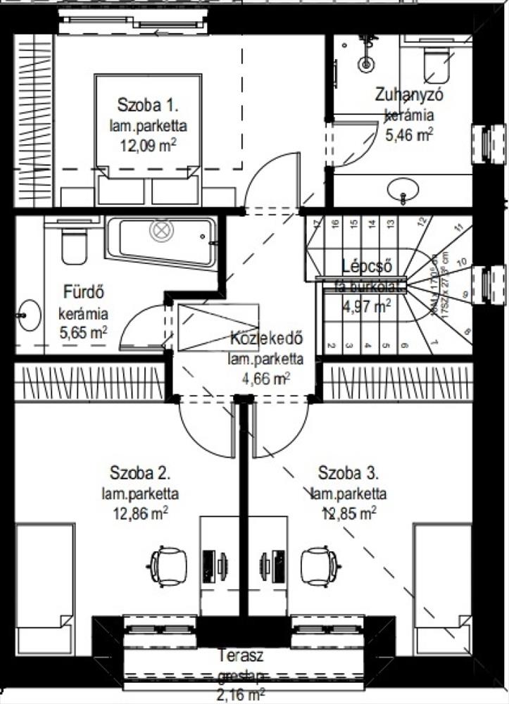
Hasznos alapterület: 122 m²
Telekméret: 231 m² saját kerttel
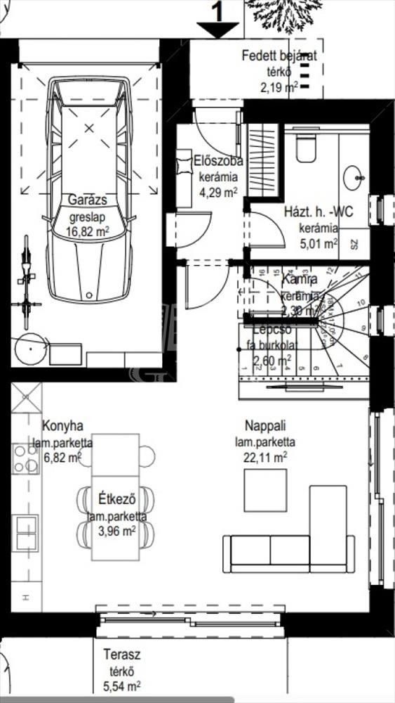
Szintek száma: földszint + emelet
Hálószobák: 3 külön nyíló szoba
Fürdőszobák: összesen 3 (2 az emeleten, 1 a földszinten)
Nappali: 33 m²-es amerikai konyhás tér, közvetlen teraszkapcsolattal
Parkolás: fedett garázs, nagyobb méretű autó számára is ideális
Műszaki felszereltség
POROTHERM 30 n+f téglafalak, monolit vasbeton födémszerkezet
15 cm homlokzati eps hőszigetelés + 20 cm födémszigetelés
Hőszivattyúval működő mennyezeti fűtés és hűtés
3 rétegű hőszigetelt nyílászárók és biztonsági bejárati ajtó
Laminált parketta és kerámia burkolatok kombinációja
Terrán Zenit Max Carbon tetőcserép
Kiemelt extrák
Komplett okosotthon rendszer
Motoros alumínium redőnyök
Kamera- és riasztórendszer előkészítés
Videó kaputelefon
Elektromos kapu és autótöltési lehetőség
Automata kertöntöző
WPC kerítés, rejtett világítás, kültéri lámpatestek
Légtechnikai rendszer kiépítve
Digitális projektkövetés – PlanRadar
A vásárló:
Élőben követheti az építkezés előrehaladását telefonon
Kéthetente részletes fotódokumentációt kap
Az átadáskor digitálisan megkap minden szükséges hivatalos dokumentumot (garanciák, tervrajzok, jegyzőkönyvek)
Finanszírozási lehetőségek tárháza
Hitelből is megvásárolható
Díjmentes hitelügyintézés minden hazai bank felé
Elérhető aktuális állami támogatások
Várható átadás: 2026. III. Negyedév
Ez az ingatlan ideális választás mindazok számára, akik modern, biztonságos és kényelmes otthont szeretnének. Ne hagyja ki ezt a kivételes lehetőséget!
ID: 390142 FIX 3% lakáshitelre megvehető
Tetszett ez az eladó Budapest X. kerületi befejezetlen 4 szobás ikerház? Hívd fel a hirdetőt most, és tudj meg mindent erről az eladó ikerházról! Ha gondolod nézelődj tovább az eladó ház Budapest X. kerület oldal hirdetései között. Ennek az eladó háznak az ára 145000000 Ft és mivel az alapterülete 122 négyzetméter, ezért az átlagos négyzetméterára 1188525 HUF/m2.
Az eladó házak menüpontban további hirdetések között is böngészhetsz. Ha van kedved, akkor böngészhetsz a Hallai Mónika összes hirdetése között, vagy akár a/az GDN Ingatlanhálózat összes hirdetése között is.

