Eladó új építésű ház - Budapest XVIII. kerület
- INGYENES HIRDETÉS FELADÁS
Ingatlan adatai
- Eladó vagy kiadó:Eladó
- Település:Budapest XVIII. kerület
- Kategória:Ház
- Alkategória:Ikerház
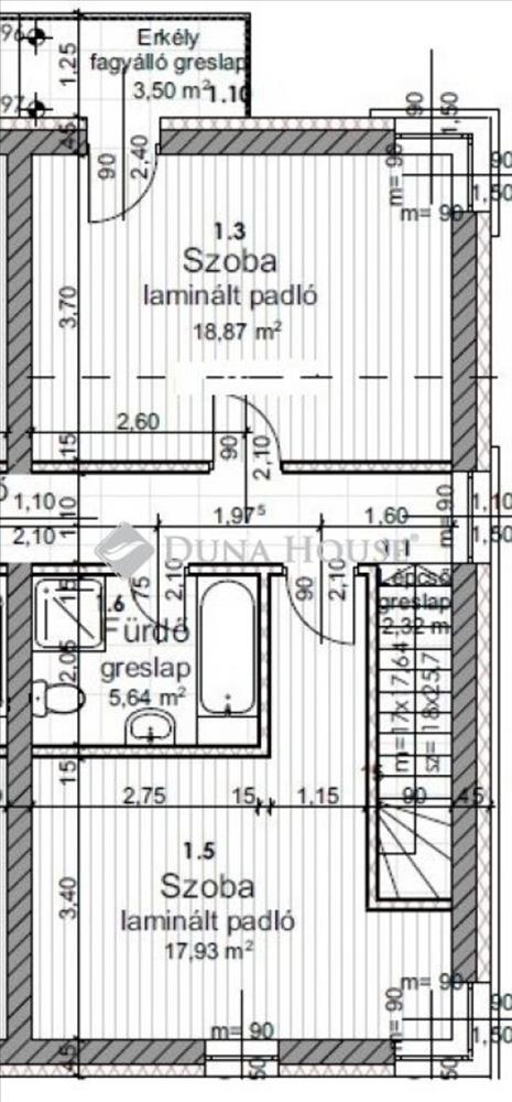
- Alapterület:112 m2
- Telekterület:1310 m2
- Csere is:Nem
- Hirdető:Cég
- Élő videón megtekinthető:Nem
- Építés éve:2026
- Szobaszám:3
- Állapot:Új építésű
- Hány szintes az ingatlan:Földszintes
- Tetőtér:nincs megadva
- Komfortosság:nincs megadva
- Pince:nincs megadva
- Parkolási lehetőség:nincs megadva
- Fűtés:Elektromos
- Bútorozottság:nincs megadva
- Fényviszony:Napfényes
- Tájolás:ÉK
- Kilátás:nincs megadva
- Internet:nincs megadva
- Klíma:nincs megadva
- Akadálymentesített:nincs megadva
- Energiatanúsítvány:nincs megadva
- Villany:Van
- Víz:Van
- Gáz:Utcában
- Csatorna:Van
- Kapcsolatfelvétel

Sárvári-Darai Renáta
+36-(30)-177-8474
Mondd meg a hirdetőnek, hogy a megveszLAK-on találtad a hirdetést.
Referencia szám: HZ040067
Hitel ajánlatok
Ingatlan hirdetés leírása
Eladó ház, Budapest 18. ker.
Új építésű, amerikai konyhás nappali + 2 szobás, napelemes, erkélyes ikerházfél GanzkertvárosbanEladó Budapest 18. kerületében, Ganzkertváros csendes, új építésű részén egy nettó 110 nm - es, amerikai konyhás nappali + 2 szobás ikerházfél 255 nm - es telekkel. Az ingatlan földszinti helyiségei: amerikai konyhás nappali, kamra, gardrób, előszoba, fürdőszoba, terasz. a lakás nettó földszinti alapterület: 51 nm . Az ingatlan emeleti helyiségei: 2 db tágas hálószoba, közlekedő, fürdőszoba, erkély. a lakás nettó emeleti alapterület: 51, 5 nm Műszaki leírás:- 30 - as phorotherm tégla- 10 cm szigetelés- hideg- és melegburkolatok 6. 000 / Nm-ig- beton födém- műanyag nyílászárók- műanyag bejárati ajtó, garázskapu- infra film fűtés- napelem 5 kWh10% önerővel megvásárolható, birtokbaadás akár 1 hónapon belül! Teljes műszaki leírás, méretarányos tervrajz, teljes dokumentáció irodánkban megtekinthető. a Duna House teljes kínálatával kapcsolatban forduljon hozzám bizalommal. Hitel ügyintézés garantáltan a legjobb feltételekkel és a leggyorsabban. Eladás és vétel teljes körű ügyintézése, ingyenes tanácsadás, értékbecslés, megbízható ügyvédi háttér biztosítása. IGÉNY esetén - élő skypevideo lakásbemutatás, teljes körű online ÜGYINTÉZÉS!
130000000 Ft
Referencia szám: hz040067 FIX 3% lakáshitelre megvehető
Tetszett ez az eladó Budapest XVIII. kerületi új építésű 3 szobás ikerház? Hívd fel a hirdetőt most, és tudj meg mindent erről az eladó ikerházról! Ha gondolod nézelődj tovább az eladó ház Budapest XVIII. kerület oldal hirdetései között. Ennek az eladó háznak az ára 130000000 Ft és mivel az alapterülete 112 négyzetméter, ezért az átlagos négyzetméterára 1160714 HUF/m2.
Az eladó házak menüpontban további hirdetések között is böngészhetsz. Ha van kedved, akkor böngészhetsz a Sárvári-Darai Renáta összes hirdetése között, vagy akár a/az Duna House Kispest összes hirdetése között is.

