- >>
- eladó ingatlanok
- >>
- eladó ház
- >>
- eladó ház Debrecen
- >>
Eladó új építésű ház - Debrecen
| | |||
| Kedvencnek jelölöm | Elküldöm emailben | Megosztás | Szavazás |
| Kedvezményes lakáshitel ajánlatok | |||
| 199 900 000 HUF | |||
Ingatlan adatai
- Eladó vagy kiadó:Eladó
- Település:Debrecen
- Kategória:Ház
- Alkategória:Ikerház
- Alapterület:170 m2
- Telekterület:240 m2
- Csere is:Nem
- Hirdető:Cég
- Élő videón megtekinthető:Nem
- Építés éve:2025
- Szobaszám:3
- Állapot:Új építésű
- Hány szintes az ingatlan:Földszintes
- Tetőtér:nincs megadva
- Komfortosság:nincs megadva
- Parkolási lehetőség:Teremgarázsban
- Fűtés:Hőszivattyús
- Bútorozottság:nincs megadva
- Fényviszony:Napfényes
- Tájolás:nincs megadva
- Kilátás:nincs megadva
- Internet:nincs megadva
- Akadálymentesített:nincs megadva
- Energiatanúsítvány:nincs megadva
- Villany:nincs megadva
- Víz:nincs megadva
- Gáz:nincs megadva
- Csatorna:nincs megadva
- Üzenetküldés
- Hívás

Dr. Katonáné Szolodun ...
Mondd meg a hirdetőnek, hogy a megveszLAK-on találtad a hirdetést.
Referencia szám: M308040

Hitel ajánlat
Ingatlan hirdetés leírása
Eladó Ház, Debrecen, Eladó új építésű ház - Debrecen
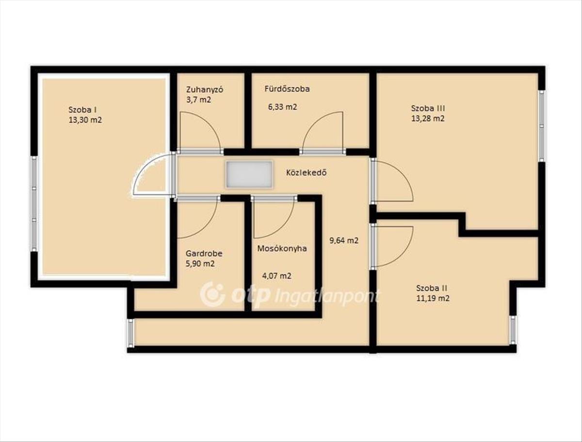
Debrecen, Belváros csendes óvárosi utcájában eladó egy egyedi megjelenésű, 170 m2- es, erkélyes, nappali + 3 szobás, belső két szintes újépítésű ikerház!Az ingatlan elhelyezkedés tekintetében egyedi lehetőséget biztosít új tulajdonosa számára, méretének és elosztásának köszönhetően kiváló választás családosok vagy akár befektetés szempontjából egyaránt. a ház parkosított kertel rendelkezik, mely könnyedén karbantartható.
Az ingatlan főbb paraméterei:
- amerikai konyhás nappali, 3 hálószoba + 3 fürdőszoba
- 240 m2 telek
- műanyag nyílászárók elektormos aluminium okos redőnnyel
- dupla garázs
- hőszivattyús padlófűtés Daikin hőszivattyúval
- klimatizált szobák
- a biztonságról riasztó, kamerás kaputelefon, kamerarendszer gondoskodik
- burkolatok választhatók 8000 Ft/m2
- szaniterek választhatók
- az épület 85 %-os készültségben van
További információért hívjon bizalommal akár hétvégén is. Megtekintésre telefonos egyeztetés alapján van lehetőség. Kedvezményes kamatozású lakásvásárlási és felújítási hitelek az OTP hátterével irodánkban. Hitel.hu - Hasonlítsa össze a bankok lakáshitel ajánlatait

