Eladó új építésű ház - Debrecen
- INGYENES HIRDETÉS FELADÁS
Ingatlan adatai
- Eladó vagy kiadó:Eladó
- Település:Debrecen
- Kategória:Ház
- Alkategória:Ikerház
- Alapterület:162 m2
- Telekterület:475 m2
- Csere is:Nem
- Hirdető:Cég
- Élő videón megtekinthető:Nem
- Építés éve:2026
- Szobaszám:5
- Állapot:Új építésű
- Hány szintes az ingatlan:nincs megadva
- Tetőtér:nincs megadva
- Komfortosság:nincs megadva
- Pince:nincs megadva
- Parkolási lehetőség:nincs megadva
- Fűtés:nincs megadva
- Bútorozottság:nincs megadva
- Fényviszony:nincs megadva
- Tájolás:NY
- Kilátás:nincs megadva
- Internet:nincs megadva
- Klíma:nincs megadva
- Akadálymentesített:nincs megadva
- Energiatanúsítvány:nincs megadva
- Villany:Van
- Víz:Van
- Gáz:nincs megadva
- Csatorna:Van
- Kapcsolatfelvétel

Deák Andrea
+36-(70)-388-5986
Mondd meg a hirdetőnek, hogy a megveszLAK-on találtad a hirdetést.
Hitel ajánlatok
Ingatlan hirdetés leírása
Modern ikerház eladó a Kerekestelepen! Debrecenben, a Kerekest...
Modern ikerház eladó a Kerekestelepen!
Debrecenben, a Kerekestelepen új építésű ikerház ELADÓ!
Eladásra kínálunk Debrecen kedvelt részén, épülő, 149 m²-es, modern ikerházat 475 m²-es telekkel. a kivitelező megbízható, Debrecen környékén számos referenciával rendelkezik.
Ingatlan típusa: ikerház
Alapterület: telekméret 475 m2 lakóterület 149 m2
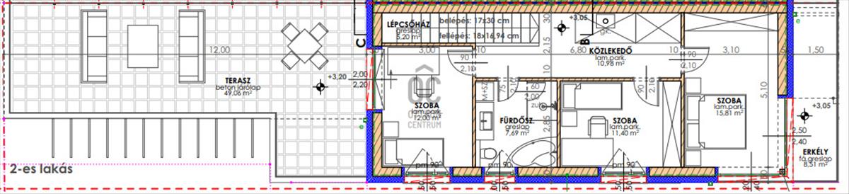
Szobák száma és elrendezés:
Földszint: 68, 9 m2 + garázs 18 m2:
előszoba (9, 42 m2) konyha-étkező-nappali (43, 19 m2); kamra (2, 16 m2), 1 szoba (10, 8 m2), wc, zuhanyzó, garázs (18 m2) található. Terasz 26 m2
Emelet: (62, 8 m2)
1. Lakás: - szoba – gardrób (23, 1 m2) – fürdőszoba (6, 66 m2) – közlekedő (7, 4 m2)
-szoba (15, 15 m2) – zuhanyzós wc (4, 56 m2) -lépcsőház (5, 9 m2)
-erkély (8, 5 m2)
-emeleti terasz 49 m2
2. Lakás: - szoba (12 m2) – fürdőszoba (7, 69 m2)
-szoba (11, 4 m2)
-szoba (15, 81 m2)
-közlekedő (10, 98 m2)
-lépcsőház (5, 2 m2)
-erkély (8, 5 m2)
-emeleti terasz 49 m2
Falazat: 30 cm-es n+f tégla
Födém: kefni, monolit beton
Külső hőszigetelés: 20 cm eps hőszigetelés
Nyílászárók: 90 mm 3 rétegű hőszigetelt üvegezéssel, elektromos garázskapu
Emeleti födém szigetelés: 30 cm xps hőszigetelés pvc lemezborítással
Fűtés: hőszivattyús rendszer padlófűtéssel
Hűtés: magasoldalfal fancoil i (vizesrendszerű klíma)
Napelem: 5 kw
Járda: épület körül 80 cm szélességben
Utcai kerítés: lemez
Állapot: új építés
Irányár: 150 000 000 Ft
Új, energiatakarékos, prémium minőségű otthon!
Az átadás dátuma a szerződést követő 3 hónap.
Ügyfeleinket teljes körűen segítjük a vásárlás és eladás teljes folyamatában megbízható, díjtalan és bankfüggetlen hiteltanácsadói és kiiváló ügyvédi háttérrel.
További kérdéssel, megtekintéssel kapcsolatban várom hívását a hét bármelyik napján. ! FIX 3% lakáshitelre megvehető
Tetszett ez az eladó Debreceni új építésű 5 szobás ikerház? Hívd fel a hirdetőt most, és tudj meg mindent erről az eladó ikerházról! Ha gondolod nézelődj tovább az eladó ház Debrecen oldal hirdetései között. Ennek az eladó háznak az ára 150000000 Ft és mivel az alapterülete 162 négyzetméter, ezért az átlagos négyzetméterára 925926 HUF/m2.
Az eladó házak menüpontban további hirdetések között is böngészhetsz. Ha van kedved, akkor böngészhetsz a Deák Andrea összes hirdetése között, vagy akár a/az Otthon Centrum Debrecen - Hatvan utca összes hirdetése között is.

