Eladó új építésű ház - Debrecen
- INGYENES HIRDETÉS FELADÁS
Ingatlan adatai
- Feladva:4 hónapja a megveszLAK-on
- Eladó vagy kiadó:Eladó
- Település:Debrecen
- Kategória:Ház
- Alkategória:Ikerház
- Alapterület:155 m2
- Telekterület:120 m2
- Csere is:Nem
- Hirdető:Cég
- Élő videón megtekinthető:Nem
- Építés éve:2026
- Szobaszám:4
- Állapot:Új építésű
- Hány szintes az ingatlan:nincs megadva
- Tetőtér:nincs megadva
- Komfortosság:nincs megadva
- Pince:nincs megadva
- Parkolási lehetőség:nincs megadva
- Fűtés:Gáz (cirko)
- Bútorozottság:nincs megadva
- Fényviszony:nincs megadva
- Tájolás:D
- Kilátás:nincs megadva
- Internet:nincs megadva
- Klíma:nincs megadva
- Akadálymentesített:nincs megadva
- Energiatanúsítvány:nincs megadva
- Villany:Van
- Víz:Van
- Gáz:Van
- Csatorna:Van
- Kapcsolatfelvétel

Tóth Ferenc
+36-(70)-716-9076
Mondd meg a hirdetőnek, hogy a megveszLAK-on találtad a hirdetést.
Hitel ajánlatok
Ingatlan hirdetés leírása
Ez az ingatlan a C 2 - es lakás, 123,26 m2 a hasznos alapterül...
Ez az ingatlan a C 2 - es lakás, 123, 26 m2 a hasznos alapterülete, földszint + emelet kialakítású + terasz + garázs.
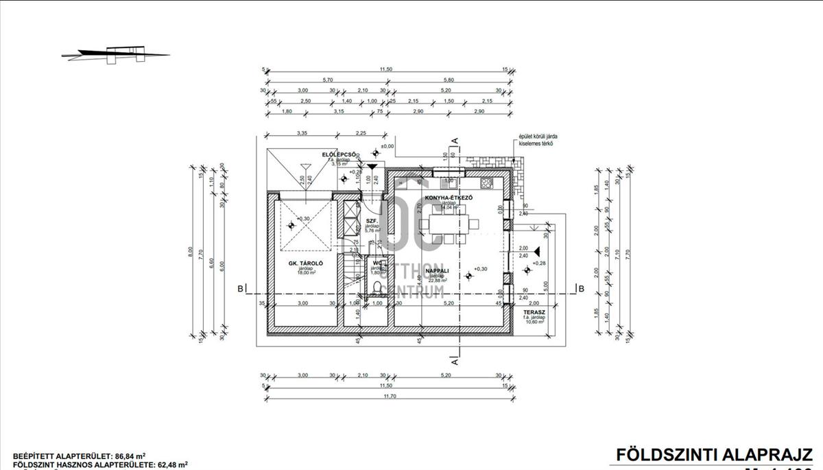
Fszt : konyha - étkező - nappali, wc, lépcső emeletre + garázs helyiségekből áll.
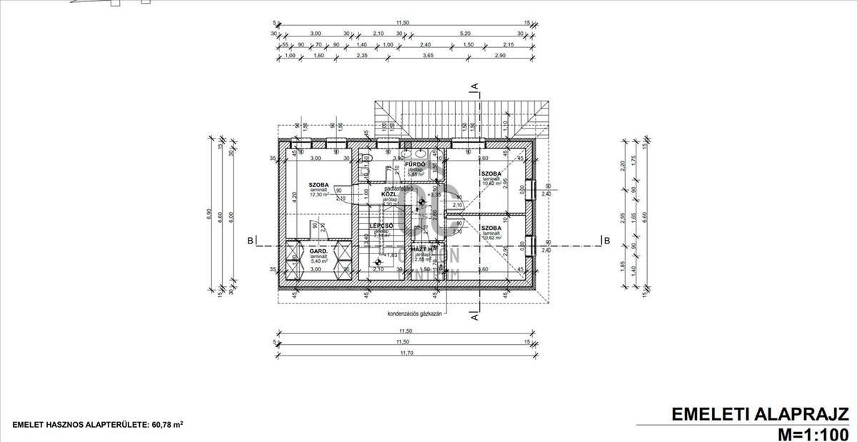
Emelet : 3 szoba, az egyikhez gardrob szoba is tartozik, fürdő, háztartási helyiségekből áll
Projekt bemutatása
Debrecen csendes lakóövezeti részén, földszint + emelt kialakítású ikerházi lakások eladóak.
Földszint helyiségei : konyha - étkező - nappali, + terasz + garázs
Emelet helyiségei : 3 szoba, fürdő, háztartási helyiség + az egyik szobához gardrob szoba.
Az ingatlanok korszerű műszaki megoldásokkal, időtálló technológiával épülnek.
Főbb műszaki jellemzők : Porotherm nf 30 - as tégla falazat + 15 cm homlokzati szigetelés, 3 rtg hő és hangszigetelt nyílászárók, monolit vb födém, tetőszerkezet cserépfedéssel, immergas 24 Kw - os kondenzációs kazán biztosítja a fűtést, és a melegvizet, a fűtés : padlófűtés hőleadóval megoldott, szekcionált garázsajtó 2 db távirányítóval, stb. . .
A korszerű gépészet, modern elektromos hálózat és az igényes belső műszaki tartalom hozzájárulnak az élhető, modern lakás megvalósításához.
Várható átadás : 2026 nyara
ha felkeltettem az érdeklődését, kérem hívjon bizalommal! FIX 3% lakáshitelre megvehető
Tetszett ez az eladó Debreceni új építésű 4 szobás ikerház? Hívd fel a hirdetőt most, és tudj meg mindent erről az eladó ikerházról! Ha gondolod nézelődj tovább az eladó ház Debrecen oldal hirdetései között. Ennek az eladó háznak az ára 119900000 Ft és mivel az alapterülete 155 négyzetméter, ezért az átlagos négyzetméterára 773548 HUF/m2.
Az eladó házak menüpontban további hirdetések között is böngészhetsz. Ha van kedved, akkor böngészhetsz a Tóth Ferenc összes hirdetése között, vagy akár a/az Otthon Centrum Debrecen - Hatvan utca összes hirdetése között is.

