Eladó új építésű ház - Debrecen
- INGYENES HIRDETÉS FELADÁS
Ingatlan adatai
- Eladó vagy kiadó:Eladó
- Település:Debrecen
- Kategória:Ház
- Alkategória:Ikerház
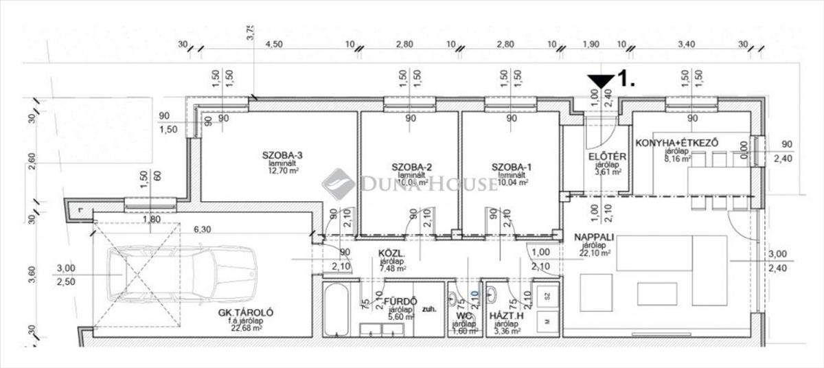
- Alapterület:88 m2
- Telekterület:450 m2
- Csere is:Nem
- Hirdető:Cég
- Élő videón megtekinthető:Nem
- Építés éve:2026
- Szobaszám:4
- Állapot:Új építésű
- Hány szintes az ingatlan:Földszintes
- Tetőtér:nincs megadva
- Komfortosság:nincs megadva
- Pince:nincs megadva
- Parkolási lehetőség:nincs megadva
- Fűtés:Gáz (cirko)
- Bútorozottság:nincs megadva
- Fényviszony:nincs megadva
- Tájolás:K
- Kilátás:nincs megadva
- Internet:nincs megadva
- Klíma:nincs megadva
- Akadálymentesített:nincs megadva
- Energiatanúsítvány:nincs megadva
- Villany:nincs megadva
- Víz:nincs megadva
- Gáz:nincs megadva
- Csatorna:nincs megadva
- Kapcsolatfelvétel

Dr. Kocsár Janka Ildikó
+36-(30)-205-5998
Mondd meg a hirdetőnek, hogy a megveszLAK-on találtad a hirdetést.
Referencia szám: PR058883/HZ/28925
Hitel ajánlatok
Ingatlan hirdetés leírása
Tócóvölgyi lakóparkban újépítésű N+3 szobás házak
Debrecen Tócóligetben ikerházas projekt épül. a ház egy szintes, 84 nm -es, nappali + 3 szobával rendelkezik, + 20 nm -es garázs, + terasz. a 2 ingatlan elválasztó falazata dupla, így az áthallás le redukálódik a nullára. Minden lakás saját 440 nm -es telken helyezkedik el, nincsenek közös részek, utcafrontról egyedileg megközelíthető. Műszaki paraméterek:- 30-as tégla falazat- szigeteléssel- gázcirkó fűtéssel, padlózati leosztással- 2 db inverteres klíma- aranytölgy színű homlokzati nyílászárók és garázskapu- választható burkolatok. Kulcsrakész átadás várható ideje: 2026. 06. 30. További kérdéseivel kapcsolatban várom hívását! FIX 3% lakáshitelre megvehető
Tetszett ez az eladó Debreceni új építésű 4 szobás ikerház? Hívd fel a hirdetőt most, és tudj meg mindent erről az eladó ikerházról! Ha gondolod nézelődj tovább az eladó ház Debrecen oldal hirdetései között. Ennek az eladó háznak az ára 115000000 Ft és mivel az alapterülete 88 négyzetméter, ezért az átlagos négyzetméterára 1306818 HUF/m2.
Az eladó házak menüpontban további hirdetések között is böngészhetsz. Ha van kedved, akkor böngészhetsz a Dr. Kocsár Janka Ildikó összes hirdetése között, vagy akár a/az Duna House Debrecen - költözés alatt összes hirdetése között is.

