Eladó átlagos állapotú ház - Debrecen
- INGYENES HIRDETÉS FELADÁS
Ingatlan adatai
- Eladó vagy kiadó:Eladó
- Település:Debrecen
- Kategória:Ház
- Alkategória:Ikerház
- Alapterület:170 m2
- Telekterület:320 m2
- Csere is:Nem
- Hirdető:Cég
- Élő videón megtekinthető:Nem
- Építés éve:2006
- Szobaszám:6
- Állapot:Átlagos állapotú
- Hány szintes az ingatlan:nincs megadva
- Tetőtér:nincs megadva
- Komfortosság:nincs megadva
- Pince:nincs megadva
- Parkolási lehetőség:nincs megadva
- Fűtés:Gáz (cirko)
- Bútorozottság:nincs megadva
- Fényviszony:nincs megadva
- Tájolás:DNY
- Kilátás:nincs megadva
- Internet:nincs megadva
- Klíma:nincs megadva
- Akadálymentesített:nincs megadva
- Energiatanúsítvány:nincs megadva
- Villany:Van
- Víz:Van
- Gáz:Van
- Csatorna:Van
- Kapcsolatfelvétel

Varga Ágnes
+36-(70)-469-3906
Mondd meg a hirdetőnek, hogy a megveszLAK-on találtad a hirdetést.
Hitel ajánlatok
Ingatlan hirdetés leírása
Debrecen közkedvelt, családbarát városrészében, a Biharikertbe...
Debrecen közkedvelt, családbarát városrészében, a Biharikertben eladó egy 159 m²-es, gázfűtéses, klimatizált ikerház, 320 m²-es saroktelken.
Bár az ingatlan ikerházként szerepel, kialakításának köszönhetően szinte teljesen különálló épület, mindössze egy fal érintkezik a szomszédos ingatlannal,
így az otthon nyugodt, privát életteret biztosít.
Különlegessége, hogy 3 lakrészből áll, amelyek külön bejárattal is rendelkeznek, ugyanakkor igény szerint teljesen egyben is használhatók,
így rugalmasan alakítható az új tulajdonos elképzelései szerint.
Ideális választás:
- több generáció együttélésére
- befektetésre vagy kiadásra
- szépségszalon, iroda vagy otthoni vállalkozás kialakítására.
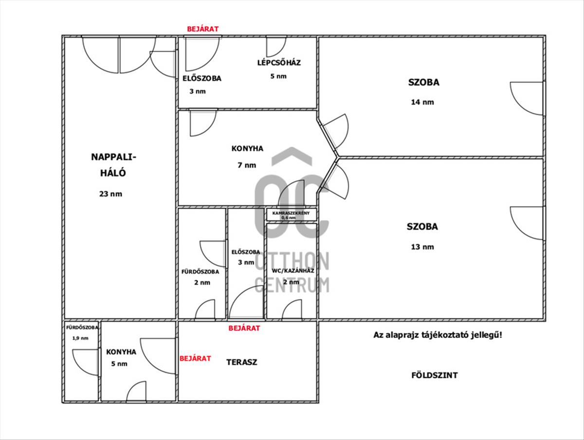
Az ingatlan elrendezése:
Alsó szint – 2 lakrész:
1. Lakrész – 30 m²
- világos nappali hatalmas ablakokkal
- galériás hálórész
- konyha
- zuhanyzós fürdőszoba WC-vel
2. Lakrész – 49, 5 m²
- előszoba
- konyha
- 2 szoba
- zuhanyzós fürdőszoba
- wc / kazánház
- közlekedő
Emeleti lakrész:
– 79, 5 m²
- 2 szoba
- nappali–étkező
- konyha
- zuhanyzós fürdőszoba
- külön WC
- közlekedő
Felújítások – 2021
Az ingatlan több korszerűsítésen esett át:
- alsó és felső szinten 1-1 klíma került beszerelésre
- műanyag bejárati ajtók
- 10 cm-es szigetelés
- három fürdőszoba új burkolatot kapott
- Immergas gázkazán
- fedett terasz polikarbonát borítással
További előnyök
- 320 m²-es saroktelek
- 3 külön bejáratú lakrész
- rugalmasan alakítható elrendezés
- tehermentes ingatlan
Megtekintéssel kapcsolatban hívjon bizalommal a hét bármely napján!
Az energetikai tanúsítvány készítése folyamatban van, amint rendelkezésre áll, úgy azzal a hirdetés frissítésre kerül.
Az alaprajz tájékoztató jellegű. FIX 3% lakáshitelre megvehető
Tetszett ez az eladó Debreceni átlagos állapotú 6 szobás ikerház? Hívd fel a hirdetőt most, és tudj meg mindent erről az eladó ikerházról! Ha gondolod nézelődj tovább az eladó ház Debrecen oldal hirdetései között. Ennek az eladó háznak az ára 119000000 Ft és mivel az alapterülete 170 négyzetméter, ezért az átlagos négyzetméterára 700000 HUF/m2.
Az eladó házak menüpontban további hirdetések között is böngészhetsz. Ha van kedved, akkor böngészhetsz a Varga Ágnes összes hirdetése között, vagy akár a/az Otthon Centrum Debrecen - Csapó utca összes hirdetése között is.

