Eladó jó állapotú ház - Érd
- INGYENES HIRDETÉS FELADÁS
Ingatlan adatai
- Feladva:61 napja a megveszLAK-on
- Eladó vagy kiadó:Eladó
- Település:Érd
- Kategória:Ház
- Alkategória:Ikerház
- Alapterület:255 m2
- Telekterület:1192 m2
- Csere is:Nem
- Hirdető:Cég
- Élő videón megtekinthető:Nem
- Építés éve:2003
- Szobaszám:7
- Állapot:Jó állapotú
- Hány szintes az ingatlan:Földszintes
- Tetőtér:nincs megadva
- Komfortosság:nincs megadva
- Pince:nincs megadva
- Parkolási lehetőség:Teremgarázsban
- Fűtés:Gáz (cirko)
- Bútorozottság:nincs megadva
- Fényviszony:Jó
- Tájolás:ÉK
- Kilátás:nincs megadva
- Internet:nincs megadva
- Klíma:nincs megadva
- Akadálymentesített:nincs megadva
- Energiatanúsítvány:A+
- Villany:Van
- Víz:Van
- Gáz:Van
- Csatorna:Van
- Kapcsolatfelvétel

Takács László
+36-(30)-929-5123
Mondd meg a hirdetőnek, hogy a megveszLAK-on találtad a hirdetést.
Referencia szám: HZ090363
Hitel ajánlatok
Ingatlan hirdetés leírása
Eladó ház, Érd, Eladó jó állapotú ház - Érd
Érd Parkvárosi részén kínálom megvételre ezt a 265 négyzetméteres, a+ -os, 8kw-os napelemes ikerházfélrészt, amely praktikus terei miatt kényelmes választás nagycsaládnak vagy otthonról dolgozóknak 169 millió forintos irányáron.
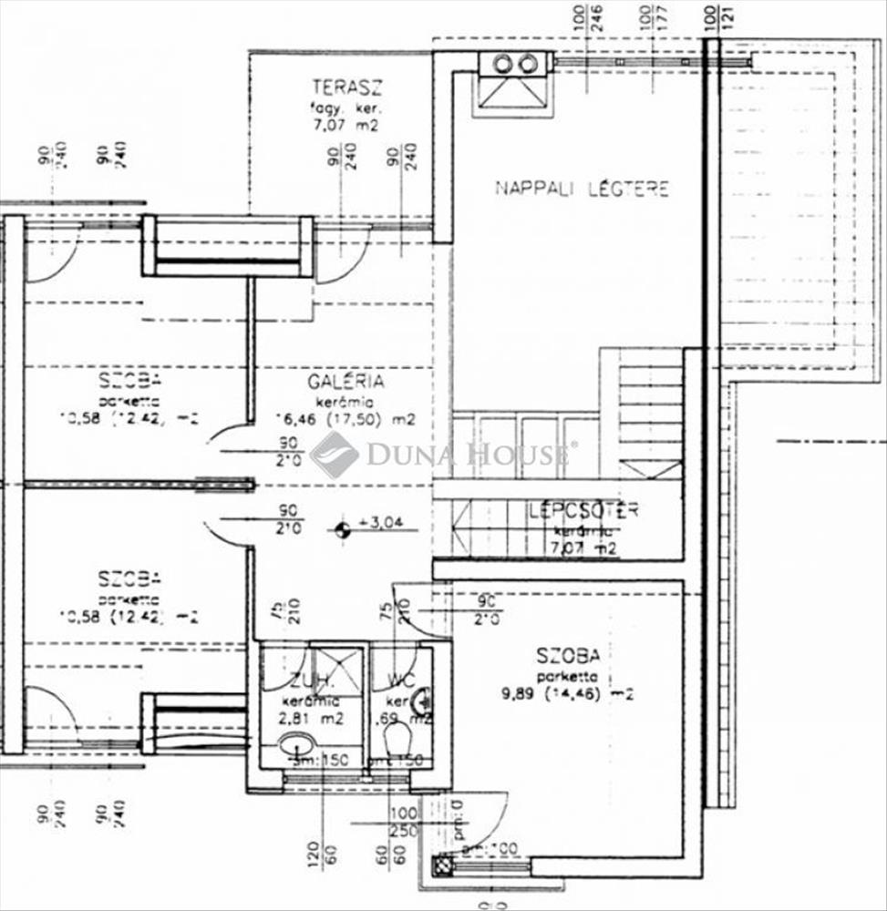
A földszinten tágas nappali étkezővel vár kandallóval és klímával. a konyhához kamra tartozik, ami megkönnyíti a tárolást.
A szinten található hálószoba saját gardróbbal és fürdővel. a fürdőszobák 2025-ben lettek felújítva. Az emeleten három hálószoba kapott helyet, természetes fényben bővelkedve. a mindennapi életet támogatja a mosókonyha, a konditerem és egy szabadidős helyiség. a garázs két autó számára biztosít beállást. a hatalmas terasz jó terep a pihenésre és a vendégfogadásra. a kertben külső épített kemence, fedett sütögető, bográcsozó és szerszámoskamra vár. Magaságyások, komposztáló, gyümölcsfák és öntözőrendszer teszik könnyebbé a tudatos kertművelést. a gyerekeket hinta és csúszda várja. a télikert használható plusz lakótérként. a ház 8 kW napelemmel működik éves elszámolással, kb. Még hét évig biztosít megtérülést. a 12 centiméteres grafitos hőszigetelés és az új homlokzat nagy energiahatékonyságot ad. Kamerarendszer, távirányítható kapuk és rámpafűtés növelik a kényelmet. a telek közös használatú, 2122 négyzetméter egyedi megosztással. a kert egy része lekeríthető megállapodás szerint. Ha olyan otthont keresel, ahol a terek átgondoltak, a rezsi kiszámítható és a kert valódi értéket ad, akkor ezt érdemes megnézned. Tulajdonilapon 2 lakásos társasház. Kérj időpontot a megtekintésre.
Referencia szám: hz090363 Hitel.hu - Hasonlítsa össze a bankok lakáshitel ajánlatait
Tetszett ez az eladó Érdi jó állapotú 7 szobás ikerház? Hívd fel a hirdetőt most, és tudj meg mindent erről az eladó ikerházról! Ha gondolod nézelődj tovább az eladó ház Érd oldal hirdetései között. Ennek az eladó háznak az ára 169000000 Ft és mivel az alapterülete 255 négyzetméter, ezért az átlagos négyzetméterára 662745 HUF/m2.
Az eladó házak menüpontban további hirdetések között is böngészhetsz. Ha van kedved, akkor böngészhetsz a Takács László összes hirdetése között, vagy akár a/az Duna House Szépvölgyi út összes hirdetése között is.

