Eladó új építésű ház Kecskemét
| Kedvencbe | Megosztás | Árfigyelő |
| FIX 3% lakáshitelre megvehető | ||
| 68 900 000 HUF | ||
Ingatlan adatai
- Eladó vagy kiadó:Eladó
- Település:Kecskemét
- Kategória:Ház
- Alkategória:Ikerház
- Alapterület:65 m2
- Telekterület:350 m2
- Csere is:Nem
- Hirdető:Cég
- Élő videón megtekinthető:Nem
- Építés éve:2026
- Szobaszám:3
- Állapot:Új építésű
- Hány szintes az ingatlan:Földszintes
- Tetőtér:nincs megadva
- Komfortosság:nincs megadva
- Parkolási lehetőség:nincs megadva
- Fűtés:Hőszivattyús
- Bútorozottság:nincs megadva
- Fényviszony:Napfényes
- Tájolás:DNY
- Kilátás:nincs megadva
- Internet:nincs megadva
- Akadálymentesített:nincs megadva
- Energiatanúsítvány:nincs megadva
- Villany:nincs megadva
- Víz:nincs megadva
- Gáz:nincs megadva
- Csatorna:nincs megadva
- Üzenetküldés
- Hívás

Referencia szám: HZ077788

Hitel ajánlat
Ingatlan hirdetés leírása
Eladó ház, Kecskemét
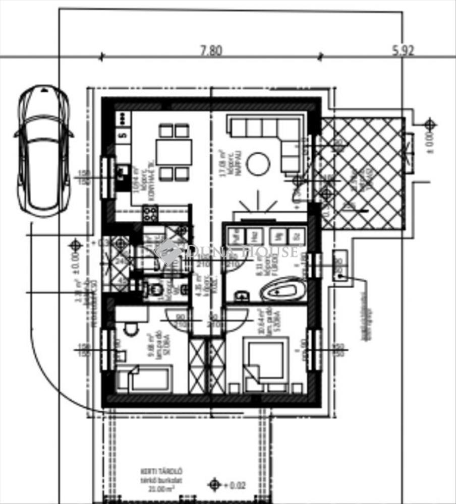
Eladásra kínálunk Kecskeméten, a Sóvirág utcában egy 65 m²-es ikerház egyik felét, amely hőszivattyúval, fedett gépkocsibeállóval és prémium műszaki tartalommal rendelkezik.A 350 m²-es telek a vételár részét képezi, és az osztatlan közös tulajdonhoz, ügyvédi használati megosztás is tartozik.
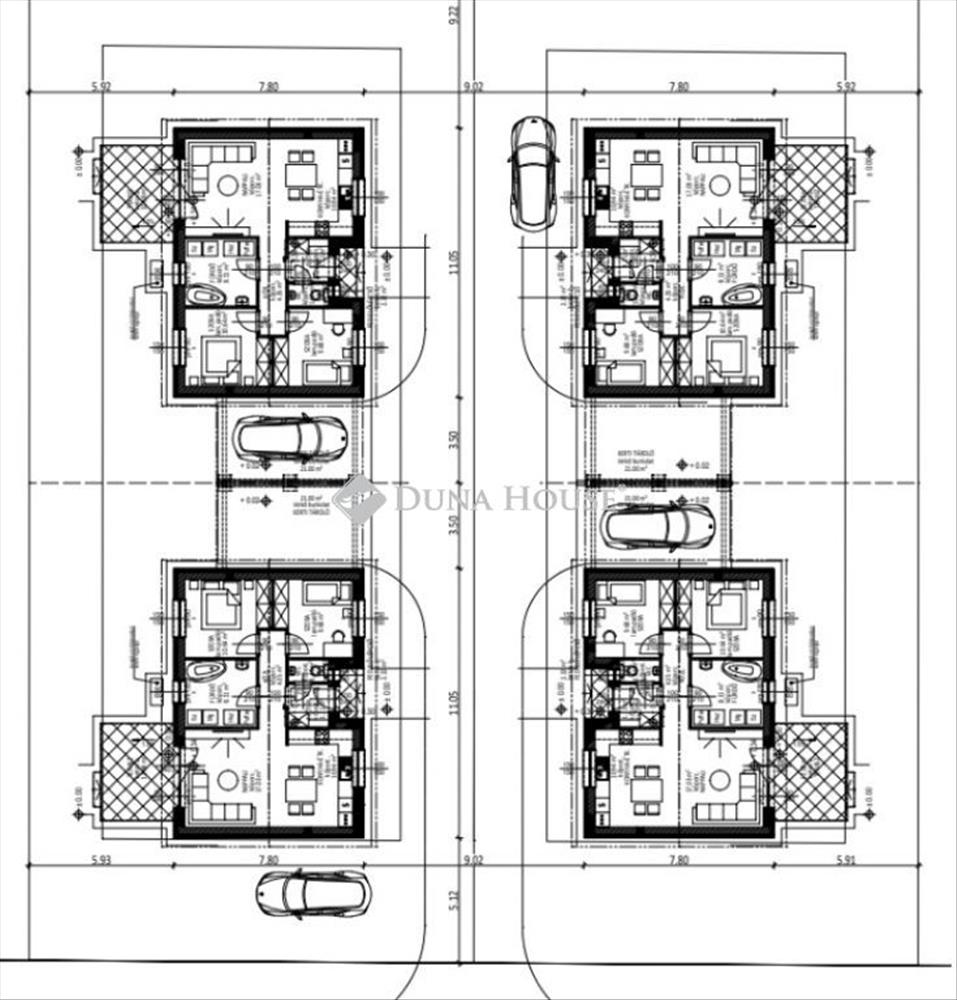
A 795 m²-es telken két, sorházi jellegű családi ház épül, amelyek a fedett gépkocsibeállónál kapcsolódnak egymáshoz.
Minden ingatlanhoz saját, elkerített telekrész tartozik.
A várható átadás pedig 2026. November-december.
A projekt kivitelezői előfinanszírozással is megvásárolható (nem kell előre fizetni), tehát mindig az elkészült, átadott ütem után kell fizetni, illetve a kivitelező szerződésben vállalja, hogy ár garanciát vállal az építményre.
A családi ház nettó alapterülete 65 m2, amely tartalmaz:
3 szobát (amerikai konyha-nappali-étkező + 2 hálószoba);
1 fürdőszobát
Fedett gépkocsi beállót
és egy előszobát.
Műszaki tartalom:
Teherhordó falazat: Wienerberger Porotherm 30 N+F
Homlokzati hőszigetelés: 15 cm
Tetőhéjazat választható: Leier Toscana tetőcserép választható színben
Külső nyílászárók: 3 réteg üvegezésű, kívül antracit, belül fehér prémium Gealan s8000 külső nyílászárók, 36 mm-es üvegezéssel + antracit, alumínium redőnyök + antracit műkő párkány
Válaszfal: Wienerberger Porotherm 10 tégla válaszfal
Bejárati ajtó választható: Colorplast standard betéttel
Teraszajtó: Dupla szárnyas
Beltéri ajtó: Borovi Szicília (dekorfóliás) választható színben
Hidegburkolat választható: 6500 Ft / m2
Melegburkolat választható: 6000 Ft / m2
Szaniterek választható: (kád, zuhanykabin, csaptelep stb. ) 460. 000Ft-ig
Gépészet: Bosch 3400 levegő-víz hőszivattyú vizes padlófűtéssel
Az ár kulcsrakész állapotban történő átadással értendő, konyhabútor és lámpatestek nélkül!
Közművek:
Gáz: nincs
Villany: ingatlanban
Csatorna: derítő kerül kiépítésre
Víz: ingatlanban
Ajánlom mindazoknak, akik Kecskemét csendes környezetében szeretnének élni, de mégis közel a városhoz. FIX 3% lakáshitelre megvehető

