Eladó felújítandó ház - Miskolc
- INGYENES HIRDETÉS FELADÁS
Ingatlan adatai
- Eladó vagy kiadó:Eladó
- Település:Miskolc
- Kategória:Ház
- Alkategória:Ikerház
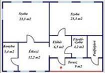
- Alapterület:75 m2
- Telekterület:998 m2
- Csere is:Nem
- Hirdető:Cég
- Élő videón megtekinthető:Nem
- Építés éve:1920
- Szobaszám:2
- Állapot:Felújítandó
- Hány szintes az ingatlan:Földszintes
- Tetőtér:nincs megadva
- Komfortosság:nincs megadva
- Pince:nincs megadva
- Parkolási lehetőség:Teremgarázsban
- Fűtés:Házközponti
- Bútorozottság:nincs megadva
- Fényviszony:Jó
- Tájolás:nincs megadva
- Kilátás:nincs megadva
- Internet:nincs megadva
- Klíma:nincs megadva
- Akadálymentesített:nincs megadva
- Energiatanúsítvány:nincs megadva
- Villany:nincs megadva
- Víz:nincs megadva
- Gáz:nincs megadva
- Csatorna:nincs megadva
- Kapcsolatfelvétel

Antal-Dusza Hajnalka
+36-(30)-120-1406
Mondd meg a hirdetőnek, hogy a megveszLAK-on találtad a hirdetést.
Referencia szám: M319395
Hitel ajánlatok
Ingatlan hirdetés leírása
Eladó Miskolc Pereces városrészében ikerház!
Miskolc Pereces városrészében, a Vilma forrás közelében, csendes, zöldövezeti környezetben eladó egy teljesen felújítandó, 75 m2 alapterületű, 2 szobás, étkezős, összkomfortos, téglaépítésű, cseréptetős ikerház. Fűtése gáz- és vegyes tüzelésű kazánnal megoldott, a melegvíz-ellátás villanybojlerrel történik. a 998 m2-es telken egy 25 m2-es tégla melléképület található, amelyben a vegyes tüzelésű kazán kapott helyet, továbbá egy 20 m2-es betongarázs, valamint egy különálló pince is rendelkezésre áll. Az ingatlan nyugodt, természet közeli környezetben helyezkedik el, a közkedvelt Vilma forrás néhány perc sétára található. Ideális választás mindazok számára, akik a város zajától távol, mégis elérhető helyen szeretnének ingatlant vásárolni, valamint a felújítás remek lehetőséget kínál az otthon személyre szabott kialakítására. Érdeklődni megtekintéssel kapcsolatban a megadott elérhetőségeken lehetséges. Az ingatlan megfelel az Otthon Start Program feltételeinek.
Referencia szám: m319395 FIX 3% lakáshitelre megvehető
Tetszett ez az eladó Miskolci felújítandó 2 szobás ikerház? Hívd fel a hirdetőt most, és tudj meg mindent erről az eladó ikerházról! Ha gondolod nézelődj tovább az eladó ház Miskolc oldal hirdetései között. Ennek az eladó háznak az ára 19000000 Ft és mivel az alapterülete 75 négyzetméter, ezért az átlagos négyzetméterára 253333 HUF/m2.
Az eladó házak menüpontban további hirdetések között is böngészhetsz. Ha van kedved, akkor böngészhetsz a Antal-Dusza Hajnalka összes hirdetése között, vagy akár a/az OTPip Miskolc Corvin utca 1-3 - OTP Ingatlanpont Iroda összes hirdetése között is.

