Eladó újszerű állapotú ház - Pécel
- INGYENES HIRDETÉS FELADÁS
Ingatlan adatai
- Eladó vagy kiadó:Eladó
- Település:Pécel
- Kategória:Ház
- Alkategória:Ikerház
- Alapterület:200 m2
- Telekterület:352 m2
- Csere is:Nem
- Hirdető:Cég
- Élő videón megtekinthető:Nem
- Építés éve:2023
- Szobaszám:6
- Állapot:Újszerű, kitűnő
- Hány szintes az ingatlan:2 szintes
- Tetőtér:nincs megadva
- Komfortosság:nincs megadva
- Pince:nincs megadva
- Parkolási lehetőség:Teremgarázsban
- Fűtés:Gáz (cirko)
- Bútorozottság:nincs megadva
- Fényviszony:Napfényes
- Tájolás:nincs megadva
- Kilátás:nincs megadva
- Internet:nincs megadva
- Klíma:Van
- Akadálymentesített:nincs megadva
- Energiatanúsítvány:nincs megadva
- Villany:nincs megadva
- Víz:nincs megadva
- Gáz:nincs megadva
- Csatorna:nincs megadva
- Kapcsolatfelvétel

Szombay Alfréd
+36-(30)-660-9459
Mondd meg a hirdetőnek, hogy a megveszLAK-on találtad a hirdetést.
Referencia szám: M299558
Hitel ajánlatok
Ingatlan hirdetés leírása
Eladó Ház, Pécel, Eladó újszerű állapotú ház - Pécel
Prémium minőségű kivitelezés!
Pécelen - annak is Budapesthez legközelebb eső felén - eladó egy 2023-ban elkészült ikerházfél. 352m2-es telken áll a ház. 4 Háló, 2 nappali, duplakomfort biztosítja a tulajdonosok kényelmét.
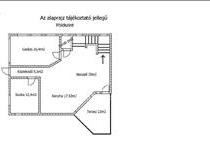
Minden szobához panorámás terasz tartozik az emeleten.
Teraszok, 15, 35m2, 8m2, és 22 m2.
A telek körbe van kerítve. Az ikerszomszédtól még nincs lekerítve. Rendezett kert és gyönyörű panorámás fedett teraszok jellemzik az ingatlant.
Műszaki adatok: beton alapon 36cm-es tégla falak.
Tetőn 30 cm, homlokzaton 15 cm hungarocell szigetelés van.
Tetőn beton cserép található.
Tetőszigetelés, párazáró fólia, 30 cm kőzetgyapot, hőtükrös reflex fólia van, illetve beton födém.
Érdemes megtekinteni!
A kínálatunkból választott ingatlan finanszírozásához kedvezményes hitel- és lízingkonstrukciókat, csok, falusi CSOK megoldásokat kínálunk.
m299558 FIX 3% lakáshitelre megvehető
Tetszett ez az eladó Péceli újszerű állapotú 6 szobás ikerház? Hívd fel a hirdetőt most, és tudj meg mindent erről az eladó ikerházról! Ha gondolod nézelődj tovább az eladó ház Pécel oldal hirdetései között. Ennek az eladó háznak az ára 139000000 Ft és mivel az alapterülete 200 négyzetméter, ezért az átlagos négyzetméterára 695000 HUF/m2.
Az eladó házak menüpontban további hirdetések között is böngészhetsz. Ha van kedved, akkor böngészhetsz a Szombay Alfréd összes hirdetése között, vagy akár a/az OTPip Szigetszentmiklós Tököli út 19.B - OTP Ingatlanpont Iroda összes hirdetése között is.

