Eladó új építésű ház - Velence
- INGYENES HIRDETÉS FELADÁS
Ingatlan adatai
- Eladó vagy kiadó:Eladó
- Település:Velence
- Kategória:Ház
- Alkategória:Ikerház
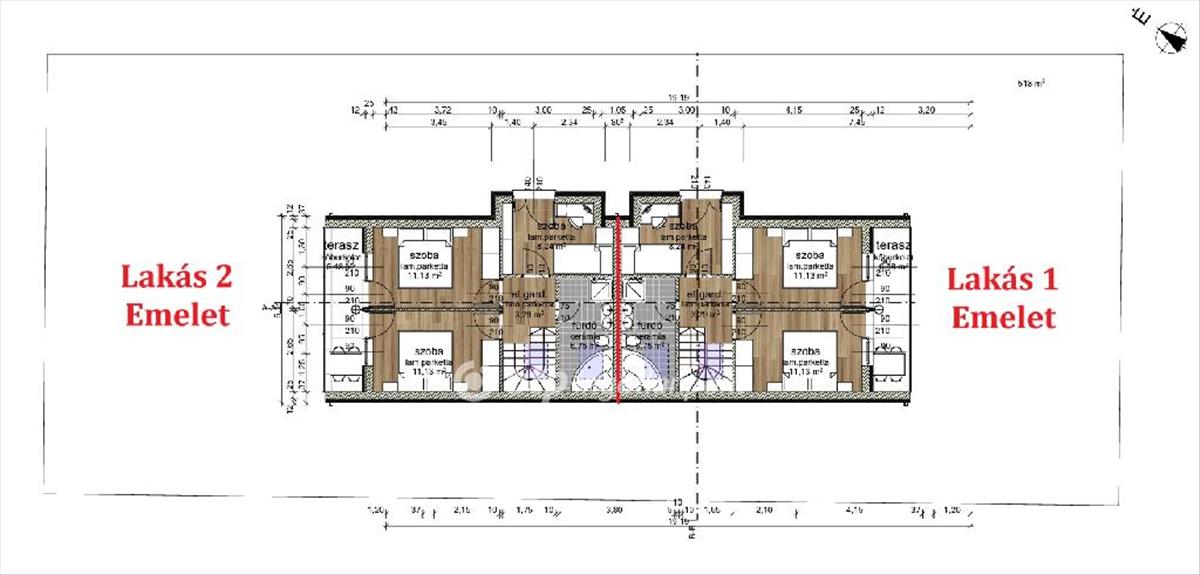
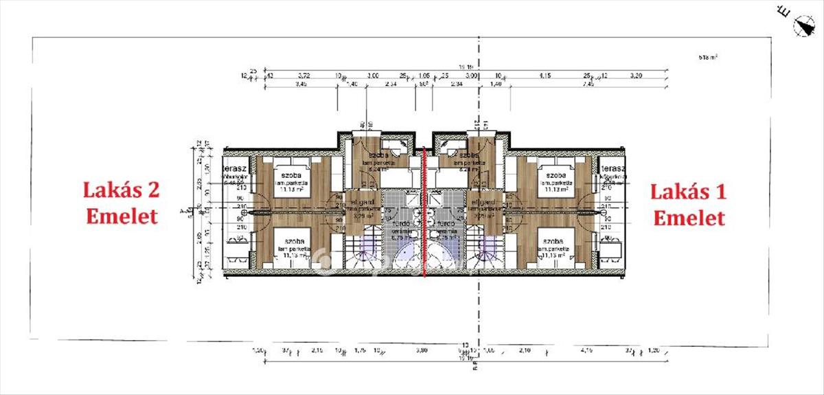
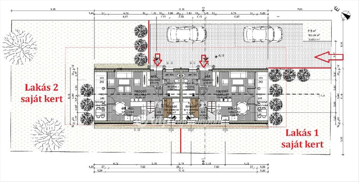
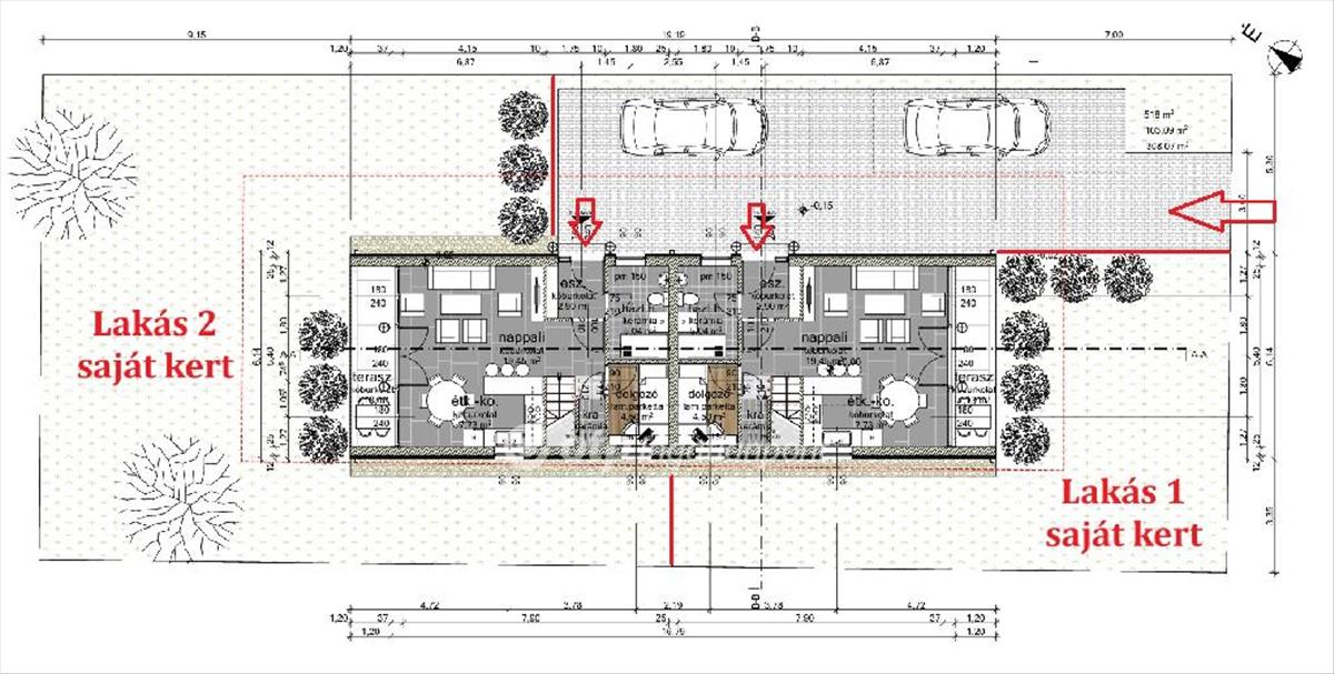
- Alapterület:88 m2
- Telekterület:518 m2
- Csere is:Nem
- Hirdető:Cég
- Élő videón megtekinthető:Nem
- Építés éve:2026
- Szobaszám:4 + 1 fél
- Állapot:Új építésű
- Hány szintes az ingatlan:2 szintes
- Tetőtér:nincs megadva
- Komfortosság:nincs megadva
- Pince:nincs megadva
- Parkolási lehetőség:Beállóban
- Fűtés:nincs megadva
- Bútorozottság:nincs megadva
- Fényviszony:nincs megadva
- Tájolás:nincs megadva
- Kilátás:nincs megadva
- Internet:nincs megadva
- Klíma:nincs megadva
- Akadálymentesített:nincs megadva
- Energiatanúsítvány:nincs megadva
- Villany:Telken belül
- Víz:Telken belül
- Gáz:Utcában
- Csatorna:Telken belül
- Kapcsolatfelvétel

Démann Judit
+36-70-406-0378
Mondd meg a hirdetőnek, hogy a megveszLAK-on találtad a hirdetést.
Hitel ajánlatok
Ingatlan hirdetés leírása
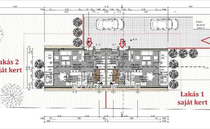
Velencén, Budapesttől mindössze 47 km-re modern ikerházi lakás...
Velencén, Budapesttől mindössze 47 km-re modern ikerházi lakások eladóak saját kertrésszel!
Fejér vármegyében, Velence csendes, zöldövezeti részén, a számozott utcákban kínálok megvételre 88 m2 hasznos alapterületű, új építésű ikerházi lakásokat. a nappali+ 3, 5 szobás ingatlanok kamrával, háztartási helyiséggel, saját kertrésszel, két terasszal és felszíni gépkocsibeállóval rendelkeznek, így magas komfortfokozatot biztosítanak leendő tulajdonosaik számára.
Az építkezés már elkezdődött, várható befejezés: 2026 nyár!
Lakás 1. : 74. 900. 000 Ft (kert: ~150 m2)
Lakás 2. : 79. 900. 000 Ft (kert: ~260 m2)
Műszaki tartalom és felszereltség:
Fűtés: levegő víz hőszivattyú, padlófűtés
Hűtés: 1 db klímaberendezés
Alapozás: beton sávalap
Vízszigetelés: 1 réteg bitubit gv 4, 5 hegeszthető bitumenes lemez talajnedvesség ellen
Teherhordó falak: 25 cm YTONG
Födém: 20 cm monolit vasbeton lemez (statikai terv szerint)
Válaszfalak: 10 cm YTONG
Homlokzati hőszigetelés: 12 cm grafitos EPS
Zárófödém szigetelés: 2×15 cm Rockwool Multirock
Földszinti födém szigetelés: 12 cm Austrotherm at L2
Külső nyílászárók: 3 rétegű üvegezés, argongáz töltés, dupla gumitömítés, 5 légkamrás műanyag szerkezet
Tetőfedés: betoncserép
Burkolatok: ragasztott kerámia és laminált padló választható színben, a teraszokon kőlap
Falburkolatok:
Fürdőszobában mennyezetig csempe,
Konyhában a munkapult fölötti rész csempézve
Homlokzat: törtfehér vékonyvakolat szürke díszítő elemekkel
Csapadékvíz-elvezetés: tározóba vezetve
A lakások elrendezése praktikus, tágas és világos tereket biztosít, a korszerű építészeti megoldások pedig alacsony fenntartási költséget eredményeznek. a környék nyugodt, családbarát, a Velencei-tó közelsége pedig különleges életminőséget kínál.
Az OTP Ingatlanpont teljeskörű ügyintézéssel áll az eladók és a vevők rendelkezésére! a választott ingatlan finanszírozásához kedvezményes hitel- és pénzügyi konstrukciókat kínálunk. Otthon Start hitel, CSOK Plusz teljeskörű ügyintézését vállaljuk. Az adásvétel teljes folyamatát végigkísérjük és ügyvédi közreműködést biztosítunk!
Amennyiben modern, energiahatékony otthont keres természetközeli környezetben, ezek a velencei ikerházi lakások kiváló választást jelentenek. FIX 3% lakáshitelre megvehető
Tetszett ez az eladó Velencei új építésű 4 egész és 1 fél szobás ikerház? Hívd fel a hirdetőt most, és tudj meg mindent erről az eladó ikerházról! Ha gondolod nézelődj tovább az eladó ház Velence oldal hirdetései között. Ennek az eladó háznak az ára 79900000 Ft és mivel az alapterülete 88 négyzetméter, ezért az átlagos négyzetméterára 907955 HUF/m2.
Az eladó házak menüpontban további hirdetések között is böngészhetsz. Ha van kedved, akkor böngészhetsz a Démann Judit összes hirdetése között, vagy akár a/az Gárdony Bóné Kálmán utca 12 - OTP Ingatlanpont Iroda összes hirdetése között is.

