- >>
- eladó ingatlanok
- >>
- eladó ház
- >>
- eladó ház Velence
- >>
Eladó újszerű állapotú ház - Velence
| | |||
| Kedvencnek jelölöm | Elküldöm emailben | Megosztás | Szavazás |
| FIX 3% lakáshitelre megvehető | |||
| 114 900 000 HUF | |||
Ingatlan adatai
- Eladó vagy kiadó:Eladó
- Település:Velence
- Kategória:Ház
- Alkategória:Ikerház
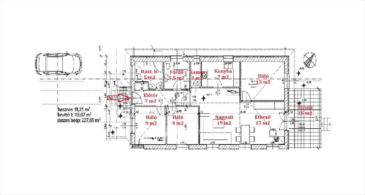
- Alapterület:114 m2
- Telekterület:1340 m2
- Csere is:Nem
- Hirdető:Cég
- Élő videón megtekinthető:Nem
- Építés éve:2026
- Szobaszám:4
- Állapot:Újszerű, kitűnő
- Hány szintes az ingatlan:Földszintes
- Tetőtér:nincs megadva
- Komfortosság:nincs megadva
- Parkolási lehetőség:Utcán
- Fűtés:nincs megadva
- Bútorozottság:nincs megadva
- Fényviszony:nincs megadva
- Tájolás:nincs megadva
- Kilátás:nincs megadva
- Internet:nincs megadva
- Akadálymentesített:nincs megadva
- Energiatanúsítvány:nincs megadva
- Villany:nincs megadva
- Víz:nincs megadva
- Gáz:nincs megadva
- Csatorna:nincs megadva
- Üzenetküldés
- Hívás


Hitel ajánlat
Ingatlan hirdetés leírása
Foglalható Velence közkedvelt részén minőségi kivitelezésű, na...
Foglalható Velence közkedvelt részén minőségi kivitelezésű, nappali+3 szobás nettó 91, 25 m2-es, tégla építésű ikerház fél saját 650 m2-es telekrésszel, külön bejárattal, felszíni kocsibeállóval!Az ingatlan családi házas környezeteben fog megépülni, 1, 5 km-re a Velencei-tó partjától! Séta távolságra található bevásárlási lehetőség, néhány perc autóútra: iskola, gyógyszertár és orvosi rendelő érhető el!
KULCSRAKÉSZ állapot várható ideje: 2026
A feltüntetett ár a kulcsrakész állapotra vonatkozik tereprendezéssel!
Az ingatlan csak 1 m-es falszakaszon érintkezik a másik ingatlan háztartási helyiségével!
Az összközműves, összesen 1300 nm-es telken 2 lakásos társasházként épül a projekt, külön helyrajziszámmal fognak rendelkezni az ingatlanok, 3 %-os Otthon Start hitel felvehető rá!
Műszaki leírás:
-30-as porotherm Téglafal
-10 cm-es tégla válaszfalak
-12 cm homlokzati szigetelés
-FÜTÉS: padlófűtés 10 KW-os Fischer Hőszivattyúval
- 200 l-es hmv tartály
- Fürdőszobában + törölköző szárítós radiátor
- 3 rétegű üvegezésű, fehér műanyag nyílászárók
- födém: betongerendás
- tető: fekete terrán cserép színezett bádogozással
- Belső burkolatok: választható hideg- és meleg burkolat 5. 000 Ft/m2-ig
- kis kapu és elektromos úszókapu
A Hirdetésben szereplő képek referencia munkák, az épülő projekt ugyanígy fog kinézni!
Az OTP Ingatlanpont teljeskörű ügyintézéssel áll az eladók és a vevők rendelkezésére! a választott ingatlan finanszírozásához kedvezményes hitel- és pénzügyi konstrukciókat kínálunk. Az adásvétel teljes folyamatát végigkísérjük és ügyvédi közreműködést biztosítunk!
Amennyiben felkeltett érdeklődését az ingatlan, várom megtisztelő hívását akár hétvégén is FIX 3% lakáshitelre megvehető

