Eladó új építésű lakás - Pécs
- INGYENES HIRDETÉS FELADÁS
Ingatlan adatai
- Eladó vagy kiadó:Eladó
- Település:Pécs
- Kategória:Lakás
- Alkategória:Egyéb
- Alapterület:49 m2
- Csere is:Nem
- Hirdető:Cég
- Élő videón megtekinthető:Nem
- Szobaszám:2
- Állapot:Új építésű
- Hány szintes az ingatlan:Földszintes
- Komfortosság:nincs megadva
- Hányadik emeleti:Földszint
- Erkély:nincs megadva
- Lift:Nincs
- Parkolási lehetőség:Udvaron
- Fűtés:Egyéb
- Bútorozottság:nincs megadva
- Fényviszony:Napfényes
- Tájolás:nincs megadva
- Kilátás:nincs megadva
- Internet:nincs megadva
- Klíma:nincs megadva
- Akadálymentesített:nincs megadva
- Energiatanúsítvány:A+++
- Villany:Van
- Víz:Van
- Gáz:nincs megadva
- Csatorna:Van
- Kapcsolatfelvétel

Szabó Ágnes
+36-(20)-509-7862
Mondd meg a hirdetőnek, hogy a megveszLAK-on találtad a hirdetést.
Referencia szám: M316978
Hitel ajánlatok
Ingatlan hirdetés leírása
Eladó Lakás, Pécs, Eladó új építésű lakás - Pécs
Új építésű lakások eladók!
A lakóparkban az A, B és a C épületében lévő ingatlanok már elkeltek.
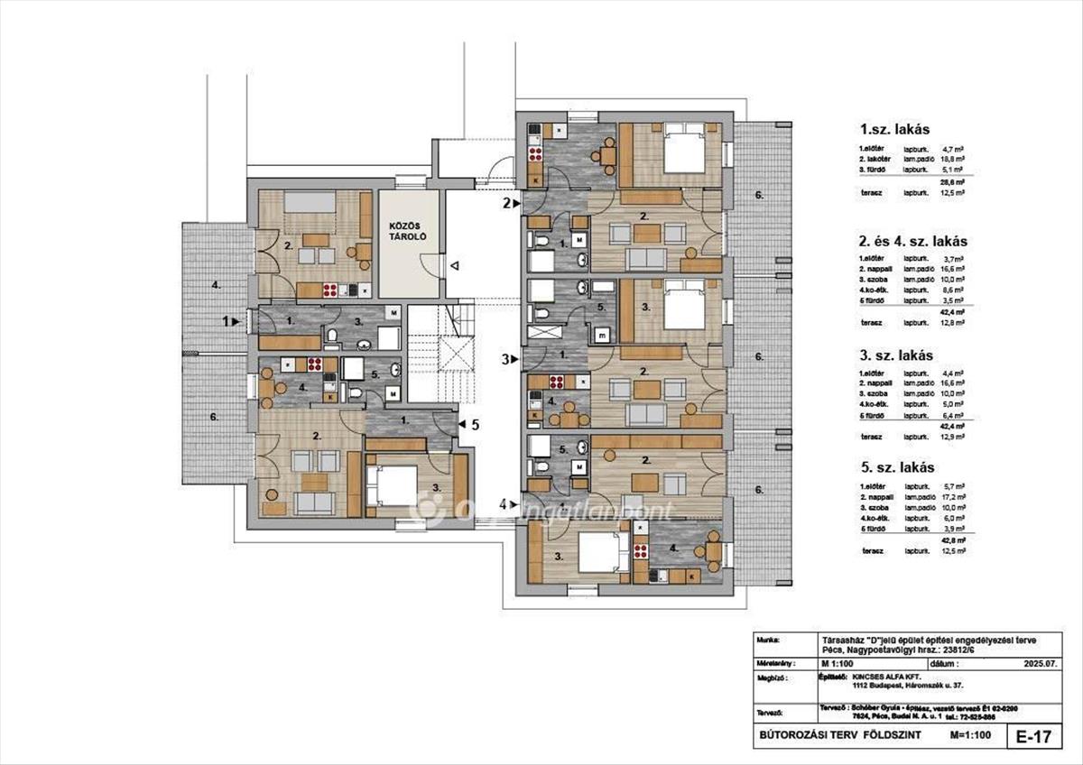
A D épületben 15 db lakás eladó, már most lefoglalható, átadás 2026. Június végén.
Profi kivitelező, referenciákkal
Modern ytong falazat, hőszivattyús fűtés
Intelligens rendszerek, választható burkolatok
Zárt parkoló, elektromos töltő
Illetékmentesség, csok+ igényelhető
Barátságos ár, jó befektetés! Fsz 5, 42, 8 nm + 12, 5 nm terasz + zöld terület
Érdeklődjön bizalommal, akár hétvégén is!
M316978)
Referencia szám: m316978 FIX 3% lakáshitelre megvehető
Tetszett ez az eladó Pécsi új építésű 2 szobás lakás? Hívd fel a hirdetőt most, és tudj meg mindent erről az eladó lakásról! Ha gondolod nézelődj tovább az eladó lakás Pécs oldal hirdetései között. Ennek az eladó lakásnak az ára 57879000 Ft és mivel az alapterülete 49 négyzetméter, ezért az átlagos négyzetméterára 1181204 HUF/m2.
Az eladó lakások menüpontban további hirdetések között is böngészhetsz. Ha van kedved, akkor böngészhetsz a Szabó Ágnes összes hirdetése között, vagy akár a/az OTPip Pécs Király utca 75 - OTP Ingatlanpont Iroda összes hirdetése között is.

