Eladó átlagos állapotú panel lakás - Miskolc
- INGYENES HIRDETÉS FELADÁS
Ingatlan adatai
- Eladó vagy kiadó:Eladó
- Település:Miskolc
- Kategória:Lakás
- Alkategória:Panel
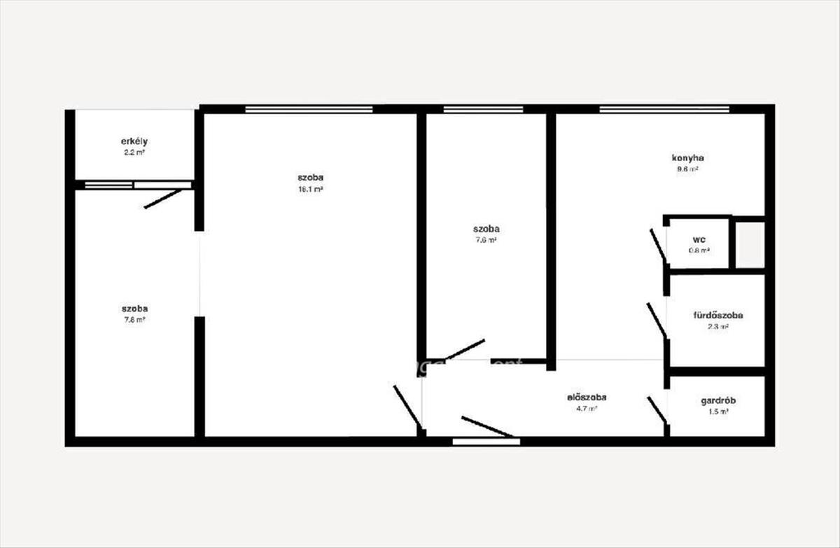
- Alapterület:54 m2
- Csere is:Nem
- Hirdető:Cég
- Élő videón megtekinthető:Nem
- Szobaszám:1 + 2 fél
- Állapot:Átlagos állapotú
- Hány szintes az ingatlan:Földszintes
- Komfortosság:nincs megadva
- Hányadik emeleti:10
- Erkély:nincs megadva
- Lift:Van
- Parkolási lehetőség:nincs megadva
- Fűtés:Távfűtés egyedi mérővel
- Bútorozottság:nincs megadva
- Fényviszony:Jó
- Tájolás:nincs megadva
- Kilátás:nincs megadva
- Internet:nincs megadva
- Klíma:nincs megadva
- Akadálymentesített:nincs megadva
- Energiatanúsítvány:nincs megadva
- Villany:Van
- Víz:Van
- Gáz:nincs megadva
- Csatorna:Van
- Közös költség:9 800 Ft
- Kapcsolatfelvétel

Spéth Gábor György
+36-(20)-361-5774
Mondd meg a hirdetőnek, hogy a megveszLAK-on találtad a hirdetést.
Referencia szám: M324473
Hitel ajánlatok
Ingatlan hirdetés leírása
Eladó Lakás, Miskolc
Miskolc Diósgyőr városrészében kínálok megvételre egy 54 nm alapterületű, 1+2 félszobás erkélyes lakást, panelprogramos épület tizedik emeletén. Az ingatlan praktikus elrendezésű, amely ideális lehet családok, párok vagy akár befektetők számára is. a lakás átlagos állapotú, tehermentes, azonnal költözhető. a lakás fenntartási költsége kedvező, a panelprogramnak és az egyedi mérésű távfűtésnek köszönhetően jól tervezhető rezsivel. Kiváló infrastruktúra jellemzi a környéket: a közelben megtalálhatóak élelmiszerboltok, bevásárlási lehetőségek, gyógyszertár, iskola, óvoda, valamint busz- és villamosmegállók is. a környéken parkok, zöldterületek és sportolási lehetőségek is rendelkezésre állnak, így a mindennapi élet minden szükséges szolgáltatása könnyen elérhető. Amennyiben az ingatlan felkeltette az érdeklődését, hívjon bizalommal és tekintsük meg együtt akár hétvégén is! OTP Banki hátterünknek köszönhetően finanszírozási igényekben (pl. Otthon Start Hitel Program, Babaváró, csok, Felújítási hitel, stb. ) Is állunk ügyfeleink rendelkezésére. Az ingatlan előre egyeztetett időpontban megtekinthető, megbízható ügyvédi közreműködést, szerződéskötéshez irodai hátteret biztosítunk. Referenciaszám: m324473 FIX 3% lakáshitelre megvehető
Tetszett ez az eladó Miskolci átlagos állapotú 1 egész és 2 fél szobás panel lakás? Hívd fel a hirdetőt most, és tudj meg mindent erről az eladó panel lakásról! Ha gondolod nézelődj tovább az eladó lakás Miskolc oldal hirdetései között. Ennek az eladó lakásnak az ára 29990000 Ft és mivel az alapterülete 54 négyzetméter, ezért az átlagos négyzetméterára 555370 HUF/m2.
Az eladó lakások menüpontban további hirdetések között is böngészhetsz. Ha van kedved, akkor böngészhetsz a Spéth Gábor György összes hirdetése között, vagy akár a/az OTPip Miskolc Szemere Bertalan utca 20 - OTP Ingatlanpont Iroda összes hirdetése között is.

