Eladó átlagos állapotú panel lakás - Miskolc
- INGYENES HIRDETÉS FELADÁS
Ingatlan adatai
- Eladó vagy kiadó:Eladó
- Település:Miskolc
- Kategória:Lakás
- Alkategória:Panel
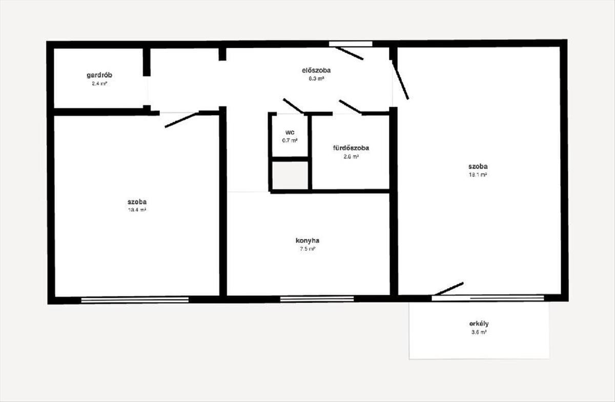
- Alapterület:53 m2
- Csere is:Nem
- Hirdető:Cég
- Élő videón megtekinthető:Nem
- Szobaszám:2
- Állapot:Átlagos állapotú
- Hány szintes az ingatlan:Földszintes
- Komfortosság:nincs megadva
- Hányadik emeleti:4
- Erkély:nincs megadva
- Lift:Nincs
- Parkolási lehetőség:nincs megadva
- Fűtés:Távfűtés
- Bútorozottság:nincs megadva
- Fényviszony:Közepes
- Tájolás:nincs megadva
- Kilátás:nincs megadva
- Internet:nincs megadva
- Klíma:nincs megadva
- Akadálymentesített:nincs megadva
- Energiatanúsítvány:nincs megadva
- Villany:Van
- Víz:Van
- Gáz:nincs megadva
- Csatorna:Van
- Közös költség:9 030 Ft
- Kapcsolatfelvétel

Spéth Gábor György
+36-(20)-361-5774
Mondd meg a hirdetőnek, hogy a megveszLAK-on találtad a hirdetést.
Referencia szám: M326220
Hitel ajánlatok
Ingatlan hirdetés leírása
Eladó Lakás, Miskolc
Miskolcon, a Győri kapuban kínálunk megvételre egy 53 nm -es, 2 szobás, erkélyes lakást egy 4 emeletes panel építésű társasház 4. emeletén. Az ingatlan jó elosztású, jelenlegi állapotában azonnal birtokba vehető, ugyanakkor igény szerint felújítást igényel, így az új tulajdonos saját ízlése és elképzelései szerint formálhatja. a nyílászárók már korszerű, műanyag ablakokra lettek cserélve, az ingatlan fűtéséről, (+ meleg vízről) pedig a távhő gondoskodik radiátoros hőleadókon keresztül. Elhelyezkedését tekintve kiváló, valamint rezsiköltsége is rendkívül kedvező. Buszmegálló, villamosmegálló, boltok, posta, óvoda, iskola mind néhány perc sétára találhatók. Az ingatlan rövid időn belül költözhető, így saját célra, valamint befektetőknek is egyaránt kiváló választás. Kérem tekintse meg virtuális sétámat is. Jöjjön el, tegyen egy ajánlatot és biztosan meg fogunk tudni egyezni! Várom hívását akár hétvégén is! OTP Banki hátterünknek köszönhetően finanszírozási igényekben (pl. Otthon Start Hitelprogram, Babaváró, Falusi csok, CSOK Plusz, Lakáshitel, Személyi kölcsön stb. ), Illetve biztosítások tekintetében is állunk ügyfeleink rendelkezésére! Az adásvételhez pedig megbízható ügyvédi közreműködést biztosítunk. Hívása során hivatkozzon az M326220-as referenciaszámra. FIX 3% lakáshitelre megvehető
Tetszett ez az eladó Miskolci átlagos állapotú 2 szobás panel lakás? Hívd fel a hirdetőt most, és tudj meg mindent erről az eladó panel lakásról! Ha gondolod nézelődj tovább az eladó lakás Miskolc oldal hirdetései között. Ennek az eladó lakásnak az ára 25900000 Ft és mivel az alapterülete 53 négyzetméter, ezért az átlagos négyzetméterára 488679 HUF/m2.
Az eladó lakások menüpontban további hirdetések között is böngészhetsz. Ha van kedved, akkor böngészhetsz a Spéth Gábor György összes hirdetése között, vagy akár a/az OTPip Miskolc Szemere Bertalan utca 20 - OTP Ingatlanpont Iroda összes hirdetése között is.

