Eladó felújított lakás - Budapest XI. kerület
- INGYENES HIRDETÉS FELADÁS
Ingatlan adatai
- Eladó vagy kiadó:Eladó
- Település:Budapest XI. kerület
- Kategória:Lakás
- Alkategória:Tégla
- Alapterület:100 m2
- Csere is:Nem
- Hirdető:Cég
- Élő videón megtekinthető:Nem
- Szobaszám:4
- Állapot:Felújított
- Hány szintes az ingatlan:nincs megadva
- Komfortosság:Dupla komfortos
- Hányadik emeleti:2
- Erkély:Van
- Lift:Nincs
- Parkolási lehetőség:Teremgarázsban (fizetős)
- Fűtés:Gáz (cirko)
- Bútorozottság:nincs megadva
- Fényviszony:nincs megadva
- Tájolás:nincs megadva
- Kilátás:Utcai
- Internet:nincs megadva
- Klíma:nincs megadva
- Akadálymentesített:nincs megadva
- Energiatanúsítvány:nincs megadva
- Villany:nincs megadva
- Víz:nincs megadva
- Gáz:nincs megadva
- Csatorna:nincs megadva
- Kapcsolatfelvétel

Hitel ajánlatok
Ingatlan hirdetés leírása
Eladó Tégla lakás, Budapest 11. kerület, Sasad, 100nm, 1695000...
Napfényes, panorámás lakás eladó Sasad egyik legkedveltebb utcájában!
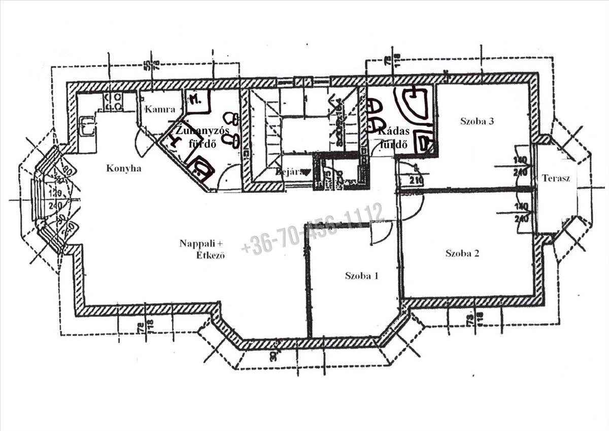
A XI. kerület elegáns, villaövezeti részén, Sasadon található ez a bruttó 100 m²-es, teljes szintet elfoglaló, panorámás lakás, amelyet a nyugalom és a kiváló fényviszonyok jellemeznek.
A lakás körbenapozott, nappali + 3 szobás, mindegyik szobája világos és tágas, a nappalihoz étkező és modern, amerikai konyha kapcsolódik.
Két különálló, teljes felszereltségű fürdőszoba, bidével és WC-vel, valamint egy kamra is a lakók kényelmét szolgálja. a klimatizálásról két légkondicionáló, a fűtésről egy új Bosch kondenzációs kazán gondoskodik.
A lakás csak négy lakásos, gondosan karbantartott társasházban helyezkedik el, ahol a rendezett kert és a nyugodt lakóközösség tovább növeli az ingatlan értékét.
A lakás elválaszthatatlan része egy tágas, 32 m²-es teremgarázs és egy külön kerti beálló, amelyek +10 M Ft értékben kötelezően megvásárolandók.
Kérésre alaprajzzal és további képekkel állok rendelkezésére! Hitel.hu - Hasonlítsa össze a bankok lakáshitel ajánlatait
Tetszett ez az eladó Budapest XI. kerületi felújított 4 szobás tégla lakás? Hívd fel a hirdetőt most, és tudj meg mindent erről az eladó tégla lakásról! Ha gondolod nézelődj tovább az eladó lakás Budapest XI. kerület oldal hirdetései között. Ennek az eladó lakásnak az ára 169500000 Ft és mivel az alapterülete 100 négyzetméter, ezért az átlagos négyzetméterára 1695000 HUF/m2.
Az eladó lakások menüpontban további hirdetések között is böngészhetsz. Az összes eladó budapesti lakás hirdetést tartalmazó oldalon tudsz böngészni. Ha van kedved, akkor böngészhetsz a Hosszú Levente összes hirdetése között, vagy akár a/az IBRED INGATLAN - A budai hegyvidék ingatlanközvetítője 1992 óta összes hirdetése között is.

