Eladó újszerű állapotú lakás - Budapest XIII. kerület
- INGYENES HIRDETÉS FELADÁS
Ingatlan adatai
- Feladva:4 hónapja a megveszLAK-on
- Eladó vagy kiadó:Eladó
- Település:Budapest XIII. kerület
- Kategória:Lakás
- Alkategória:Tégla
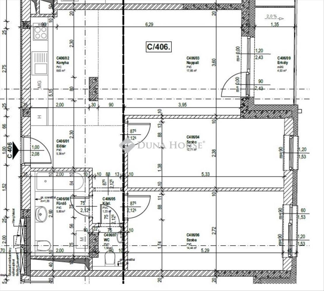
- Alapterület:71 m2
- Csere is:Nem
- Hirdető:Cég
- Élő videón megtekinthető:Nem
- Szobaszám:3
- Állapot:Újszerű, kitűnő
- Hány szintes az ingatlan:Földszintes
- Komfortosság:nincs megadva
- Hányadik emeleti:4
- Erkély:nincs megadva
- Lift:Van
- Parkolási lehetőség:Teremgarázsban
- Fűtés:Távfűtés egyedi mérővel
- Bútorozottság:nincs megadva
- Fényviszony:Napfényes
- Tájolás:K
- Kilátás:nincs megadva
- Internet:nincs megadva
- Klíma:Van
- Akadálymentesített:nincs megadva
- Energiatanúsítvány:nincs megadva
- Villany:Van
- Víz:Van
- Gáz:nincs megadva
- Csatorna:Van
- Kapcsolatfelvétel

Gulás János István
+36-(70)-571-1768
Mondd meg a hirdetőnek, hogy a megveszLAK-on találtad a hirdetést.
Referencia szám: LK031254
Hitel ajánlatok
Ingatlan hirdetés leírása
Eladó lakás, Budapest 13. ker.
Kiváló lokáció, közkedvelt lakópark, modern, fiatalos lakások! Budapesten, a XIII. kerület Angyalföld városrészén, egy 2021-ben épült, modern, liftes lakóparkban eladó egy 68 nm -es, 4. emeleti lakás 5 nm -es erkéllyel. a lakás amerikai konyhás nappalival, étkezővel és egy 2 hálószobával rendelkezik. a környék kiváló tömegközlekedési lehetőségekkel rendelkezik! a 14-es villamos, helyi autóbusz járatok, illetve akár az m3 metró megállója is csupán perc sétára található, így a belváros is könnyen megközelíthető. a lakáshoz teremgarázsban parkolóhely vásárolható vagy bérelhető. Találja meg nálunk leendő otthonát, aktuális befektetését!
Referencia szám: lk031254 Hitel.hu - Hasonlítsa össze a bankok lakáshitel ajánlatait
Tetszett ez az eladó Budapest XIII. kerületi újszerű állapotú 3 szobás tégla lakás? Hívd fel a hirdetőt most, és tudj meg mindent erről az eladó tégla lakásról! Ha gondolod nézelődj tovább az eladó lakás Budapest XIII. kerület oldal hirdetései között. Ennek az eladó lakásnak az ára 109275000 Ft és mivel az alapterülete 71 négyzetméter, ezért az átlagos négyzetméterára 1539085 HUF/m2.
Az eladó lakások menüpontban további hirdetések között is böngészhetsz. Az összes eladó budapesti lakás hirdetést tartalmazó oldalon tudsz böngészni. Ha van kedved, akkor böngészhetsz a Gulás János István összes hirdetése között, vagy akár a/az Duna House Kispest összes hirdetése között is.

