- >>
- eladó ingatlanok
- >>
- eladó lakás
- >>
- eladó lakás Hajdúszoboszló
- >>
Eladó új építésű lakás - Hajdúszoboszló
| | |||
| Kedvencnek jelölöm | Elküldöm emailben | Megosztás | Szavazás |
| FIX 3% lakáshitelre megvehető | |||
| 60 000 000 HUF | |||
Ingatlan adatai
- Eladó vagy kiadó:Eladó
- Település:Hajdúszoboszló
- Kategória:Lakás
- Alkategória:Tégla
- Alapterület:45 m2
- Csere is:Nem
- Hirdető:Cég
- Élő videón megtekinthető:Nem
- Szobaszám:1
- Állapot:Új építésű
- Hány szintes az ingatlan:Földszintes
- Komfortosság:nincs megadva
- Hányadik emeleti:2
- Lift:Nincs
- Parkolási lehetőség:Teremgarázsban
- Fűtés:Egyéb
- Bútorozottság:nincs megadva
- Fényviszony:Napfényes
- Tájolás:nincs megadva
- Kilátás:nincs megadva
- Internet:nincs megadva
- Akadálymentesített:nincs megadva
- Energiatanúsítvány:nincs megadva
- Villany:Van
- Víz:Van
- Gáz:nincs megadva
- Csatorna:Van
- Közös költség:5 000 Ft
- Üzenetküldés
- Hívás

Referencia szám: M298495

Hitel ajánlat
Ingatlan hirdetés leírása
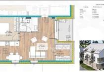
Eladó Lakás, Hajdúszoboszló
Hajdúszoboszló kiemelt fürdőövezetében új építésű társasházi lakások leköthetőek a Tanan Corner társasházban!A kivitelezés 2025 nyarán indul és várhatóan 2026 végére befejeződik!
A projekt kivitelezője kiemelkedő referenciáival rendelkezik a városban.
Korábbi sikeres projektjeik közé tartozik a tanan Residence i. És II. Társasház, a Tanan Passage társasház, valamint a Tanan Garden sorház is.
Jelen hirdetési ár a 2. emelet 5a lakás, amely 45, 46m2 + 6m2 erkély.
Helyiségei: amerikai konyhás nappali, szoba, fürdő+WC egy helyiségben, gardrób, erkély.
Korszerű, környezettudatos technológiák és energiatakarékos megoldások garantálják az alacsony fenntartási költségeket.
További elérhető lakások:
-1. emelet 1-es lakás 64, 3m2+6, 6m2 erkély+3, 89m2 fedett terasz 84mFt
-1. emelet 3-as lakás 55m2+4, 2m2 erkély 68. 5MFt
-2. emelet 4-es lakás 56m2+6m2 erkély 70. 8MFt
-2. emelet 5/b lakás 34m2+5, 5m2 fedett erkély 48mFt
Az OTP bankcsoport teljes körű ügyintézéssel áll rendelkezésre az eladók és a vevők részére!
További kérdéseivel, megtekintésre való egyeztetés kapcsán keressen bátran a hét bármely napján!
Érd. : OTP Ingatlanpont Debrecen +36-70-708-2396
Referencia szám: m298495 FIX 3% lakáshitelre megvehető

