- >>
- külföldi ingatlanok
- >>
- Horvátországi ingatlanok
- >>
- eladó lakás Horvátország
- >>
Eladó új építésű lakás - Horvátország, Vir
| | |||
| Kedvencnek jelölöm | Elküldöm emailben | Megosztás | Szavazás |
| Kedvezményes lakáshitel ajánlatok | |||
| 76 518 000 HUF | |||
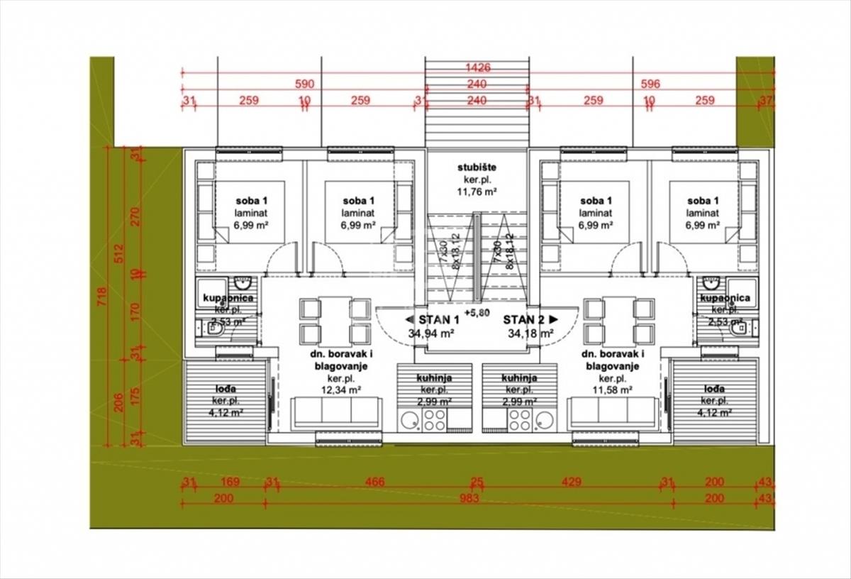
Ingatlan adatai
- Eladó vagy kiadó:Eladó
- Település:Vir
- Kategória:Lakás
- Alkategória:Tégla
- Alapterület:62 m2
- Csere is:Nem
- Hirdető:Cég
- Élő videón megtekinthető:Nem
- Szobaszám:2 + 4 fél
- Állapot:Új építésű
- Hány szintes az ingatlan:3 szintes
- Komfortosság:nincs megadva
- Hányadik emeleti:1
- Parkolási lehetőség:nincs megadva
- Fűtés:Elektromos
- Bútorozottság:nincs megadva
- Fényviszony:nincs megadva
- Tájolás:nincs megadva
- Kilátás:nincs megadva
- Internet:nincs megadva
- Akadálymentesített:nincs megadva
- Energiatanúsítvány:nincs megadva
- Villany:nincs megadva
- Víz:nincs megadva
- Gáz:nincs megadva
- Csatorna:nincs megadva
- Üzenetküldés
- Hívás


Hitel ajánlat
Ingatlan hirdetés leírása
Kedves Érdeklődő!
A GDN Ingatlanhálózat 2012-es indulása óta ...
Kedves Érdeklődő! A GDN Ingatlanhálózat 2012-es indulása óta hazánk meghatározó és formáló piaci szereplőjévé vált. Fontos mérföldkőhöz érkeztünk, hiszen Románia után Horvátországban is megkezdjük működésünket – első körben Vir szigetén, amely természeti adottságainak, egyedülálló atmoszférájának és kiváló közlekedési infrastruktúrájának köszönhetően vonzó turisztikai desztináció. Viren gyakorta hallhatunk magyar szót, hiszen honfitársaink körében is nagy népszerűségnek örvend ez a paradicsomi sziget.
Viren egy tengerparti ház nem csak presztízs – sokkal inkább szabadság, életérzés és a felejthetetlen élmények tökéletes ötvözete. Élje át ezt a csodát!
Horvátországi kínálatunkban újépítésű apartmanok, családi házak és telkek is megtalálhatók, de igény szerint emellett szakmai tanácsadásban, jogi támogatásban, költöztetésben és a megvásárolt ingatlan üzemeltetésében is számíthatnak ránk az ügyfeleink.
Keressen minket bizalommal, örömmel állunk a szolgálatára!
Szívélyes üdvözlettel,
Tőkés Levente 06 30 362 4723
Agatity Roland 06 70 421 3991 Hitel.hu - Hasonlítsa össze a bankok lakáshitel ajánlatait

