Eladó jó állapotú lakás Miskolc
| Kedvencbe | Megosztás | Árfigyelő |
| FIX 3% lakáshitelre megvehető | ||
| 67 700 000 HUF | ||
Ingatlan adatai
- Eladó vagy kiadó:Eladó
- Település:Miskolc
- Kategória:Lakás
- Alkategória:Tégla
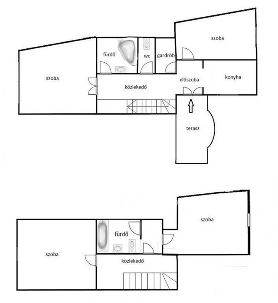
- Alapterület:98 m2
- Csere is:Nem
- Hirdető:Cég
- Élő videón megtekinthető:Nem
- Szobaszám:4
- Állapot:Jó állapotú
- Hány szintes az ingatlan:Földszintes
- Komfortosság:nincs megadva
- Hányadik emeleti:2
- Lift:Nincs
- Parkolási lehetőség:Udvaron
- Fűtés:Gáz (cirko)
- Bútorozottság:nincs megadva
- Fényviszony:Napfényes
- Tájolás:nincs megadva
- Kilátás:nincs megadva
- Internet:nincs megadva
- Akadálymentesített:nincs megadva
- Energiatanúsítvány:nincs megadva
- Villany:Van
- Víz:Van
- Gáz:nincs megadva
- Csatorna:Van
- Közös költség:28 000 Ft
- Üzenetküldés
- Hívás

Referencia szám: M311487

Hitel ajánlat
Ingatlan hirdetés leírása
Eladó Lakás, Miskolc
Kivételes lehetőség Miskolc belvárosában - Ritkaságszámba menő lakás eladó udvari beállóval!Kedvező áron eladó egy tulajdoni lapon 97nm- es, de a valóságban bruttó 110 m2-es, két szintes, 4 szobás, 2 fürdőszobás, klimatizált lakás Miskolc szívében, egyik igényes, szigetelt, téglaépítésű házában. Központi elhelyezkedése ellenére nagyon csendes lakás. Az ingatlan nem polgári, hanem újabb építésű, így korszerű elrendezéssel és kiváló állapottal rendelkezik. Referencia szám: M311487
A lakásban új konyhabútor, központi fűtés, saját pince, valamint egy ritka extrának számító, udvari gépkocsibeálló is a leendő tulajdonos kényelmét szolgálja zárható elektromos kapuval.
Elhelyezkedése páratlan: Miskolc legjobb részén, központi, mégis csendes környezetben található, ahol minden fontos szolgáltatás, bolt, iskola, hivatal, tömegközlekedés pár perc sétával elérhető.
Kiváló befektetési lehetőség is, hiszen a lokáció miatt a lakás könnyen és jól kiadható, ráadásul ezen a környéken rendkívül ritka az eladó ingatlan? Ez tovább növeli az értékét és megtérülését.
Az ingatlan hitelképes, és CSOK (3 vagy több gyermek esetén) is igénybe vehető.
Ne hagyja ki ezt az egyedülálló lehetőséget - ilyen lakás ritkán kerül a piacra! FIX 3% lakáshitelre megvehető

