Eladó átlagos állapotú lakás - Miskolc
- INGYENES HIRDETÉS FELADÁS
Ingatlan adatai
- Feladva:72 napja a megveszLAK-on
- Eladó vagy kiadó:Eladó
- Település:Miskolc
- Kategória:Lakás
- Alkategória:Tégla
- Alapterület:83 m2
- Csere is:Nem
- Hirdető:Cég
- Élő videón megtekinthető:Nem
- Szobaszám:3
- Állapot:Átlagos állapotú
- Hány szintes az ingatlan:Földszintes
- Komfortosság:nincs megadva
- Hányadik emeleti:Földszint
- Erkély:nincs megadva
- Lift:Nincs
- Parkolási lehetőség:nincs megadva
- Fűtés:Egyéb
- Bútorozottság:nincs megadva
- Fényviszony:Jó
- Tájolás:nincs megadva
- Kilátás:nincs megadva
- Internet:nincs megadva
- Klíma:nincs megadva
- Akadálymentesített:nincs megadva
- Energiatanúsítvány:nincs megadva
- Villany:Van
- Víz:Van
- Gáz:nincs megadva
- Csatorna:Van
- Közös költség:13 000 Ft
- Kapcsolatfelvétel

Kovács Attila
+36-(70)-267-3288
Mondd meg a hirdetőnek, hogy a megveszLAK-on találtad a hirdetést.
Referencia szám: M322490
Hitel ajánlatok
Ingatlan hirdetés leírása
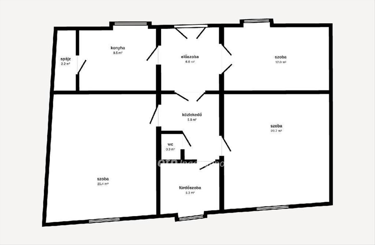
Eladó 83 m2-es, 3 szobás lakás - Miskolc, Belváros
Eladó Miskolc belvárosának egyik legkedveltebb részén egy 83 nm 3 szobás lakás, amely ideális választás mindazok számára, akik a városi élet kényelmét szeretnék élvezni, mégis nyugodt, zöld környezetben keresnek otthont.
Az ingatlan praktikus elrendezésű: három külön nyíló, világos szoba, fürdőszoba, külön wc, spájz, kényelmes előtér és közlekedő biztosítja a komfortos mindennapokat. a lakás előtt található parkosított, elzárt udvar különleges hangulatot teremt. a lakáshoz tartozik egy 28 nm -es pince is, amely kiváló tárolási lehetőséget biztosít.
Az ingatlan jó állapotú, az elmúlt években több korszerűsítés történt: ennek keretében megújult a fürdőszoba, valamint új kondenzációs gázkazán került beépítésre. Az elektromos hálózat részben felújított. a fürdőszoba különlegessége a masszázsfunkciós kádas zuhanykabin, amely extra kényelmet biztosít. Az elhelyezkedésének és adottságainak köszönhetően a lakás ideális lehet családoknak, pároknak vagy akár befektetési célra is. Hívjon és tekintsük meg együtt! Jöjjön és tekintsük meg együtt, akár hétvégén is! OTP Banki hátterünknek köszönhetően finanszírozási igényekben (pl. Otthon Start Hitelprogram, Babaváró, Falusi csok, CSOK Plusz, Lakáshitel, Személyi kölcsön stb. ), Illetve biztosítások tekintetében is állunk ügyfeleink rendelkezésére! Hívása során hivatkozzon az M322490-es referenciaszámra. FIX 3% lakáshitelre megvehető
Tetszett ez az eladó Miskolci átlagos állapotú 3 szobás tégla lakás? Hívd fel a hirdetőt most, és tudj meg mindent erről az eladó tégla lakásról! Ha gondolod nézelődj tovább az eladó lakás Miskolc oldal hirdetései között. Ennek az eladó lakásnak az ára 59900000 Ft és mivel az alapterülete 83 négyzetméter, ezért az átlagos négyzetméterára 721687 HUF/m2.
Az eladó lakások menüpontban további hirdetések között is böngészhetsz. Ha van kedved, akkor böngészhetsz a Kovács Attila összes hirdetése között, vagy akár a/az OTPip Miskolc Corvin utca 1-3 - OTP Ingatlanpont Iroda összes hirdetése között is.

