Eladó új építésű lakás - Pécs
- INGYENES HIRDETÉS FELADÁS
Ingatlan adatai
- Feladva:21 napja a megveszLAK-on
- Eladó vagy kiadó:Eladó
- Település:Pécs
- Kategória:Lakás
- Alkategória:Tégla
- Alapterület:47 m2
- Csere is:Nem
- Hirdető:Cég
- Élő videón megtekinthető:Nem
- Szobaszám:2
- Állapot:Új építésű
- Hány szintes az ingatlan:nincs megadva
- Komfortosság:nincs megadva
- Hányadik emeleti:nincs megadva
- Erkély:nincs megadva
- Lift:nincs megadva
- Parkolási lehetőség:nincs megadva
- Fűtés:Gáz
- Bútorozottság:nincs megadva
- Fényviszony:nincs megadva
- Tájolás:NY
- Kilátás:Utcai
- Internet:nincs megadva
- Klíma:nincs megadva
- Akadálymentesített:nincs megadva
- Energiatanúsítvány:nincs megadva
- Villany:Van
- Víz:Van
- Gáz:Van
- Csatorna:Van
- Kapcsolatfelvétel

Gangel Bence
+36-(70)-412-3166
Mondd meg a hirdetőnek, hogy a megveszLAK-on találtad a hirdetést.
Hitel ajánlatok
Ingatlan hirdetés leírása
Pécs belvárosának peremén, nyugodt, családi házas környezetben...
Pécs belvárosának peremén, nyugodt, családi házas környezetben egy elismert referenciákkal és jelentős szakmai tapasztalattal rendelkező generálkivitelező 2025 telén induló projektjében épül egy modern, téglaépítésű társasház. a két épületből álló, háromszintes ingatlan összesen 4 lakást és 4 gépkocsi-beállót foglal magában. a magas műszaki színvonalon, exkluzív kivitelezéssel készülő, „a” energetikai besorolású, kulcsrakész lakások várhatóan 2026 őszén kerülnek átadásra, és már most leköthetők.
A lakások fűtéséről egyedi gázkazánok gondoskodnak, míg a hűtést klímaberendezések biztosítják. Az egész lakásban padlófűtés működik, amely a nappaliban és a hálószobákban külön szabályozható. a fürdőszobában elektromos törölközőszárítós radiátor is helyet kap. a nyílászárók háromrétegű üvegezésű, motoros redőnnyel ellátott, világosszürke alumínium szerkezetek lesznek. a 40 cm vastag falazatra további 15 cm szigetelés kerül. a lakások tágas, világos terekkel, nagy ablakokkal és csendes hálószobákkal készülnek.
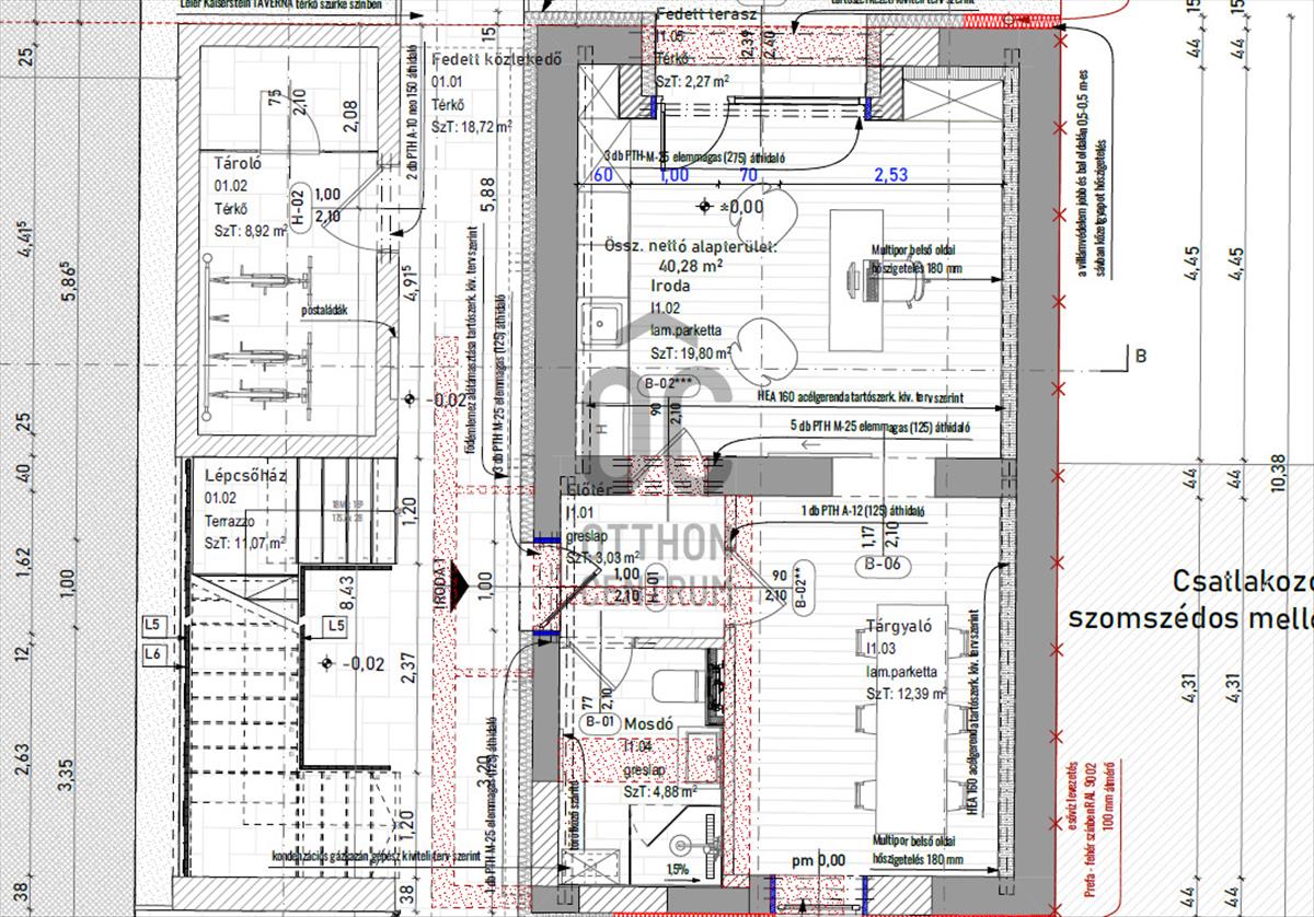
A bemutatott lakás a földszinten található (a tervrajzon iroda1 jelöléssel), és 40, 28 m² alapterülettel rendelkezik.
A lakáshoz opcionálisan vásárolható egy 10 m²-es fedett, belső udvari gépkocsibeálló, valamint egy 4, 1 m²-es tárolóhelyiség. a parkolóhelyek mindegyikében kiépített elektromosautó-töltési lehetőség áll rendelkezésre.
Az ingatlan elhelyezkedése különösen kedvező, mivel a város egyetemisták által kedvelt részén található, így kiváló választás befektetési célra is. Igény esetén segítséget nyújtunk a lakás bérbeadásában is.
Figyelem: a megadott ár nettó, amelyre 5% áfa kerül felszámításra. FIX 3% lakáshitelre megvehető
Tetszett ez az eladó Pécsi új építésű 2 szobás tégla lakás? Hívd fel a hirdetőt most, és tudj meg mindent erről az eladó tégla lakásról! Ha gondolod nézelődj tovább az eladó lakás Pécs oldal hirdetései között. Ennek az eladó lakásnak az ára 50350000 Ft és mivel az alapterülete 47 négyzetméter, ezért az átlagos négyzetméterára 1071277 HUF/m2.
Az eladó lakások menüpontban további hirdetések között is böngészhetsz. Ha van kedved, akkor böngészhetsz a Gangel Bence összes hirdetése között, vagy akár a/az Otthon Centrum Pécs - Klimó György utca összes hirdetése között is.

