Eladó új építésű lakás - Pécs
- INGYENES HIRDETÉS FELADÁS
Ingatlan adatai
- Eladó vagy kiadó:Eladó
- Település:Pécs
- Kategória:Lakás
- Alkategória:Tégla
- Alapterület:112 m2
- Csere is:Nem
- Hirdető:Cég
- Élő videón megtekinthető:Nem
- Szobaszám:2
- Állapot:Új építésű
- Hány szintes az ingatlan:Földszintes
- Komfortosság:nincs megadva
- Hányadik emeleti:1
- Erkély:nincs megadva
- Lift:Nincs
- Parkolási lehetőség:nincs megadva
- Fűtés:Gáz (cirko)
- Bútorozottság:nincs megadva
- Fényviszony:nincs megadva
- Tájolás:D
- Kilátás:nincs megadva
- Internet:nincs megadva
- Klíma:nincs megadva
- Akadálymentesített:nincs megadva
- Energiatanúsítvány:nincs megadva
- Villany:Van
- Víz:Van
- Gáz:nincs megadva
- Csatorna:Van
- Kapcsolatfelvétel

Széplaki Dávid
+36-(20)-251-7303
Mondd meg a hirdetőnek, hogy a megveszLAK-on találtad a hirdetést.
Referencia szám: PR034173/LK/26507
Hitel ajánlatok
Ingatlan hirdetés leírása
Eladó lakás, Pécs, Eladó új építésű lakás - Pécs
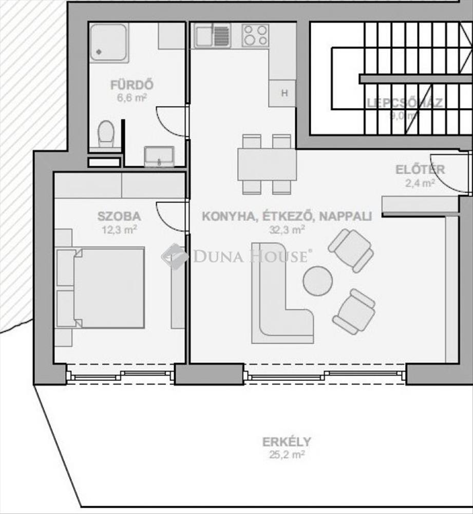
Exkluzív új építésű, örökpanorámás lakások, magas műszaki tartalommal, 54-78m2 közötti lakótérrel, hatalmas teraszokkal leköthetők! Pécs-Mecsekoldal jól megközelíthető részén, 2027 év végéig modern gépészettel(levegő hőszivattyú-padlófűtés, mennyezet hűtéssel), kiváló minőségben kerül kivitelezésre egy 4-4 lakásos társasház két épületegyüttesben. Elérhető lakáslista:A1 Lakás: első emeleti, 54m2-es lakótérrel, amerikai konyha nappali+1 szoba, fürdő-wc elosztású ingatlan 25 m2-es terasszal. Ár: 96. 900. 000 Ft. A2 Lakás: második emeleti, 78 m2-es lakótérrel, amerikai konyha nappal+2 szoba, gardrób, fürdő-wc, mosdó elosztású ingatlan 24 m2-es erkéllyel, 51 m2-es hátsó terasszal és 40m2-es tetőterasszal. Ár:148. 900. 000 Ft. B1 Lakás: első emeleti, 56m2-es lakótérrel, amerikai konyha nappali+1 szoba, fürdő-wc elosztású ingatlan 34 m2-es terasszal. Ár: 98. 900. 000 Ft. B2 lakás:második emeleti, 70m2-es lakótérrel, amerikai konyha nappal+2 szoba, gardrób, fürdő-wc, mosdó elosztású ingatlan 32 m2-es erkéllyel, 51m2-es hátsó terasszal és 40m2-es tetőterasszal. Ár:126. 900. 000 Ft. C1 Lakás: első emeleti, 54m2-es lakótérrel, amerikai konyha nappali+1 szoba, fürdő-wc elosztású ingatlan 26 m2-es terasszal. Ár: 97. 900. 000 Ft. C2 Lakás: második emeleti, 78 m2-es lakótérrel, amerikai konyha nappal+2 szoba, gardrób, fürdő-wc, mosdó elosztású ingatlan 20m2-es erkéllyel, 55 m2-es hátsó terasszal és 40m2-es tetőterasszal. Ár:148. 900. 000 Ft. D1 Lakás: első emeleti, 56m2-es lakótérrel, amerikai konyha nappali+1 szoba, fürdő-wc elosztású ingatlan 36 m2-es terasszal. Ár: 99. 900. 000 Ft. D2 lakás:második emeleti, 70m2-es lakótérrel, amerikai konyha nappal+2 szoba, gardrób, fürdő-wc, mosdó elosztású ingatlan 18 m2-es erkéllyel, 67m2-es hátsó terasszal és 43m2-es tetőterasszal. Ár:132. 900. 000 Ft. a teremgarázsban lakásonként 1 gépkocsibeálló tárolóval +15m Ft/db áron megvásárolható. a társasházat fűtött, magánútról lehet elérni. a vételár tartalmazza a redőnyöket, riasztót, illetve a burkolatok és szaniterek nagy kínálatú termékkatalógusból válaszhatók az építtető által megadott összeghatárig! További értékes információért keressen bizalommal! Hitel.hu - Hasonlítsa össze a bankok lakáshitel ajánlatait
Tetszett ez az eladó Pécsi új építésű 2 szobás tégla lakás? Hívd fel a hirdetőt most, és tudj meg mindent erről az eladó tégla lakásról! Ha gondolod nézelődj tovább az eladó lakás Pécs oldal hirdetései között. Ennek az eladó lakásnak az ára 111900000 Ft és mivel az alapterülete 112 négyzetméter, ezért az átlagos négyzetméterára 999107 HUF/m2.
Az eladó lakások menüpontban további hirdetések között is böngészhetsz. Ha van kedved, akkor böngészhetsz a Széplaki Dávid összes hirdetése között, vagy akár a/az Duna House Pécs, Belváros összes hirdetése között is.

