Eladó új építésű lakás - Pécs
- INGYENES HIRDETÉS FELADÁS
Ingatlan adatai
- Eladó vagy kiadó:Eladó
- Település:Pécs
- Kategória:Lakás
- Alkategória:Tégla
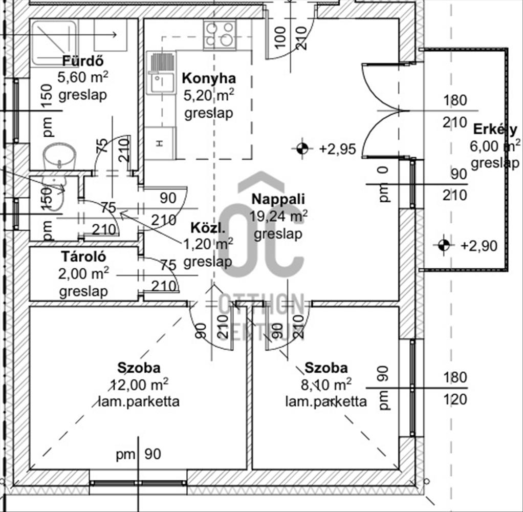
- Alapterület:60 m2
- Csere is:Nem
- Hirdető:Cég
- Élő videón megtekinthető:Nem
- Szobaszám:3
- Állapot:Új építésű
- Hány szintes az ingatlan:nincs megadva
- Komfortosság:nincs megadva
- Hányadik emeleti:nincs megadva
- Erkély:Van
- Lift:nincs megadva
- Parkolási lehetőség:nincs megadva
- Fűtés:nincs megadva
- Bútorozottság:nincs megadva
- Fényviszony:nincs megadva
- Tájolás:ÉK
- Kilátás:Udvari
- Internet:nincs megadva
- Klíma:nincs megadva
- Akadálymentesített:nincs megadva
- Energiatanúsítvány:nincs megadva
- Villany:Van
- Víz:Van
- Gáz:Utcában
- Csatorna:Van
- Kapcsolatfelvétel

Bayerné Erős Brigitta
+36-(70)-412-3411
Mondd meg a hirdetőnek, hogy a megveszLAK-on találtad a hirdetést.
Hitel ajánlatok
Ingatlan hirdetés leírása
Az első közös otthon nem csak négy fal. Ez az a hely, ahol reg...
Az első közös otthon nem csak négy fal.
Ez az a hely, ahol reggelek indulnak, esték összebújással végződnek, és a jövőtök lépésről lépésre formálódik.
Pécs szívében, egy csendes, biztonságos környéken található ez az 54, 4 m²-es, új építésű lakás,
praktikus, nappali, 2 háló elrendezéssel, amely ideális teret ad a közös élethez és a saját pillanatokhoz is.
Az lakás épül. . 2026. Decemberében már a tietek lehet. .
A korszerű hőszivattyús fűtés kényelmet és alacsony rezsiköltséget biztosít – így több marad közös élményekre.
A 6 m²-es erkély tökéletes helyszín reggeli kávékhoz, esti beszélgetésekhez, csendes megállásokhoz a rohanó hétköznapokban.
A közeli parkok, zöld területek és Pécs pezsgő kulturális élete egyszerre nyújtanak nyugalmat és inspirációt.
Ha egy olyan otthont kerestek, ahol nem csak élni, hanem együtt tervezni is lehet, ez a lakás rátok vár.
Keressetek bizalommal, és nézzétek meg személyesen az első közös otthonotokat! FIX 3% lakáshitelre megvehető
Tetszett ez az eladó Pécsi új építésű 3 szobás tégla lakás? Hívd fel a hirdetőt most, és tudj meg mindent erről az eladó tégla lakásról! Ha gondolod nézelődj tovább az eladó lakás Pécs oldal hirdetései között. Ennek az eladó lakásnak az ára 55000000 Ft és mivel az alapterülete 60 négyzetméter, ezért az átlagos négyzetméterára 916667 HUF/m2.
Az eladó lakások menüpontban további hirdetések között is böngészhetsz. Ha van kedved, akkor böngészhetsz a Bayerné Erős Brigitta összes hirdetése között, vagy akár a/az Otthon Centrum Pécs - Király utca összes hirdetése között is.

