Eladó átlagos állapotú lakás - Pécs
- INGYENES HIRDETÉS FELADÁS
Ingatlan adatai
- Eladó vagy kiadó:Eladó
- Település:Pécs
- Kategória:Lakás
- Alkategória:Tégla
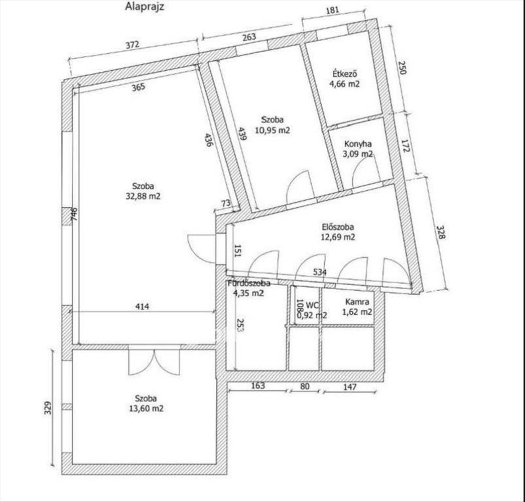
- Alapterület:85 m2
- Csere is:Nem
- Hirdető:Cég
- Élő videón megtekinthető:Nem
- Szobaszám:2 + 1 fél
- Állapot:Átlagos állapotú
- Hány szintes az ingatlan:Földszintes
- Komfortosság:nincs megadva
- Hányadik emeleti:4
- Erkély:nincs megadva
- Lift:Nincs
- Parkolási lehetőség:nincs megadva
- Fűtés:Házközponti
- Bútorozottság:nincs megadva
- Fényviszony:Napfényes
- Tájolás:nincs megadva
- Kilátás:nincs megadva
- Internet:nincs megadva
- Klíma:nincs megadva
- Akadálymentesített:nincs megadva
- Energiatanúsítvány:nincs megadva
- Villany:Van
- Víz:Van
- Gáz:nincs megadva
- Csatorna:Van
- Közös költség:1 000 Ft
- Kapcsolatfelvétel

Borvári Mária
+36-(70)-393-4905
Mondd meg a hirdetőnek, hogy a megveszLAK-on találtad a hirdetést.
Referencia szám: M320159
Hitel ajánlatok
Ingatlan hirdetés leírása
Eladó Lakás, Pécs, Eladó átlagos állapotú lakás - Pécs
Baranya megyében, Pécsen, Uránvárosban eladó egy 2, 5 szobás, 4. emeleti lakás a Mecsek Áruházzal szemben, az Ybl Miklós utcában található, négyemeletes téglaház legfelső szintjén. Az ingatlan nyugati és északi tájolású.
A lépcsőházban ugyan nincs lift, azonban a déli lépcsőházban található felvonó, amely a függőfolyosón keresztül könnyen megközelíthető.
A lakás alapterülete 85 m². a szobák parkettásak, a többi helyiség műanyag burkolatot kapott. Összkomfortos, házközponti fűtéssel rendelkezik, radiátoros hőleadással.
A környék kiváló infrastruktúrával bír: a közelben üzletek, OTP fiók és atm is megtalálható a házban. Körülbelül 200 méterre rendelőintézet, 500 méteren belül óvoda, iskola és játszótér is elérhető. a belvárosba közlekedő buszok megállói szintén 200 méteren belül vannak. Az Orvosi Egyetem 1, 3 km-re található, gyalog nagyjából 15 perc, busszal pedig 3 megálló.
További információért keressen bizalommal akár hétvégén is, és tekintse meg az ingatlant személyesen!
Az OTP Ingatlanpont teljes körű ügyintézéssel segíti az eladókat és a vevőket egyaránt. (M320159)
59800000 Ft
Referencia szám: m320159 FIX 3% lakáshitelre megvehető
Tetszett ez az eladó Pécsi átlagos állapotú 2 egész és 1 fél szobás tégla lakás? Hívd fel a hirdetőt most, és tudj meg mindent erről az eladó tégla lakásról! Ha gondolod nézelődj tovább az eladó lakás Pécs oldal hirdetései között. Ennek az eladó lakásnak az ára 59800000 Ft és mivel az alapterülete 85 négyzetméter, ezért az átlagos négyzetméterára 703529 HUF/m2.
Az eladó lakások menüpontban további hirdetések között is böngészhetsz. Ha van kedved, akkor böngészhetsz a Borvári Mária összes hirdetése között, vagy akár a/az OTPip Pécs Király utca 75 - OTP Ingatlanpont Iroda összes hirdetése között is.

