Eladó átlagos állapotú lakás - Pécs
- INGYENES HIRDETÉS FELADÁS
Ingatlan adatai
- Eladó vagy kiadó:Eladó
- Település:Pécs
- Kategória:Lakás
- Alkategória:Tégla
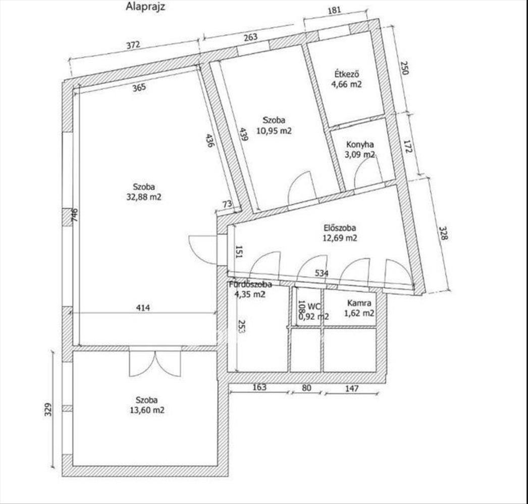
- Alapterület:85 m2
- Csere is:Nem
- Hirdető:Cég
- Élő videón megtekinthető:Nem
- Szobaszám:3
- Állapot:Átlagos állapotú
- Hány szintes az ingatlan:Földszintes
- Komfortosság:nincs megadva
- Hányadik emeleti:4
- Erkély:nincs megadva
- Lift:Nincs
- Parkolási lehetőség:nincs megadva
- Fűtés:Házközponti egyedi mérővel
- Bútorozottság:nincs megadva
- Fényviszony:Napfényes
- Tájolás:NY
- Kilátás:Panorámás
- Internet:nincs megadva
- Klíma:nincs megadva
- Akadálymentesített:nincs megadva
- Energiatanúsítvány:nincs megadva
- Villany:Van
- Víz:Van
- Gáz:nincs megadva
- Csatorna:Van
- Közös költség:1 000 Ft
- Kapcsolatfelvétel

Vincze László György
+36-(20)-938-4141
Mondd meg a hirdetőnek, hogy a megveszLAK-on találtad a hirdetést.
Referencia szám: M320159
Hitel ajánlatok
Ingatlan hirdetés leírása
Eladó Lakás, Pécs, Eladó átlagos állapotú lakás - Pécs
Baranya megyében, 2, 5 szobás 4. emeleti lakás eladó Pécsen a Mecsek áruházzal szemben.
Uránvárosban az Ybl Miklós utcai 4 emeletes téglaház legfelső emeletén van nyugati és északi tájolással.
A lépcsőházban nincs lift, viszont a déli lépcsőházban van, és a függőfolyosón át lehet sétálni.
A 85 négyzetméteres alapterületű. a szobák parkettával, a többi helyiségek műanyag padlóval vannak burkolva. Összkomfortos, házközponti fűtéssel, radiátorok segítségével. a közelben minden beszerezhető az üzletekben. OTP fiók és atm is van a házban. 200 Méterre rendelőintézet van. Óvoda, iskola, játszótér is 500 méteren belül található. Az összes belvárosba tartó busz a kétszáz méteren belül áll meg. Az Orvosi egyetem 1, 3 kilométerre van. Gyalog 15 perc, busszal 3 megálló.
További információkért hívjon, nézze meg, tegyen egy ajánlatot hét végén is!
Az OTP ingatlanpont teljes körű ügyintézéssel áll az eladók és a vevők rendelkezésére! a megvásárolni kívánt ingatlan finanszírozásához a CSOK-pluszt, a Babaváró hitelt, a start hitelt (3 %), a kedvezményes hitelkonstrukciókat helyben ingyenesen intézzük. Az adásvételi szerződés megkötéséhez igény szerint megbízható ügyvédi közreműködést, az energetikai tanúsítvány elkészítéséhez energetikust biztosítunk, segítséget nyújtunk az adásvételhez kapcsolódó ügyintézésben az ajánlattételtől a birtokba lépésig. Várom hívását a hét minden napján, megtekintést rugalmasan egyeztetek.
59800000 Ft
Referencia szám: m320159 FIX 3% lakáshitelre megvehető
Tetszett ez az eladó Pécsi átlagos állapotú 3 szobás tégla lakás? Hívd fel a hirdetőt most, és tudj meg mindent erről az eladó tégla lakásról! Ha gondolod nézelődj tovább az eladó lakás Pécs oldal hirdetései között. Ennek az eladó lakásnak az ára 59800000 Ft és mivel az alapterülete 85 négyzetméter, ezért az átlagos négyzetméterára 703529 HUF/m2.
Az eladó lakások menüpontban további hirdetések között is böngészhetsz. Ha van kedved, akkor böngészhetsz a Vincze László György összes hirdetése között, vagy akár a/az OTPip Pécs Király utca 75 - OTP Ingatlanpont Iroda összes hirdetése között is.

