Eladó felújítandó ház - Alap
- INGYENES HIRDETÉS FELADÁS
Ingatlan adatai
- Feladva:43 napja a megveszLAK-on
- Eladó vagy kiadó:Eladó
- Település:Alap
- Kategória:Ház
- Alkategória:Családi ház
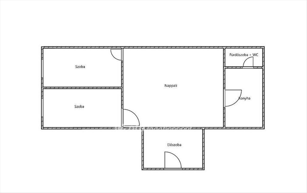
- Alapterület:69 m2
- Telekterület:1903 m2
- Csere is:Nem
- Hirdető:Cég
- Élő videón megtekinthető:Nem
- Építés éve:1950
- Szobaszám:2
- Állapot:Felújítandó
- Hány szintes az ingatlan:Földszintes
- Tetőtér:nincs megadva
- Komfortosság:nincs megadva
- Pince:nincs megadva
- Parkolási lehetőség:Udvaron
- Fűtés:Egyéb
- Bútorozottság:nincs megadva
- Fényviszony:Napfényes
- Tájolás:nincs megadva
- Kilátás:nincs megadva
- Internet:nincs megadva
- Klíma:nincs megadva
- Akadálymentesített:nincs megadva
- Energiatanúsítvány:I
- Villany:nincs megadva
- Víz:nincs megadva
- Gáz:nincs megadva
- Csatorna:nincs megadva
- Kapcsolatfelvétel

Forgács Martin
+36-(70)-228-7071
Mondd meg a hirdetőnek, hogy a megveszLAK-on találtad a hirdetést.
Referencia szám: M326027
Hitel ajánlatok
Ingatlan hirdetés leírása
Eladó Ház, Alap, Eladó felújítandó ház - Alap
Fejér vármegyében, Alapon eladóvá vált egy 69m2-es vegyes falazatú, cseréptetővel ellátott családi ház. Az ingatlan jogilag rendezett, teher- és tartozásmentes.
A házban az abalakok illetve ajtók cserélve lettek. Az ingatlan felújítást igényel. Víz, villany és szennyvíz akna van.
A házhoz tartozik egy melléképület is.
A telek 1903m2-es.
Székesfehérvár csupán 50 km, a Balaton legközelebbi pontja pedig mindössze 40 km távolságra érhető el.
Az OTP Ingatlanpont teljeskörű ügyintézéssel áll az eladók és a vevők rendelkezésére! a kínálatunkból választott ingatlan finanszírozásához kedvezményes hitel- és pénzügyi konstrukciókat kínálunk. Az adásvételi szerződés megkötéséhez igény szerint megbízható ügyvédi közreműködést és a kapcsolódó ügyek intézéséhez segítséget nyújtunk.
Amennyiben megtetszett Önnek a hirdetés és bármi kérdése lenne, kérem keressen bizalommal. Köszönöm! FIX 3% lakáshitelre megvehető
Tetszett ez az eladó Alapi felújítandó 2 szobás családi ház? Hívd fel a hirdetőt most, és tudj meg mindent erről az eladó családi házról! Ha gondolod nézelődj tovább az eladó ház Alap oldal hirdetései között. Ennek az eladó háznak az ára 20000000 Ft és mivel az alapterülete 69 négyzetméter, ezért az átlagos négyzetméterára 289855 HUF/m2.
Az eladó házak menüpontban további hirdetések között is böngészhetsz. Ha van kedved, akkor böngészhetsz a Forgács Martin összes hirdetése között, vagy akár a/az OTPip Székesfehérvár Palotai út 8 - OTP Ingatlanpont Iroda összes hirdetése között is.

