- >>
- eladó ingatlanok
- >>
- eladó ház
- >>
- eladó ház Budapest XX. kerület
- >>
Eladó ház - Budapest XX. kerület
| | |||
| Kedvencnek jelölöm | Elküldöm emailben | Megosztás | Szavazás |
| FIX 3% lakáshitelre megvehető | |||
| 84 900 000 HUF | |||
Ingatlan adatai
- Eladó vagy kiadó:Eladó
- Település:Budapest XX. kerület
- Kategória:Ház
- Alkategória:Családi ház
- Alapterület:295 m2
- Telekterület:535 m2
- Csere is:Nem
- Hirdető:Cég
- Élő videón megtekinthető:Nem
- Építés éve:2008
- Szobaszám:11
- Állapot:nincs megadva
- Hány szintes az ingatlan:Földszintes
- Tetőtér:nincs megadva
- Komfortosság:nincs megadva
- Parkolási lehetőség:nincs megadva
- Fűtés:Hőszivattyús
- Bútorozottság:nincs megadva
- Fényviszony:Napfényes
- Tájolás:DK
- Kilátás:nincs megadva
- Internet:nincs megadva
- Akadálymentesített:nincs megadva
- Energiatanúsítvány:nincs megadva
- Villany:nincs megadva
- Víz:nincs megadva
- Gáz:nincs megadva
- Csatorna:nincs megadva
- Üzenetküldés
- Hívás

Referencia szám: HZ047979

Hitel ajánlat
Ingatlan hirdetés leírása
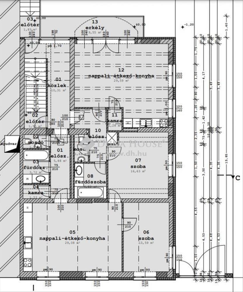
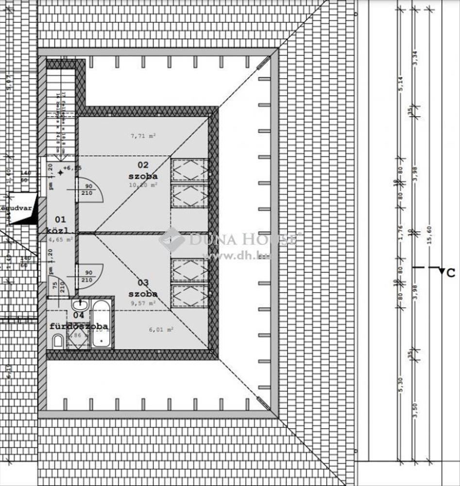
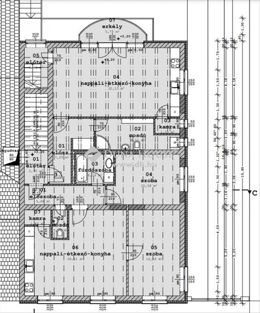
Eladó ház, Budapest 20. ker.
XX. kerületben a Szent Erzsébet térnél a kerület központjában, 535 nm-es telken álló, három szintes négy lakásos társasház tervekkel, dokumentációval, kedvező haszonnal lehetőségével eladó! a bal oldali telekhatáron álló épület részletesen:-1. (Nem) lakószint: 3x11 nm tároló + 16 nm gépészet- földszint: 115 nm fűtött alapterület + 10nm terasz- emelet: 121 nm fűtött alapterület + 6 nm erkély- tetőtér: 26 nm nettó alapterület Jelenlegi tervek alapján 262 nm adható el, autóbeállókat a telken belül kell kialakítani. a tulajdoni lap tehermentes, a befejezés azonnal megkezdhető, az építés nem engedélyköteles. Hőszivattyús fűtés lett tervezve, de ettől igény esetén el lehet térni. További kérdéseivel keressen bizalommal, vagy küldjön üzenetet!Referencia szám: hz047979 FIX 3% lakáshitelre megvehető

