Eladó újszerű állapotú ház Fót
| Kedvencbe | Megosztás | Árfigyelő |
| Kedvezményes lakáshitel ajánlatok | ||
| 262 000 000 HUF | ||
Ingatlan adatai
- Eladó vagy kiadó:Eladó
- Település:Fót
- Kategória:Ház
- Alkategória:Családi ház
- Alapterület:260 m2
- Telekterület:769 m2
- Csere is:Nem
- Hirdető:Cég
- Élő videón megtekinthető:Nem
- Építés éve:2022
- Szobaszám:6
- Állapot:Újszerű, kitűnő
- Hány szintes az ingatlan:Földszintes
- Tetőtér:nincs megadva
- Komfortosság:nincs megadva
- Parkolási lehetőség:nincs megadva
- Fűtés:Hőszivattyús
- Bútorozottság:nincs megadva
- Fényviszony:Napfényes
- Tájolás:DNY
- Kilátás:nincs megadva
- Internet:nincs megadva
- Akadálymentesített:nincs megadva
- Energiatanúsítvány:nincs megadva
- Villany:nincs megadva
- Víz:nincs megadva
- Gáz:nincs megadva
- Csatorna:nincs megadva
- Üzenetküldés
- Hívás

Referencia szám: HZ028948

Hitel ajánlat
Ingatlan hirdetés leírása
Eladó ház, Fót, Eladó újszerű állapotú ház - Fót
Exkluzív téglaépítésű családi otthon Fóton!Ezt az egyedi, 2022-ben épült, téglaépítésű, kertkapcsolatos családi otthont, azoknak ajánljuk, akik a kiemelkedő minőséget és a természet közelségét keresik.
Budapesthez közel, mégis távol a város zajától, Fóton található ez a különleges, napfényes 260 m2-es családi ház, ami egy több, mint 760 m2-es telken áll 262 millió forintért lehet az Öné.
Az otthon a modern építészeti megoldásokat és a kényelmet ötvözi, és rendelkezik a legújabb technológiákkal, így az épületben hőszivattyús fűtési rendszer gondoskodik a kellemes hőmérsékletről minden évszakban. Az ingatlan kialakítása biztosítja, hogy minden helyiség könnyen és kényelmesen megközelíthető és használható legyen.
A házat jó megközelíthetőség jellemzi, mind Fóton belül, mind a Budapest közelségének tekintetében. Így az itt élő a városi élet számos előnyét is élvezheti, miközben kertvárosi környezetben él.
Földszinten található helyiségek:
Előszoba - 12 m2
Nappali 43 m2
Szoba 18 m2
Szoba 22 m2
Konyha + étkező - 15 m2
Kamra 3 m2Tároló - 3 m2
Fürdőszoba, WC-vel 6 m2
Gardróbszoba - 4 m2
Mosókonyha (gépészet) - 4 m2
A házhoz kapcsolódik még egy hatalmas fedett terasz, ahová még esős időben is kiülhetünk, gyönyörű, gyepesített kert, medence, fedett sütögető sarok, nagy kerti tároló ház, valamint egy kétbeállásos garázs is.
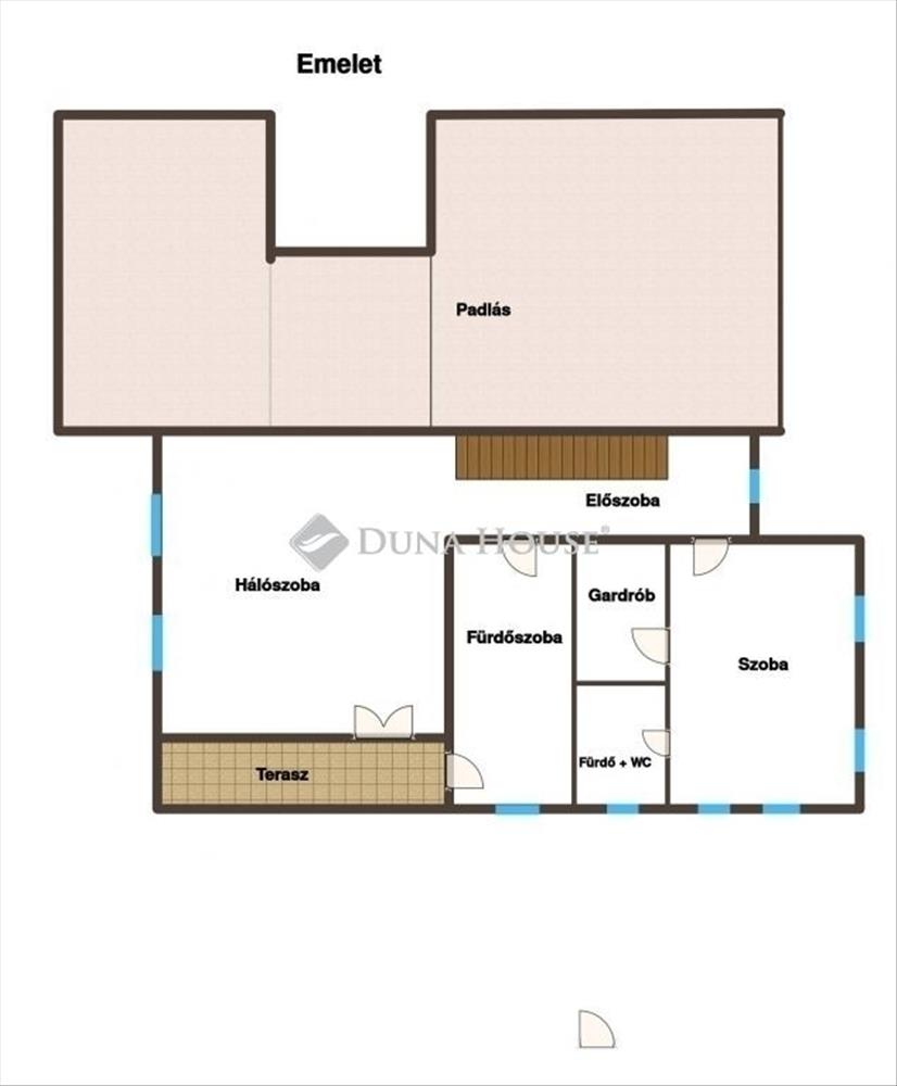
Emeleten található helyiségek:
Közlekedő - 9 m2
Hálószoba - 27 m2
Szoba 18 m2
Fürdőszoba - 15 m2
Zuhanyzó - 4 m2
Gardróbszoba - 4 m2
A hálószobához egy 14 m2 es terasz kapcsolódik panoráma kilátással. a ház elhelyezkedése ideális, csendes és barátságos környezetben található.
Az úszómedencés kert, valamint az emeleti szint teraszáról nyíló kilátás lehetőséget nyújt a pihentető kikapcsolódásra és a természetközeli élet élvezetére.
A ház praktikus kialakítása ideális otthoni iroda kialakítására, így az otthoni munkavégzés számára is ideális. Hitel.hu - Hasonlítsa össze a bankok lakáshitel ajánlatait

