Eladó újszerű állapotú ház - Fót
- INGYENES HIRDETÉS FELADÁS
Ingatlan adatai
- Eladó vagy kiadó:Eladó
- Település:Fót
- Kategória:Ház
- Alkategória:Családi ház
- Alapterület:260 m2
- Telekterület:769 m2
- Csere is:Nem
- Hirdető:Cég
- Élő videón megtekinthető:Nem
- Építés éve:2022
- Szobaszám:6
- Állapot:Újszerű, kitűnő
- Hány szintes az ingatlan:Földszintes
- Tetőtér:nincs megadva
- Komfortosság:nincs megadva
- Pince:nincs megadva
- Parkolási lehetőség:nincs megadva
- Fűtés:Hőszivattyús
- Bútorozottság:nincs megadva
- Fényviszony:Napfényes
- Tájolás:DNY
- Kilátás:nincs megadva
- Internet:nincs megadva
- Klíma:nincs megadva
- Akadálymentesített:nincs megadva
- Energiatanúsítvány:nincs megadva
- Villany:nincs megadva
- Víz:nincs megadva
- Gáz:nincs megadva
- Csatorna:nincs megadva
- Kapcsolatfelvétel

Kosik Henrietta
+36-(30)-842-0009
Mondd meg a hirdetőnek, hogy a megveszLAK-on találtad a hirdetést.
Referencia szám: HZ028948
Hitel ajánlatok
Ingatlan hirdetés leírása
Eladó ház, Fót, Eladó újszerű állapotú ház - Fót
Exkluzív téglaépítésű családi otthon Fóton
Ezt az egyedi, 2022-ben épült, téglaépítésű, kertkapcsolatos családi otthont, azoknak ajánljuk, akik a kiemelkedő minőséget és a természet közelségét keresik. Budapest szívéhez közel, mégis távol a város zajától, Fóton található ez a különleges, napfényes 260 m2-es családi ház, ami egy több, mint 760 m2-es telken áll 262 millió forintért lehet az Öné.
Az otthon a modern építészeti megoldásokat és a kényelmet ötvözi, és rendelkezik a legújabb technológiákkal, így az épületben hőszivattyús fűtési rendszer gondoskodik a kellemes hőmérsékletről minden évszakban. Az ingatlan kialakítása biztosítja, hogy minden helyiség könnyen és kényelmesen megközelíthető és használható legyen.
A házat jó megközelíthetőség jellemzi, mind Fóton belül, mind a Budapest közelségének tekintetében. Így az itt élő a városi élet számos előnyét is élvezheti, miközben kertvárosi környezetben él.
Földszinten található helyiségek:
Előszoba - 12 m2
Nappali 43 m2
Szoba 18 m2
Szoba 22 m2
Konyha + étkező - 15 m2
Kamra 3 m2
Tároló - 3 m2
Fürdőszoba, WC-vel 6 m2
Gardróbszoba - 4 m2
Mosókonyha (gépészet) - 4 m2
A házhoz kapcsolódik egy hatalmas fedett terasz, ahová még esős időben is kiülhetünk, gyönyörű, gyepesített kert, medence, fedett sütögető sarok, nagy kerti tároló ház, valamint egy kétállásos garázs is.
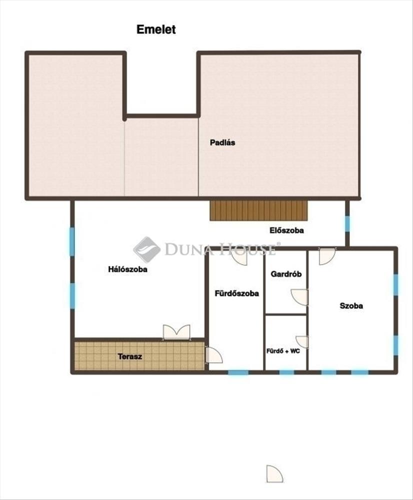
Emeleten található helyiségek:
Közlekedő - 9 m2
Hálószoba - 27 m2
Szoba 18 m2
Fürdőszoba - 15 m2
Zuhanyzó - 4 m2
Gardróbszoba - 4 m2
A hálószobához egy 14 m2 es terasz kapcsolódik panoráma kilátással.
A ház elhelyezkedése ideális, csendes és barátságos környezetben található. Az úszómedencés kert, valamint az emeleti szint teraszáról nyíló kilátás lehetőséget nyújt a pihentető kikapcsolódásra és a természetközeli élet élvezetére.
A ház praktikus kialakítása ideális otthoni iroda kialakítására, így az otthoni munkavégzés számára is ideális.
Referencia szám: hz028948 Hitel.hu - Hasonlítsa össze a bankok lakáshitel ajánlatait
Tetszett ez az eladó Fóti újszerű állapotú 6 szobás családi ház? Hívd fel a hirdetőt most, és tudj meg mindent erről az eladó családi házról! Ha gondolod nézelődj tovább az eladó ház Fót oldal hirdetései között. Ennek az eladó háznak az ára 262000000 Ft és mivel az alapterülete 260 négyzetméter, ezért az átlagos négyzetméterára 1007692 HUF/m2.
Az eladó házak menüpontban további hirdetések között is böngészhetsz. Ha van kedved, akkor böngészhetsz a Kosik Henrietta összes hirdetése között, vagy akár a/az Duna House Dunaharaszti összes hirdetése között is.

