Eladó új építésű ház Horvátország, Vir
| Kedvencbe | Megosztás | Árfigyelő |
| Kedvezményes lakáshitel ajánlatok | ||
| 296 883 600 HUF | ||
Ingatlan adatai
- Eladó vagy kiadó:Eladó
- Település:Vir
- Kategória:Ház
- Alkategória:Családi ház
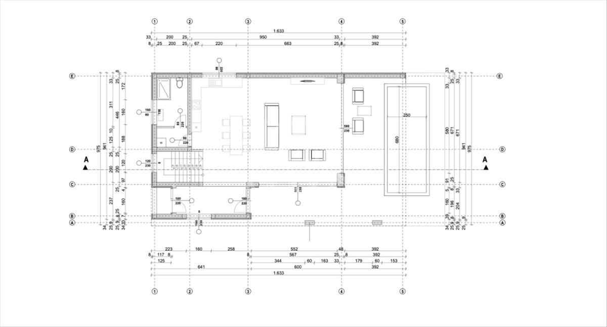
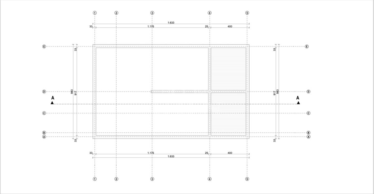
- Alapterület:252 m2
- Telekterület:nincs megadva
- Csere is:Nem
- Hirdető:Cég
- Élő videón megtekinthető:Nem
- Szobaszám:4
- Állapot:Új építésű
- Hány szintes az ingatlan:2 szintes
- Tetőtér:nincs megadva
- Komfortosság:nincs megadva
- Parkolási lehetőség:Beállóban
- Fűtés:Elektromos
- Bútorozottság:nincs megadva
- Fényviszony:nincs megadva
- Tájolás:nincs megadva
- Kilátás:nincs megadva
- Internet:nincs megadva
- Akadálymentesített:nincs megadva
- Energiatanúsítvány:nincs megadva
- Villany:Telken belül
- Víz:Telken belül
- Gáz:nincs megadva
- Csatorna:Telken belül
- Üzenetküldés
- Hívás


Hitel ajánlat
Ingatlan hirdetés leírása
A GDN Ingatlanhálózat 2012-es indulása óta hazánk meghatározó ...
A GDN Ingatlanhálózat 2012-es indulása óta hazánk meghatározó és formáló piaci szereplőjévé vált. Fontos mérföldkőhöz érkeztünk, hiszen Románia után Horvátországban is megkezdjük működésünket – első körben Vir szigetén, amely természeti adottságainak, egyedülálló atmoszférájának és kiváló közlekedési infrastruktúrájának köszönhetően vonzó turisztikai desztináció. Viren gyakorta hallhatunk magyar szót, hiszen honfitársaink körében is nagy népszerűségnek örvend ez a paradicsomi sziget.Viren egy tengerparti ház nem csak presztízs – sokkal inkább szabadság, életérzés és a felejthetetlen élmények tökéletes ötvözete. Élje át ezt a csodát!
Horvátországi kínálatunkban újépítésű apartmanok, családi házak és telkek is megtalálhatók, de igény szerint emellett szakmai tanácsadásban, jogi támogatásban, költöztetésben és a megvásárolt ingatlan üzemeltetésében is számíthatnak ránk az ügyfeleink.
Ezen a telken érvényes építési engedély van. Az építés azonnal kezdhető, és igény szerint az engedély módosítható is, tehát lehet változtatni a terveken.
Lehetőség van csak a telek vásárlására is!
Ár: 159. 000 Eu.
Keressen minket bizalommal, örömmel állunk a szolgálatára!
Szívélyes üdvözlettel,
Tőkés Levente Hitel.hu - Hasonlítsa össze a bankok lakáshitel ajánlatait

