Eladó jó állapotú ház Jászberény
| Kedvencbe | Megosztás | Árfigyelő |
| FIX 3% lakáshitelre megvehető | ||
| 59 000 000 HUF | ||
Ingatlan adatai
- Eladó vagy kiadó:Eladó
- Település:Jászberény
- Kategória:Ház
- Alkategória:Családi ház
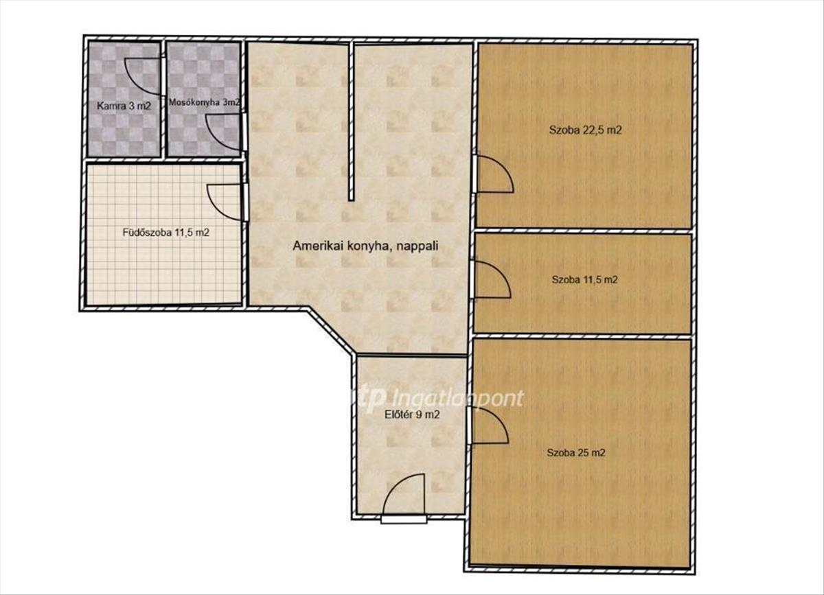
- Alapterület:110 m2
- Telekterület:572 m2
- Csere is:Nem
- Hirdető:Cég
- Élő videón megtekinthető:Nem
- Építés éve:1962
- Szobaszám:4 + 1 fél
- Állapot:Jó állapotú
- Hány szintes az ingatlan:Földszintes
- Tetőtér:nincs megadva
- Komfortosság:nincs megadva
- Parkolási lehetőség:Udvaron
- Fűtés:Gáz (cirko)
- Bútorozottság:nincs megadva
- Fényviszony:Jó
- Tájolás:nincs megadva
- Kilátás:nincs megadva
- Internet:nincs megadva
- Akadálymentesített:nincs megadva
- Energiatanúsítvány:H
- Villany:nincs megadva
- Víz:nincs megadva
- Gáz:nincs megadva
- Csatorna:nincs megadva
- Üzenetküldés
- Hívás

Referencia szám: M301100

Hitel ajánlat
Ingatlan hirdetés leírása
Eladó Ház, Jászberény
Jász-Nagykun-Szolnok vármegyei Jászberény központjában remek állapotú összkomfortos családi ház eladó!Központi elhelyezkedése miatt óvoda, iskola, orvosi rendelő, gyógyszertár gyorsan megközelíthető.
A ház 110 m2 -es hasznos alapterülete és remek elrendezése miatt tágas otthon lehet nagy családosok számára is. Az ingatlanban található 3 hálószoba, amerikai konyhás nappali, fürdőszoba zuhanyzóval és fürdőkáddal, mosókonyha, kamra. Kondenzációs illetve vegyes tüzelésű kazánnal is üzemeltethető a központi fűtés. a hűtésről 3 nagy teljesítményű klíma gondoskodik. Igény esetén a tetőtér beépíthető.
Az 572 m2-es telek nagy része térkővel illetve műfűvel borított. Az ingatlanhoz tartozik még egy 100m2-es melléképület amelyben megtalálható garázs, szauna, tároló és egy újonnan felújított külön vizesblokkal rendelkező lakrész. Nagy családosok és befektetők részére is kiváló választás
Az OTP Bankcsoport teljes körű ügyintézéssel áll az eladók és a vevők rendelkezésére! a vásárlás finanszírozásában az OTP kedvező hitelkonstrukcióival, CSOK és a támogatott hitel lehetőségével, vagy akár a babaváró hitel ilyen célra történő felhasználásával tud segíteni. Az adásvételi szerződés megkötéséhez igény szerint megbízható ügyvédi közreműködést biztosítunk, és segítséget nyújtunk az adásvételhez kapcsolódó ügyek intézéséhez. Akár hétvégén is hívható vagyok! Keressen bizalommal!
Referencia szám: m301100 FIX 3% lakáshitelre megvehető

