Eladó újszerű állapotú ház Kecskemét
| Kedvencbe | Megosztás | Árfigyelő |
| FIX 3% lakáshitelre megvehető | ||
| 98 000 000 HUF | ||
Ingatlan adatai
- Eladó vagy kiadó:Eladó
- Település:Kecskemét
- Kategória:Ház
- Alkategória:Családi ház
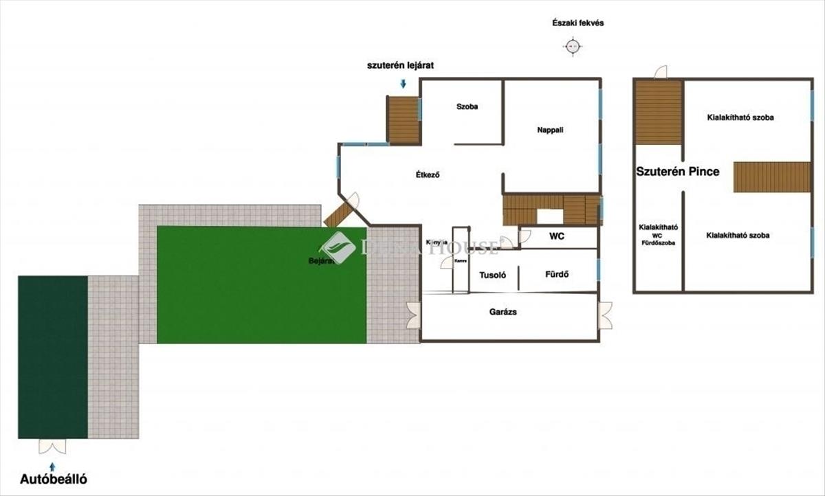
- Alapterület:210 m2
- Telekterület:252 m2
- Csere is:Nem
- Hirdető:Cég
- Élő videón megtekinthető:Nem
- Építés éve:1975
- Szobaszám:5
- Állapot:Újszerű, kitűnő
- Hány szintes az ingatlan:Földszintes
- Tetőtér:nincs megadva
- Komfortosság:nincs megadva
- Parkolási lehetőség:nincs megadva
- Fűtés:Gáz
- Bútorozottság:nincs megadva
- Fényviszony:Napfényes
- Tájolás:ÉNY
- Kilátás:nincs megadva
- Internet:nincs megadva
- Akadálymentesített:nincs megadva
- Energiatanúsítvány:nincs megadva
- Villany:nincs megadva
- Víz:nincs megadva
- Gáz:nincs megadva
- Csatorna:nincs megadva
- Üzenetküldés
- Hívás

Referencia szám: HZ092925

Hitel ajánlat
Ingatlan hirdetés leírása
6000 Kecskemét - Felújított családi ház
Egyedi lehetőség Máriaváros közkedvelt részén szinte önellátó családi ház testreszabható befejezéssel!Eladásra kínálunk egy különleges adottságokkal rendelkező ingatlant a Máriaváros egyik legkeresettebb részén. a ház egy közös udvaron helyezkedik el, de saját, leválasztott magánrésszel rendelkezik, így a nyugalom és az intimitás garantált.
Közvetlen bejárat a garázsból kényelmes és praktikus megoldás a mindennapokra.
85%-Ban kész állapotban a tulajdonos az Ön igényei szerint fejezi be a házat, beleértve a lépcsőteret és a földszinti fürdőszobát is. Így valóban olyan otthont alakíthat ki, amilyenre mindig is vágyott.
Napelemes rendszer saját energiatárolóval az el nem használt energiát újrahasznosítja, így az ingatlan szinte önellátóvá válik. Ez nemcsak környezetbarát, hanem pénztárcakímélő megoldás is!
Ez az ingatlan ideális választás azoknak, akik a modern technológiát, a rugalmas kialakítást és a kiváló elhelyezkedést keresik egy otthonban. Ne hagyja ki ezt a lehetőséget lépjen kapcsolatba velünk, és valósítsa meg álmai otthonát!
98000000 Ft
További információért, illetve időpont egyeztetéssel
kapcsolatban keressen bizalommal.
Az Ön értékesítője: Gömöri Attila +36301399323
Referencia szám: hz092925-ml FIX 3% lakáshitelre megvehető

