Eladó jó állapotú ház Miskolc
| Kedvencbe | Megosztás | Árfigyelő |
| FIX 3% lakáshitelre megvehető | ||
| 64 900 000 HUF | ||
Ingatlan adatai
- Eladó vagy kiadó:Eladó
- Település:Miskolc
- Kategória:Ház
- Alkategória:Családi ház
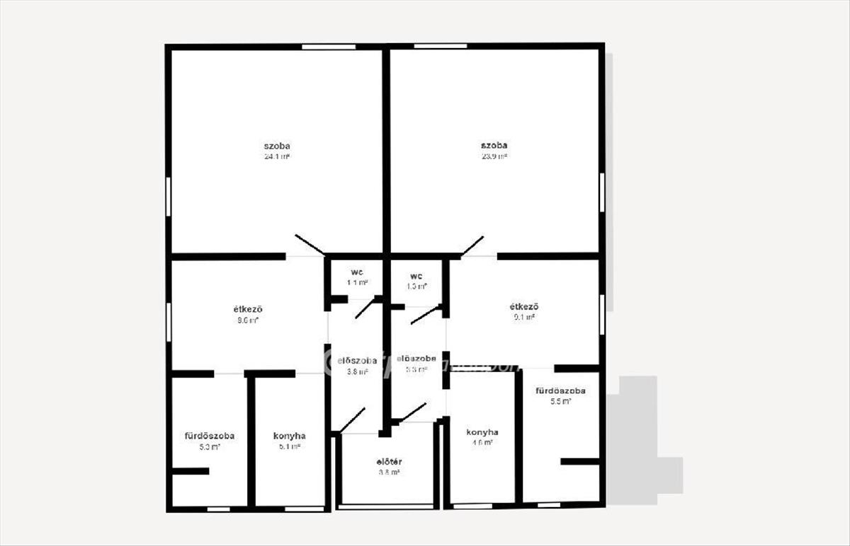
- Alapterület:120 m2
- Telekterület:407 m2
- Csere is:Nem
- Hirdető:Cég
- Élő videón megtekinthető:Nem
- Építés éve:1970
- Szobaszám:4
- Állapot:Jó állapotú
- Hány szintes az ingatlan:2 szintes
- Tetőtér:nincs megadva
- Komfortosság:nincs megadva
- Parkolási lehetőség:Udvaron
- Fűtés:Gáz (cirko)
- Bútorozottság:nincs megadva
- Fényviszony:Napfényes
- Tájolás:nincs megadva
- Kilátás:nincs megadva
- Internet:nincs megadva
- Klíma:Van
- Akadálymentesített:nincs megadva
- Energiatanúsítvány:nincs megadva
- Villany:nincs megadva
- Víz:nincs megadva
- Gáz:nincs megadva
- Csatorna:nincs megadva
- Üzenetküldés
- Hívás

dr. Rohács Andrea
Mondd meg a hirdetőnek, hogy a megveszLAK-on találtad a hirdetést.
Referencia szám: M298832

Hitel ajánlat
Ingatlan hirdetés leírása
Miskolc, belváros közeli 120 nm-es, 4 szobás családi ház!
Kivételes befektetési lehetőség Miskolc belvárosában! Képzelje el, hogy a város szívében, egy csendes környéken birtokolhat egy ingatlant, amely számtalan lehetőséget kínál Önnek. Ezen a különleges helyen Eladó egy tágas, három külön lakrésszel rendelkező családi ház, amely nem csupán kiváló otthon, hanem jövedelmező befektetés is lehet.Az ingatlan földszintjén egy 58 nm-es kényelmes lakrész kapott helyet, amely két szobából, konyha-étkezőből és fürdőszobából áll. Az emeleti szinten további két lakrész található, egy 48 nm-es és egy 49 nm-es, mindkettő jól felszerelt fürdőszobával, külön wc-vel, konyhával, társalgóval és nagy hálószobával. Az emeleti lakrészek között igény szerint akár összenyitási lehetőséget is kínál az ingatlan, így ideális több generációs együttéléshez.
Főbb paraméterek:
-Szigetelt homlokzat (5 cm), födém (10 cm), műanyag szigetelt üveggel ellátott nyílászárók,
-Napelemes rendszer, aminek köszönhetően közel 0 Ft az áramszámla,
-Gázkazán radiátoros fűtéssel, villanybojlerek használati melegvízhez, hűtő-fűtő klíma minden lakrészben,
-Kamera- és riasztórendszer,
-Fedett kocsibeálló.
Az ingatlan különleges elhelyezkedésének köszönhetően ideális turisztikai célú vendéglátáshoz, hosszútávú kiadásra vagy akár saját célra. a közelben találhatók a városi élet legfontosabb csomópontjai: a Városháztér, a történelmi avasi pincesor és a kulturális élet központjai, mint a Művészetek Háza és a Miskolci Nemzeti Színház. a környék gazdag vendéglátóhelyekben, éttermekben és bárokban.
Mindemellett kiváló tömegközlekedési kapcsolatokkal is rendelkezik, biztosítva a könnyű elérhetőséget a közeli óvodákhoz, iskolákhoz, középiskolákhoz és intézményekhez. Az ingatlan per-, teher- és igénymentes, készen áll, hogy Öné legyen!
Amennyiben felkeltette érdeklődését, és szeretne egy különleges lehetőséget kihasználni Miskolc belvárosában, ne habozzon, keressen meg bizalommal. OTP Banki hátterünknek köszönhetően finanszírozási igényekben (pl. Otthon Start Program, Babaváró, Falusi csok, CSOK Plusz, Lakáshitel, Személyi kölcsön stb. ), Illetve biztosítások tekintetében is díjmentesen, soron kívüli ügyintézéssel segítem ügyfeleimet! Referenciaszám: m298832
Referencia szám: m298832 FIX 3% lakáshitelre megvehető

