Eladó új építésű ház Székesfehérvár
| Kedvencbe | Megosztás | Árfigyelő |
| FIX 3% lakáshitelre megvehető | ||
| 109 250 000 HUF | ||
Ingatlan adatai
- Eladó vagy kiadó:Eladó
- Település:Székesfehérvár
- Kategória:Ház
- Alkategória:Családi ház
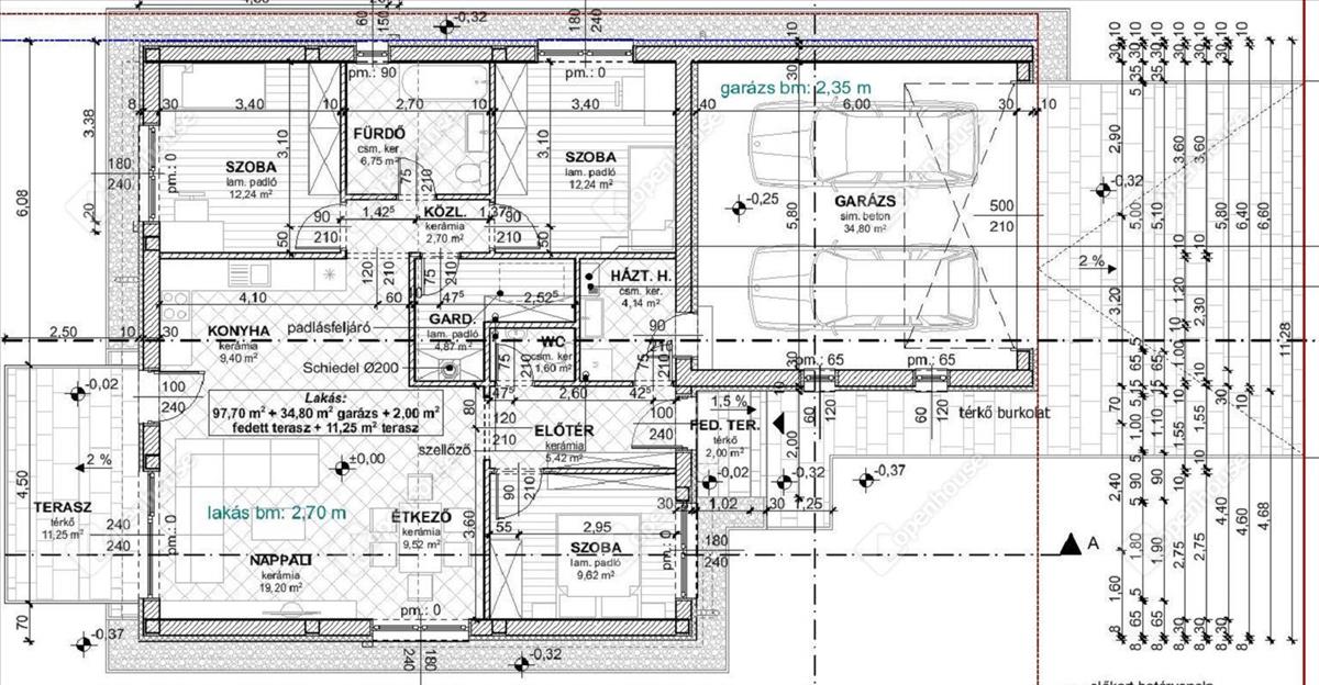
- Alapterület:115 m2
- Telekterület:800 m2
- Csere is:Nem
- Hirdető:Cég
- Élő videón megtekinthető:Nem
- Építés éve:2026
- Szobaszám:4
- Állapot:Új építésű
- Hány szintes az ingatlan:Földszintes
- Tetőtér:nincs megadva
- Komfortosság:nincs megadva
- Parkolási lehetőség:Garázsban
- Fűtés:Gáz (cirko)
- Bútorozottság:nincs megadva
- Fényviszony:Napfényes
- Tájolás:D
- Kilátás:nincs megadva
- Internet:nincs megadva
- Akadálymentesített:nincs megadva
- Energiatanúsítvány:A+
- Villany:Van
- Víz:Van
- Gáz:Van
- Csatorna:Van
- Üzenetküldés
- Hívás

Referencia szám: 169009

Hitel ajánlat
Ingatlan hirdetés leírása
Eladó önálló családi ház Székesfehérváron
Modern Otthon a Harmatosvölgy Szívében, Családi Idill és MinőségEladó egy új építésű, önálló családi ház Székesfehérvár legdinamikusabban fejlődő, kertvárosi városrészében. Ha csendre, nyugalomra és barátságos szomszédokra vágyik, ez az ingatlan tökéletes választás!
Miért érdemes ezt az otthont választania?
Gyerekbarát környék: Óvoda, iskola és babauszoda karnyújtásnyira.
Kiváló infrastruktúra: Szupermarketek és zöldterületek a közelben.
Saját ízlésére formálhatja: a burkolatok és beltéri ajtók még választhatók!
Műszaki paraméterek és felszereltség:
Alapterület: 97, 7 m² lakótér + 12 m² hangulatos terasz.
Telek: 800 m²-es, teljesen önálló telek (privát szféra garantált).
Parkolás: Tágas, 35 m²-es dupla garázs.
Szerkezet: 30-as tégla főfalak, Bramac tetőrendszer.
Fűtés: Bosch kombi gázkazán padlófűtéssel + 2kW napelem rendszer. (Felár ellenében hőszivattyú kérhető).
Elrendezés: 3 különnyíló szoba + tágas, világos amerikai konyhás nappali.
Pénzügyi segítség sorban állás nélkül:
Ingyenes, bankfüggetlen CSOK Plusz és hitelügyintézéssel segítjük az adásvételt, hogy Önnek csak a költözéssel kelljen foglalkoznia.
Az otthon érték, az ingatlan üzlet! FIX 3% lakáshitelre megvehető

