Eladó új építésű ház Fót
| Kedvencbe | Megosztás | Árfigyelő |
| FIX 3% lakáshitelre megvehető | ||
| 142 600 000 HUF | ||
Ingatlan adatai
- Eladó vagy kiadó:Eladó
- Település:Fót
- Kategória:Ház
- Alkategória:Ikerház
- Alapterület:132 m2
- Telekterület:423 m2
- Csere is:Nem
- Hirdető:Cég
- Élő videón megtekinthető:Nem
- Építés éve:2026
- Szobaszám:4
- Állapot:Új építésű
- Hány szintes az ingatlan:Földszintes
- Tetőtér:nincs megadva
- Komfortosság:nincs megadva
- Parkolási lehetőség:Garázsban
- Fűtés:Hőszivattyús
- Bútorozottság:nincs megadva
- Fényviszony:Napfényes
- Tájolás:DNY
- Kilátás:nincs megadva
- Internet:nincs megadva
- Akadálymentesített:nincs megadva
- Energiatanúsítvány:A+
- Villany:Van
- Víz:Van
- Gáz:Van
- Csatorna:Van
- Üzenetküldés
- Hívás

Kálmánné Fekete Eliza ...
Mondd meg a hirdetőnek, hogy a megveszLAK-on találtad a hirdetést.
Referencia szám: HZ058827

Hitel ajánlat
Ingatlan hirdetés leírása
Eladó ház, Fót, Eladó új építésű ház - Fót
Álomotthon Fóton – exkluzív új építésű ikerház a Csillagdombon!2026 Márciusi átadással vár rád ez a modern, energiatakarékos és családbarát otthon, Fót egyik leggyorsabban fejlődő, mégis csendes és zöld övezetében.
A 101, 9 m²-es lakótér és a 420 m² saját telek tökéletes egyensúlyt teremt a praktikum, a kényelem és a tágas élettér között. a magas műszaki tartalomnak és a gondos kivitelezésnek köszönhetően egy olyan otthonba költözhetsz, amely hosszú távon is értékálló befektetés.
A hőszivattyús fűtés-hűtés, a padlófűtés és mennyezethűtés, valamint az a+ energiaosztály garantálja az alacsony fenntartási költségeket és a jövőbiztos lakhatást.
A környék pedig pont azt nyújtja, amit egy család keres: rendezett új utcák, zöld környezet, kiváló megközelíthetőség és minden fontos szolgáltatás a közelben.
Főbb paraméterek
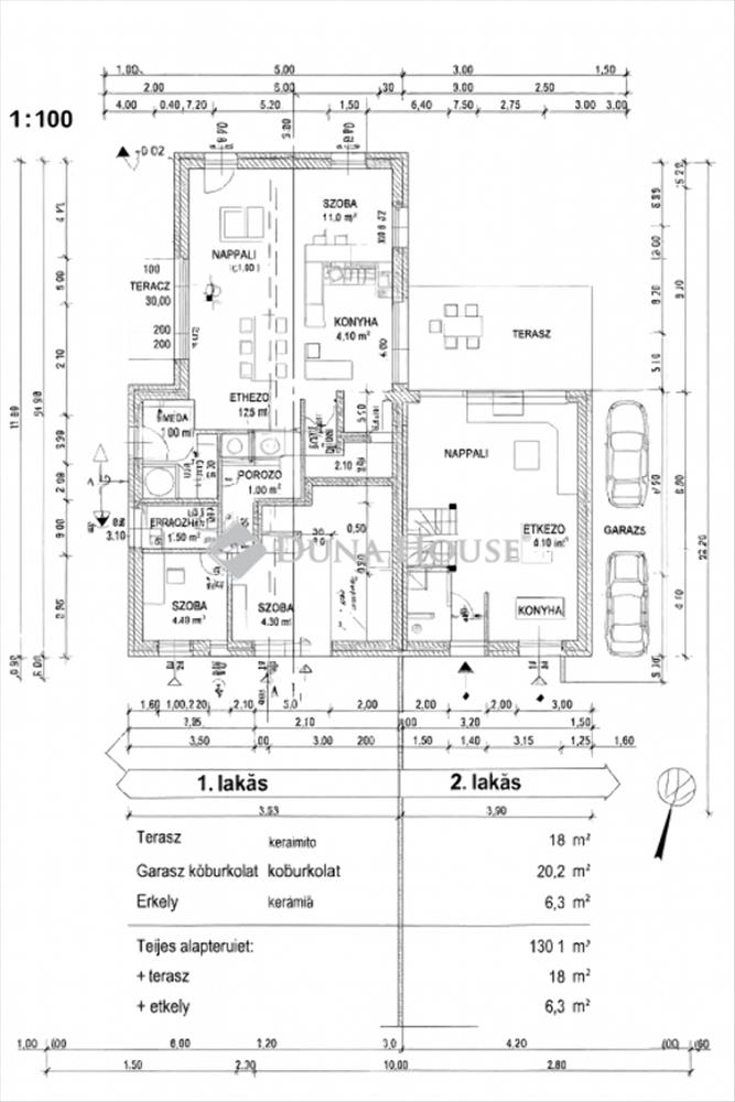
Telek: 420 m² saját használatú terület
Lakótér: 101, 9 m²
Kialakítás: nappali + 3 hálószoba
Fürdők: 2 db
Háztartási helyiség: külön
Gépkocsi-beálló: 28, 2 m²
Erkély: 6, 3 m²
Terasz: 18 m²
Műszaki tartalom
Hőszivattyús fűtés-hűtés
Padlófűtés + mennyezethűtés
A+ energiaosztály
15 cm homlokzati hőszigetelés
Modern anyaghasználat, magas minőségű kivitelezés
Lokáció – Csillagdomb, Fót
Újonnan kialakított, rendezett utcák
Csendes, zöld, családbarát környezet
Budapest 15–20 perc alatt elérhető autóval
Jó tömegközlekedés
Óvoda, iskola, boltok, bevásárlási lehetőségek a közelben
Miért érdemes megnézni?
Ez az ingatlan a modern kényelem, a zöldövezeti nyugalom és az energiatakarékos megoldások tökéletes kombinációja.
Új építésű, magas minőséget képvisel, hosszú távon is értékálló, és minden aktuális állami támogatás és hitel igénybe vehető rá.
Érdeklődés:
Az ár, alaprajz és a teljes műszaki dokumentáció kérésre azonnal küldhető.
Hívjon bizalommal – díjmentes, magas szintű hiteltanácsadással is segítem a vásárlást! FIX 3% lakáshitelre megvehető

