- >>
- eladó ingatlanok
- >>
- eladó ház
- >>
- eladó ház Fót
- >>
Eladó új építésű ház - Fót
| | |||
| Kedvencnek jelölöm | Elküldöm emailben | Megosztás | Szavazás |
| FIX 3% lakáshitelre megvehető | |||
| 115 000 000 HUF | |||
Ingatlan adatai
- Eladó vagy kiadó:Eladó
- Település:Fót
- Kategória:Ház
- Alkategória:Ikerház
- Alapterület:112 m2
- Telekterület:300 m2
- Csere is:Nem
- Hirdető:Cég
- Élő videón megtekinthető:Nem
- Építés éve:2022
- Szobaszám:4
- Állapot:Új építésű
- Hány szintes az ingatlan:nincs megadva
- Tetőtér:nincs megadva
- Komfortosság:nincs megadva
- Pince:Nincs
- Parkolási lehetőség:Beállóban
- Fűtés:nincs megadva
- Bútorozottság:nincs megadva
- Fényviszony:nincs megadva
- Tájolás:nincs megadva
- Kilátás:nincs megadva
- Internet:nincs megadva
- Akadálymentesített:nincs megadva
- Energiatanúsítvány:nincs megadva
- Villany:Van
- Víz:Van
- Gáz:nincs megadva
- Csatorna:Van
- Üzenetküldés
- Hívás


Hitel ajánlat
Ingatlan hirdetés leírása
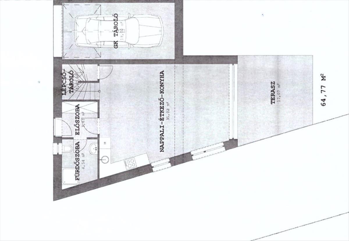
Fót kisalagi részén 110 nm-es ÚJ ÉPÍTÉSŰ ikerház eladó. A két...
Fót kisalagi részén 110 nm-es új építésű ikerház eladó.A két szintes házban amerikai konyhás nappali+3 hálószoba, két fürdőszoba, garázs kerül kialakításra. a nappaliból egy 15 nm-es terasz nyílik.
Parkolás saját garázsban.
A fűtésről hőszivattyú gondoskodik padlófűtéssel. Nyílászárók műanyag, 3 rétegű hőszigetelt üvegezésűek. Külső szigetelés 10 cm-es grafitos.
Szaniterek, burkolatok, belső ajtók igény szerint választhatók. Jó környék, új játszótér a közvetlen közelben.
Referenciákkal rendelkező, megbízható kivitelezőtől.
Megtekinthető telefonos időpont-egyeztetés alapján: Czirják Mihály 20/220-9995 FIX 3% lakáshitelre megvehető

