Eladó új építésű ház Vecsés
| Kedvencbe | Megosztás | Árfigyelő |
| FIX 3% lakáshitelre megvehető | ||
| 129 900 000 HUF | ||
Ingatlan adatai
- Eladó vagy kiadó:Eladó
- Település:Vecsés
- Kategória:Ház
- Alkategória:Ikerház
- Alapterület:118 m2
- Telekterület:360 m2
- Csere is:Nem
- Hirdető:Cég
- Élő videón megtekinthető:Nem
- Építés éve:2026
- Szobaszám:5
- Állapot:Új építésű
- Hány szintes az ingatlan:Földszintes
- Tetőtér:nincs megadva
- Komfortosság:nincs megadva
- Parkolási lehetőség:nincs megadva
- Fűtés:Hőszivattyús
- Bútorozottság:nincs megadva
- Fényviszony:Napfényes
- Tájolás:DNY
- Kilátás:nincs megadva
- Internet:nincs megadva
- Akadálymentesített:nincs megadva
- Energiatanúsítvány:nincs megadva
- Villany:nincs megadva
- Víz:nincs megadva
- Gáz:nincs megadva
- Csatorna:nincs megadva
- Üzenetküldés
- Hívás

Fekete Zsófia Anna
Mondd meg a hirdetőnek, hogy a megveszLAK-on találtad a hirdetést.
Referencia szám: HZ010003

Hitel ajánlat
Ingatlan hirdetés leírása
Eladó ház, Vecsés, Eladó új építésű ház - Vecsés
Új építésű, modern ikerházfél eladó Vecsés csendes utcájábanVecsés nyugodt, családbarát részén, csendes mellékutcában kínálok megvételre egy új építésű, modern ikerház egyik felét, amely 2026 második felében kerül átadásra.
Az ingatlan önálló telekrésszel, átgondolt elrendezéssel és korszerű, energiatakarékos műszaki tartalommal készül, ideális választás családok számára.
Főbb adatok
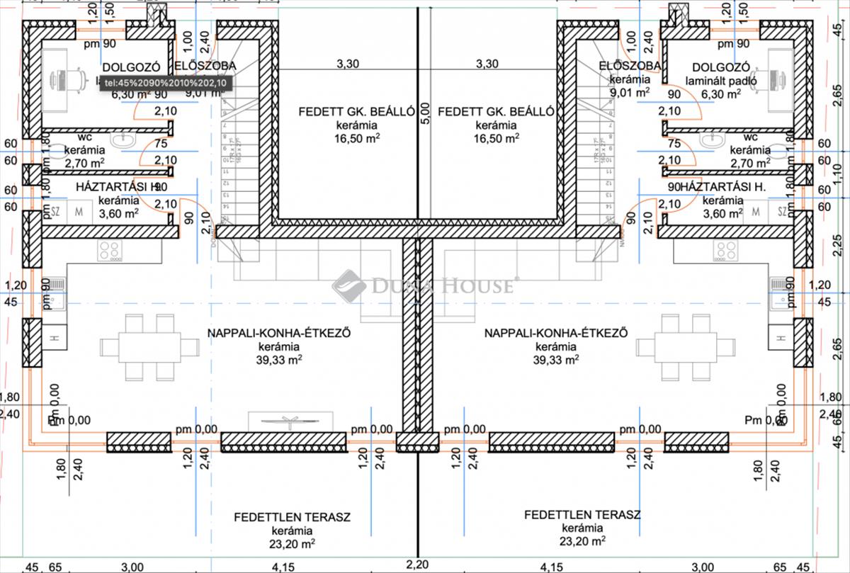
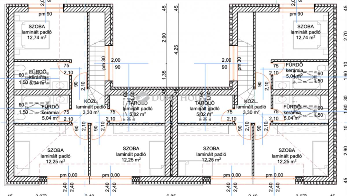
Lakótér: 118 m²
Terasz: 23 m²
Telek: 360 m²
Épülettípus: ikerház
Várható átadás: 2026. II. Félév
Elrendezés
Az ikerház praktikus, jól élhető belső kialakítással készül:
- tágas, világos amerikai konyhás nappaliétkező
- több hálószoba
- külön dolgozószoba
- fürdőszoba + külön WC
- háztartási helyiség / tároló
- közvetlen kijárat a teraszon keresztül a kertbe
A terek elrendezése ideális mindennapi családi élethez, otthoni munkavégzéshez és pihenéshez egyaránt.
Műszaki tartalom, felszereltség
Az ingatlan korszerű, költséghatékony és energiatakarékos megoldásokkal épül:
15 cm vastag külső hőszigetelés
30 cm vázkerámia falazat
3 rétegű, hőszigetelt műanyag nyílászárók
hőszivattyús fűtési rendszer
padlófűtés minden helyiségben
split klímás hűtési lehetőség
korszerű elektromos hálózat
megújuló energia arány hőszivattyúval biztosítva
Választható belső elemek:
* Hideg- és melegburkolatok 8. 000 Ft/m² árig
* Belső ajtók 110. 000 Ft/db árig
Kültér, parkolás
saját kertkapcsolat
nagy terasz
fedett gépkocsi-beálló az ingatlanhoz tartozik
Elhelyezkedés
Az ingatlan Vecsés belterületén, csendes lakóövezetben található, rendezett környezetben.
A település infrastruktúrája kiváló: üzletek, iskola, óvoda, egészségügyi ellátás és tömegközlekedés könnyen elérhető, Budapest gyorsan megközelíthető.
Összegzés
Ez az új építésű ikerházfél ideális választás azok számára, akik:
modern, energiatakarékos otthont keresnek
fontos számukra a nyugodt környezet
kerttel és terasszal rendelkező házra vágynak
hosszú távon is értékálló ingatlant szeretnének
Amennyiben hirdetésem felkeltette érdeklődését, keressen bizalommal. Hitelügyintézésben is segítünk.
Referencia szám: hz010003 FIX 3% lakáshitelre megvehető

