Eladó iroda - Nyíregyháza
- INGYENES HIRDETÉS FELADÁS
Ingatlan adatai
- Feladva:72 napja a megveszLAK-on
- Eladó vagy kiadó:Eladó
- Település:Nyíregyháza
- Kategória:Iroda
- Alkategória:Irodaházban
- Alapterület:93 m2
- Csere is:Nem
- Hirdető:Cég
- Élő videón megtekinthető:Nem
- Állapot:nincs megadva
- Hány szintes az ingatlan:nincs megadva
- Hányadik emeleti:Földszint
- Parkolási lehetőség:nincs megadva
- Őrzött parkoló:nincs megadva
- Bútorozottság:nincs megadva
- Fényviszony:nincs megadva
- Tájolás:nincs megadva
- Kilátás:nincs megadva
- Internet:nincs megadva
- Klíma:nincs megadva
- Akadálymentesített:nincs megadva
- Energiatanúsítvány:nincs megadva
- Kapcsolatfelvétel

Gáva Aliz
+36-(30)-308-9895
Mondd meg a hirdetőnek, hogy a megveszLAK-on találtad a hirdetést.
Hitel ajánlatok
Ingatlan hirdetés leírása
Nyíregyházán, Belvárosban, Dózsa György utca közelében 1. emel...
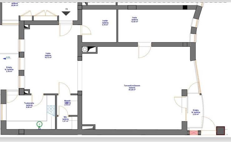
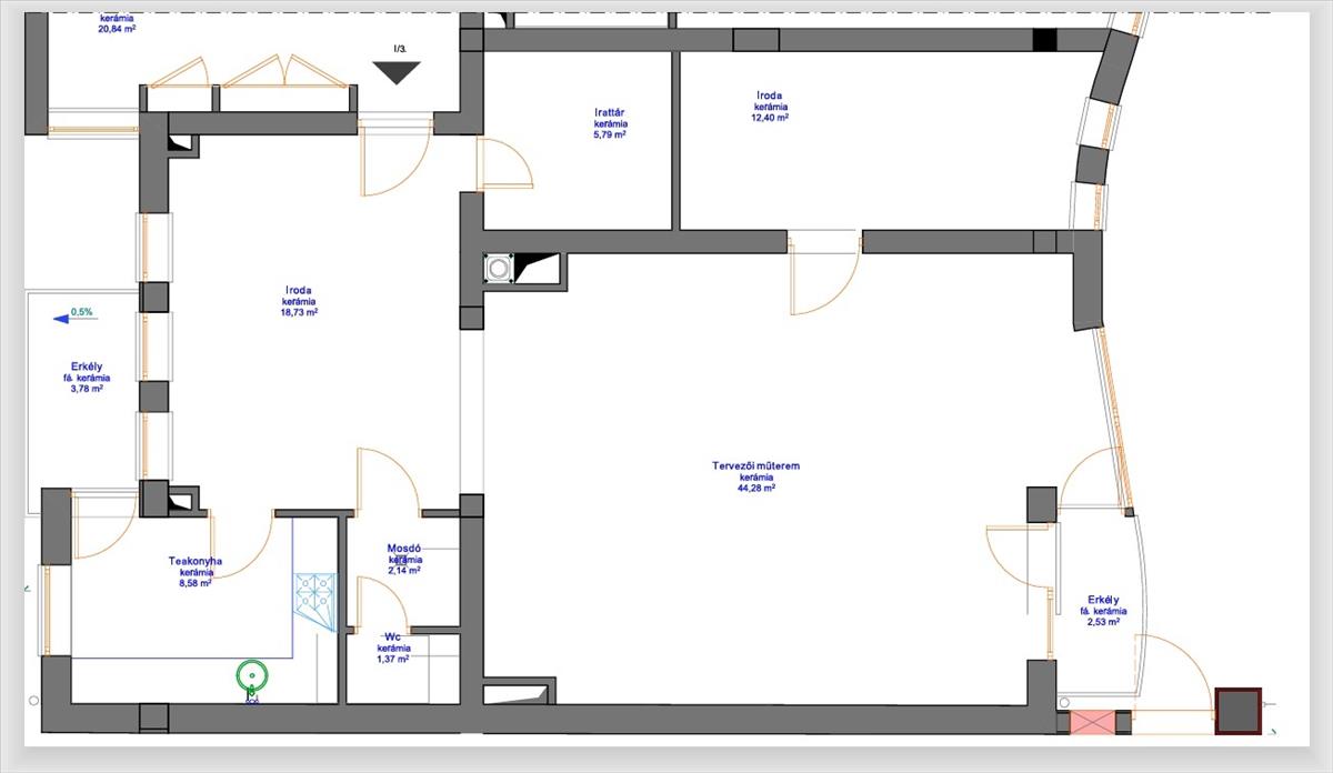
Nyíregyházán, Dózsa György utca közelében tégla építésű társasház 1. emeletén kínálunk megvételre egy 93 m²-es irodát, kiváló elhelyezkedéssel.
Az ingatlan főbb jellemzői:
3 különálló irodahelyiség
irattár
teakonyha
mosdó
2 erkély
Műszaki adottságok:
Gáz-cirkó fűtés, egyedileg szabályozható, költséghatékony működéssel
3 db hűtő-fűtő klíma, amely egész évben kellemes hőmérsékletet biztosít
Műanyag nyílászárók, jó hő- és hangszigeteléssel
Járólap és parketta burkolatok
Az ingatlan tehermentes, így a vásárlás és az ügyintézés gyorsan lebonyolítható.
Parkolás:
A társasház zárt udvarában 2 saját autóbeálló áll rendelkezésre.
Berendezéssel együtt is megvásárolható, melynek vételára 95 millió Ft.
A berendezés tartalmazza:
8 db számítógép
tervnyomtató
íróasztalok
beépített szekrények
kiépített informatikai rendszer
saját szerver
Energetikai besorolása: BC
Amennyiben felkeltette érdeklődését várom hívását! Az ingatlan azonosítója: 69969Érdeklődni: +36303089895 Hitel.hu - Hasonlítsa össze a bankok lakáshitel ajánlatait
Tetszett ez az eladó Nyíregyházai iroda? Hívd fel a hirdetőt most, és tudj meg mindent erről az eladó irodáról! Ha gondolod nézelődj tovább az eladó iroda Nyíregyháza oldal hirdetései között.
Az eladó irodák menüpontban további hirdetések között is böngészhetsz. Ha van kedved, akkor böngészhetsz a Gáva Aliz összes hirdetése között, vagy akár a/az Favorit Ingatlanközvetítő Iroda összes hirdetése között is.

