Eladó átlagos állapotú lakás - Nyíregyháza
- INGYENES HIRDETÉS FELADÁS
Ingatlan adatai
- Eladó vagy kiadó:Eladó
- Település:Nyíregyháza
- Kategória:Lakás
- Alkategória:Egyéb
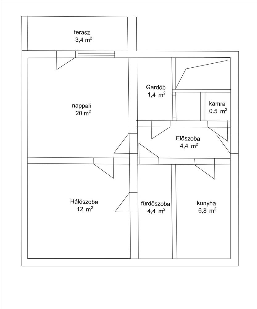
- Alapterület:55 m2
- Csere is:Nem
- Hirdető:Cég
- Élő videón megtekinthető:Nem
- Szobaszám:2
- Állapot:Átlagos állapotú
- Hány szintes az ingatlan:nincs megadva
- Komfortosság:nincs megadva
- Hányadik emeleti:3
- Erkély:nincs megadva
- Lift:nincs megadva
- Parkolási lehetőség:nincs megadva
- Fűtés:Gáz (konvektor)
- Bútorozottság:nincs megadva
- Fényviszony:nincs megadva
- Tájolás:nincs megadva
- Kilátás:nincs megadva
- Internet:nincs megadva
- Klíma:nincs megadva
- Akadálymentesített:nincs megadva
- Energiatanúsítvány:nincs megadva
- Villany:nincs megadva
- Víz:nincs megadva
- Gáz:nincs megadva
- Csatorna:nincs megadva
- Kapcsolatfelvétel

Kocsis Éva
+36-(20)-439-4852
Mondd meg a hirdetőnek, hogy a megveszLAK-on találtad a hirdetést.
Hitel ajánlatok
Ingatlan hirdetés leírása
Nyíregyháza, Deák Ferenc úton, 2 szobás, erkélyes lakás KEDVEZ...
Nyíregyháza, Belváros közelében, 55 nm -es, 2 szobás lakás, szigetelt, téglaépítésű társasház 3. emeletén eladó!
Főbb paraméterek:
- műanyag nyílászáró
- beépített konyhabútor
- spájz
- 2 külön nyíló szoba (egybe is nyitható)
- gardrób
- burkolata: járólap és lamináltpadló
- gázkonvektor fűtés
- k-ny fekvés
- erkély
- energetikai besorolás: CC.
Az ingatlanhoz saját tároló tartozik. Saját lakhatásra és befektetési célra is jó lehetőség. Hívjon, ha szeretné megtekinteni!
Az ingatlan azonosítója: 69588Érdeklődni: +36204394852 FIX 3% lakáshitelre megvehető
Tetszett ez az eladó Nyíregyházai átlagos állapotú 2 szobás lakás? Hívd fel a hirdetőt most, és tudj meg mindent erről az eladó lakásról! Ha gondolod nézelődj tovább az eladó lakás Nyíregyháza oldal hirdetései között. Ennek az eladó lakásnak az ára 37900000 Ft és mivel az alapterülete 55 négyzetméter, ezért az átlagos négyzetméterára 689091 HUF/m2.
Az eladó lakások menüpontban további hirdetések között is böngészhetsz. Ha van kedved, akkor böngészhetsz a Kocsis Éva összes hirdetése között, vagy akár a/az Favorit Ingatlanközvetítő Iroda összes hirdetése között is.

