Eladó újszerű állapotú lakás Nyíregyháza
| Kedvencbe | Megosztás | Árfigyelő |
| FIX 3% lakáshitelre megvehető | ||
| 37 800 000 HUF | ||
Ingatlan adatai
- Eladó vagy kiadó:Eladó
- Település:Nyíregyháza
- Kategória:Lakás
- Alkategória:Egyéb
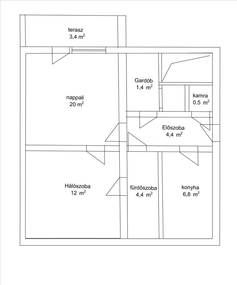
- Alapterület:55 m2
- Csere is:Nem
- Hirdető:Cég
- Élő videón megtekinthető:Nem
- Szobaszám:2
- Állapot:Újszerű, kitűnő
- Hány szintes az ingatlan:nincs megadva
- Komfortosság:nincs megadva
- Hányadik emeleti:Földszint
- Parkolási lehetőség:nincs megadva
- Fűtés:Gáz (konvektor)
- Bútorozottság:nincs megadva
- Fényviszony:nincs megadva
- Tájolás:nincs megadva
- Kilátás:nincs megadva
- Internet:nincs megadva
- Akadálymentesített:nincs megadva
- Energiatanúsítvány:nincs megadva
- Villany:nincs megadva
- Víz:nincs megadva
- Gáz:nincs megadva
- Csatorna:nincs megadva
- Üzenetküldés
- Hívás


Hitel ajánlat
Ingatlan hirdetés leírása
NYÍREGYHÁZÁN TÉGLAÉPÍTÉSŰ LAKÁS ELADÓ
Nyíregyházán eladó 2 szobás, erkélyes, téglaépítésű lakás!Nyíregyháza kedvelt részén eladó egy 55 m²-es, tehermentes, téglaépítésű társasházi lakás. Az ingatlan két külön nyíló szobával rendelkezik, ideális választás lehet fiatal pároknak, kisebb családnak vagy befektetésnek is.
A lakás jó / átlagos állapotú, a szobákban parketta, a többi helyiségben járólap burkolat található. a fűtésről gázkonvektor gondoskodik, a műanyag nyílászárók jó hő- és hangszigetelést biztosítanak.
Az ingatlan egyik nagy előnye a tágas erkély, amely kellemes pihenőhelyet kínál. a lakáshoz saját tároló is tartozik, ami tovább növeli a kényelmet.
Főbb jellemzők:
55 m² alapterület
2 szoba
téglaépítésű társasház
gázkonvektoros fűtés
műanyag nyílászárók
nagy erkély
saját tároló
tehermentes
Az ingatlan azonnal birtokba vehető, rendezett jogi háttérrel.
Amennyiben felkeltette érdeklődését, keressen bizalommal további információért vagy megtekintésért! Az ingatlan azonosítója: 99609Érdeklődni: +3620/965-8200 FIX 3% lakáshitelre megvehető

