- >>
- eladó ingatlanok
- >>
- eladó lakás
- >>
- eladó lakás Nyíregyháza
- >>
Eladó új építésű lakás - Nyíregyháza
| | |||
| Kedvencnek jelölöm | Elküldöm emailben | Megosztás | Szavazás |
| Kedvezményes lakáshitel ajánlatok | |||
| 45 200 000 HUF | |||
Ingatlan adatai
- Eladó vagy kiadó:Eladó
- Település:Nyíregyháza
- Kategória:Lakás
- Alkategória:Egyéb
- Alapterület:29 m2
- Csere is:Nem
- Hirdető:Cég
- Élő videón megtekinthető:Nem
- Szobaszám:1
- Állapot:Új építésű
- Hány szintes az ingatlan:nincs megadva
- Komfortosság:nincs megadva
- Hányadik emeleti:2
- Parkolási lehetőség:nincs megadva
- Fűtés:Gáz (cirko)
- Bútorozottság:nincs megadva
- Fényviszony:nincs megadva
- Tájolás:nincs megadva
- Kilátás:nincs megadva
- Internet:nincs megadva
- Akadálymentesített:nincs megadva
- Energiatanúsítvány:nincs megadva
- Villany:nincs megadva
- Víz:nincs megadva
- Gáz:nincs megadva
- Csatorna:nincs megadva
- Üzenetküldés
- Hívás


Ingatlan hirdetés leírása
NYÍREGYHÁZÁN, A BELVÁROS KÖZELÉBEN ÚJ ÉPÍTÉSŰ TÁRSASHÁZBAN 1 S...
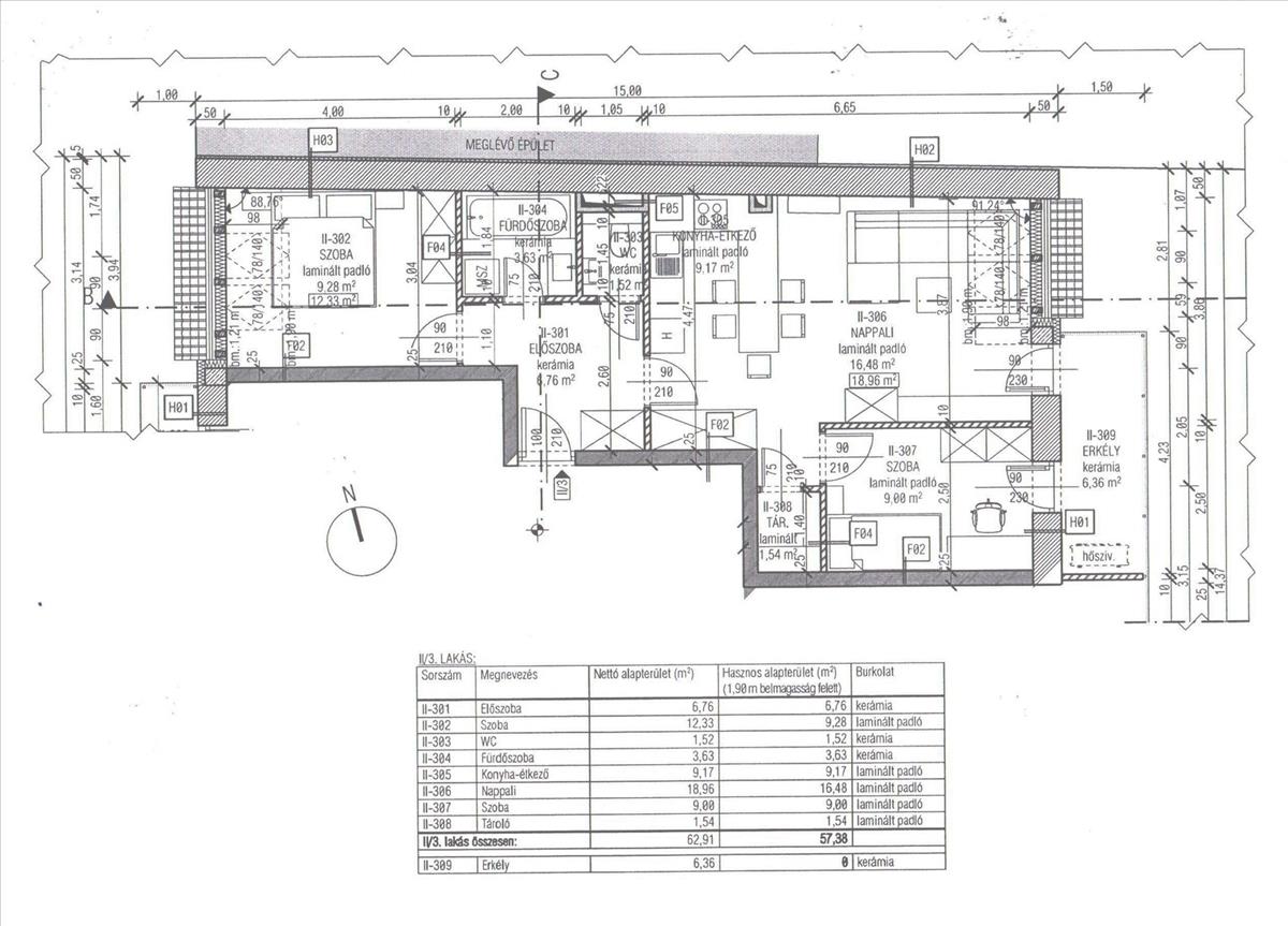
Nyíregyháza belvárosának közelében eladó egy új építésű társasházban található, 2. emeleti 29, 43 nm-es 1 szoba+ amerikai konyhás, gardróbszobás lakás, 6, 55-nm es erkéllyel.A lakás 7 lakásos szigetelt társasházban található, műanyag nyílászárókkal felszerelt, fűtését egyedi gázfűtés biztosítja padlófűtéssel. a burkolatok és a nyílászárók készültségi foktól függően választhatók. Igény szerint az ingatlanhoz garázs vásárlási lehetőség is biztosított.
További lakások:
Fóldszinten 44, 92 nm-es 1 szoba+ amerikai konyhás nappalis.
1. emeleti 63, 12 nm-es 2 szoba+ amerikai konyhás nappalis, 8, 79-nm-es erkéllyel.
1. emeleti 29, 43 nm-es 1 szoba+ amerikai konyhás lakás, gardróbszobával.
1. emeleti 62, 91 nm-es 2 szoba+ amerikai konyhás nappalis, 4, 05-nm-es erkéllyel.
2. emeleti 60, 15 nm-es 2 szoba+ amerikai konyhás nappalis, 8, 79-nm-es erkéllyel.
2. emeleti 62, 91 nm-es 2 szoba+ amerikai konyhás nappalis, 6, 36-nm-es erkéllyel, tárolóval.
Bármilyen kérdése van az ingatlannal kapcsolatban, annak hitelfinanszírozásáról, vagy ha személyesen megtekintené, keressen bizalommal!
Az ingatlan azonosítója: 68162Érdeklődni: 06302669818 Hitel.hu - Hasonlítsa össze a bankok lakáshitel ajánlatait


