Eladó új építésű lakás - Nyíregyháza
- INGYENES HIRDETÉS FELADÁS
Ingatlan adatai
- Eladó vagy kiadó:Eladó
- Település:Nyíregyháza
- Kategória:Lakás
- Alkategória:Egyéb
- Alapterület:72 m2
- Csere is:Nem
- Hirdető:Cég
- Élő videón megtekinthető:Nem
- Szobaszám:2
- Állapot:Új építésű
- Hány szintes az ingatlan:nincs megadva
- Komfortosság:nincs megadva
- Hányadik emeleti:nincs megadva
- Erkély:nincs megadva
- Lift:nincs megadva
- Parkolási lehetőség:nincs megadva
- Fűtés:nincs megadva
- Bútorozottság:nincs megadva
- Fényviszony:nincs megadva
- Tájolás:nincs megadva
- Kilátás:nincs megadva
- Internet:nincs megadva
- Klíma:Van
- Akadálymentesített:nincs megadva
- Energiatanúsítvány:nincs megadva
- Villany:nincs megadva
- Víz:nincs megadva
- Gáz:nincs megadva
- Csatorna:nincs megadva
- Kapcsolatfelvétel

Balla Anett
+36303397954
Mondd meg a hirdetőnek, hogy a megveszLAK-on találtad a hirdetést.
Hitel ajánlatok
Ingatlan hirdetés leírása
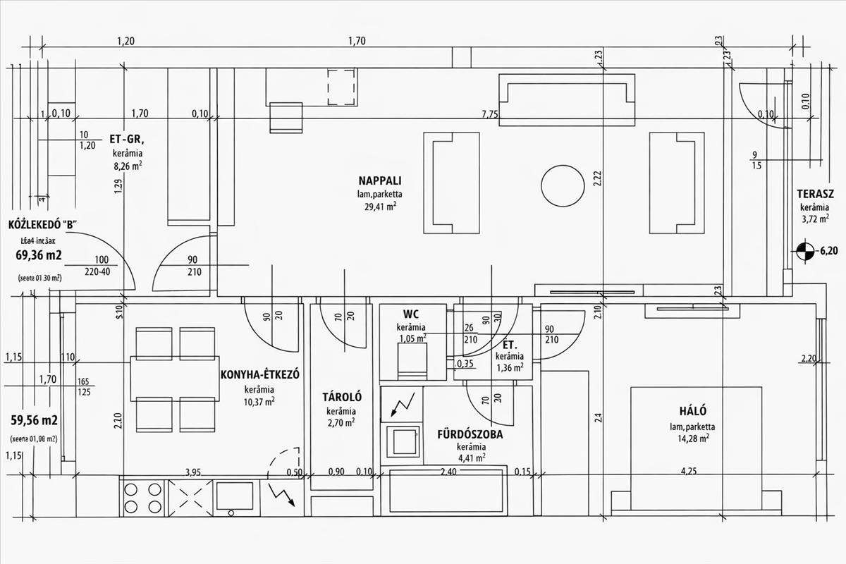
Fedezze fel ezt a gyönyörű, új építésű, 2. emeleti (lift a tár...
Fedezze fel ezt a gyönyörű, új építésű, 2. emeleti (lift a társas házban! ) Téglalakást Nyíregyháza belvárosában, amely tökéletes választás lehet mindazok számára, akik a modern életstílust keresik.
Az ingatlan alapterülete 72 m2 (69, 86 m2 +3, 72 m2 terasz), így elegendő teret biztosít a kényelmes mindennapokhoz. a két szobás elrendezés lehetőséget nyújt a tágas, világos élettér kialakítására, ahol a családi összejövetelek és a baráti programok egyaránt kellemesen telhetnek.
A hőszivattyús fűtés és a saját split klíma gondoskodik arról, hogy a lakásban mindig ideális hőmérséklet uralkodjon, legyen szó akár a nyári meleg napokról, akár a téli hidegről. Az összkomfortos állapotú ingatlan energetikai tanúsítványa a+, ami nemcsak a korszerű kialakítást tükrözi, hanem a fenntarthatóságra és a költséghatékonyságra is nagy hangsúlyt fektet.
Az irányár 78 899 000 Ft, ami figyelembe véve a lokációt és a minőséget, kiváló lehetőséget kínál a leendő tulajdonos számára. Ne hagyja ki ezt a remek ajánlatot, és lépjen kapcsolatba velünk még ma!
• 26 Lakásos társasház
• 2 szintes teremgarázs, összesen 26 parkolóhellyel (külön megvásárolhatók)Alagsori és földszinti teremgarázsban még meglévő 16-25, 5 m2 garázsok 9, 6 millió Ft+ ÁFA-tól 12, 48 millió Ft+ ÁFA-ig.
• A+ energetikai besorolás, hőszivattyús fűtés-hűtés
• Magas minőségű kivitelezés, prémium anyagokkal
• Lift a teljes kényelemért
• Tárolók, iroda, elegáns előcsarnok
Balla Anett
Ingatlan&Bankbár FIX 3% lakáshitelre megvehető
Tetszett ez az eladó Nyíregyházai új építésű 2 szobás lakás? Hívd fel a hirdetőt most, és tudj meg mindent erről az eladó lakásról! Ha gondolod nézelődj tovább az eladó lakás Nyíregyháza oldal hirdetései között. Ennek az eladó lakásnak az ára 78899000 Ft és mivel az alapterülete 72 négyzetméter, ezért az átlagos négyzetméterára 1095819 HUF/m2.
Az eladó lakások menüpontban további hirdetések között is böngészhetsz. Ha van kedved, akkor böngészhetsz a Balla Anett összes hirdetése között.

