Eladó újszerű állapotú lakás Nyíregyháza
| Kedvencbe | Megosztás | Árfigyelő |
| FIX 3% lakáshitelre megvehető | ||
| 37 800 000 HUF | ||
Ingatlan adatai
- Eladó vagy kiadó:Eladó
- Település:Nyíregyháza
- Kategória:Lakás
- Alkategória:Egyéb
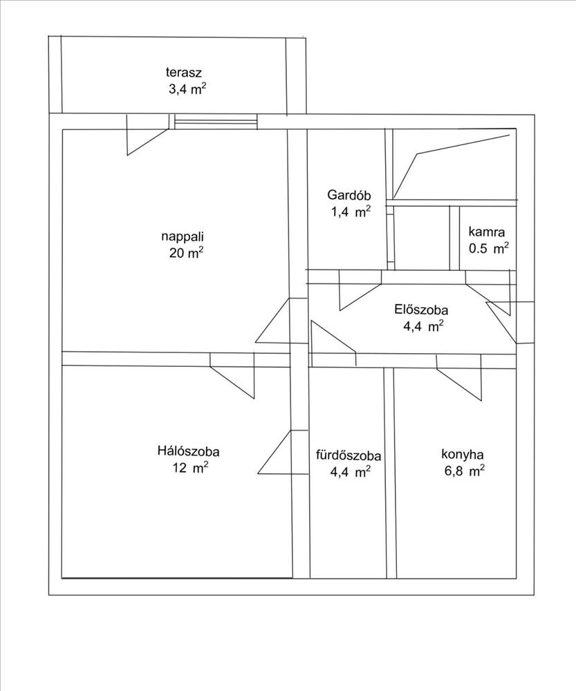
- Alapterület:55 m2
- Csere is:Nem
- Hirdető:Cég
- Élő videón megtekinthető:Nem
- Szobaszám:2
- Állapot:Újszerű, kitűnő
- Hány szintes az ingatlan:nincs megadva
- Komfortosság:nincs megadva
- Hányadik emeleti:3
- Parkolási lehetőség:nincs megadva
- Fűtés:Gáz (konvektor)
- Bútorozottság:nincs megadva
- Fényviszony:nincs megadva
- Tájolás:nincs megadva
- Kilátás:nincs megadva
- Internet:nincs megadva
- Akadálymentesített:nincs megadva
- Energiatanúsítvány:nincs megadva
- Villany:nincs megadva
- Víz:nincs megadva
- Gáz:nincs megadva
- Csatorna:nincs megadva
- Üzenetküldés
- Hívás


Hitel ajánlat
Ingatlan hirdetés leírása
VÍZTORONY KÖZELÉBEN 55 NM-ES 2 SZOBÁS SZIGETELT LAKÁS
A Víztorony közelében, rendezett környezetben eladó egy 55 m²-es, 2 szobás, erkélyes lakás. Az ingatlan egy négyemeletes, külsőleg szigetelt, téglaépítésű társasház 3. emeletén található.A lakás burkolatai járólap és parketta, nyílászárói műanyagok, fűtése gázkonvektoros. Praktikus elrendezésű, az erkély mellett saját tároló is tartozik hozzá.
Az ingatlan átlagos állapotú, tehermentes, és azonnal költözhető, így kiváló választás lehet saját célra vagy befektetésnek egyaránt.
Főbb jellemzők:
55 m²
2 szoba
erkély
saját tároló
műanyag nyílászárók
gázkonvektoros fűtés
emelet
szigetelt tégla társasház
azonnal birtokba vehető, tehermentes
Irányár: 37, 8 M Ft
Amennyiben szeretné megtekinteni az ingatlant, forduljon hozzám bizalommal! Tel. : 20/9 268-433Az ingatlan azonosítója: 99604Érdeklődni: +36209268433 FIX 3% lakáshitelre megvehető

