Eladó átlagos állapotú panel lakás - Nyíregyháza
- INGYENES HIRDETÉS FELADÁS
Ingatlan adatai
- Feladva:45 napja a megveszLAK-on
- Eladó vagy kiadó:Eladó
- Település:Nyíregyháza
- Kategória:Lakás
- Alkategória:Panel
- Alapterület:47 m2
- Csere is:Nem
- Hirdető:Cég
- Élő videón megtekinthető:Nem
- Szobaszám:1 + 1 fél
- Állapot:Átlagos állapotú
- Hány szintes az ingatlan:9 szintes
- Komfortosság:nincs megadva
- Hányadik emeleti:Földszint
- Erkély:nincs megadva
- Lift:nincs megadva
- Parkolási lehetőség:Utcán
- Fűtés:Távfűtés egyedi mérővel
- Bútorozottság:nincs megadva
- Fényviszony:nincs megadva
- Tájolás:DK
- Kilátás:nincs megadva
- Internet:nincs megadva
- Klíma:nincs megadva
- Akadálymentesített:nincs megadva
- Energiatanúsítvány:nincs megadva
- Villany:Van
- Víz:Van
- Gáz:Van
- Csatorna:Van
- Kapcsolatfelvétel

Balogh István
+36-(30)-990-6178
Mondd meg a hirdetőnek, hogy a megveszLAK-on találtad a hirdetést.
Hitel ajánlatok
Ingatlan hirdetés leírása
Nyíregyházán a Vasvári P. utcán kínálok megvételre egy lakást ...
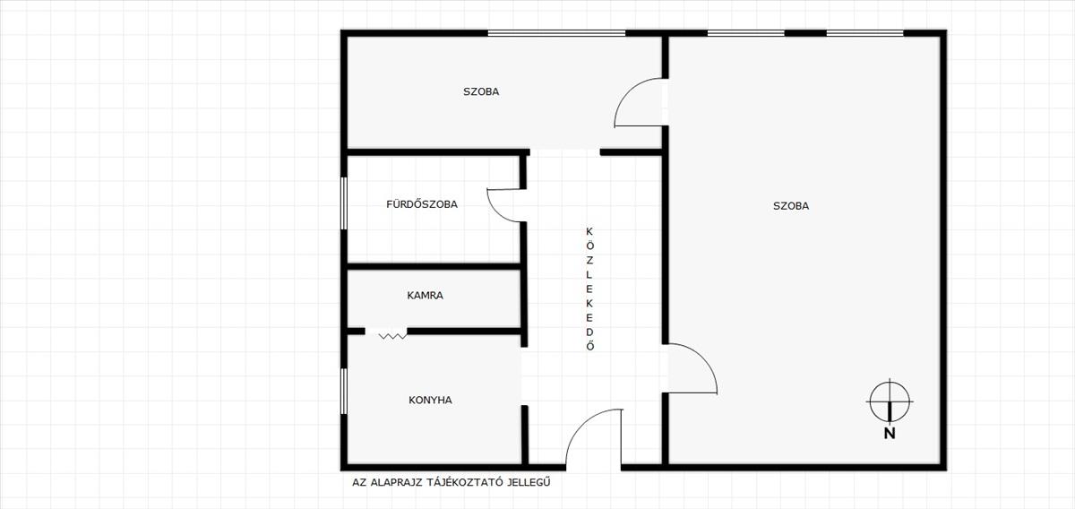
Nyíregyházán a Vasvári p. Utcán kínálok megvételre egy lakást a következő paraméterekkel:
- 47 m2 nettó alapterület
- FÖLDSZINTI
- 2 szobás
- mért távhős fűtéstechnika
- szigetelt panel falazat
A dél-keleti tájolású 9 emeletes lakáshoz közös tároló tartozik.
Buszmegálló és bolt 150 m-re, gyógyszertár 200 m-re található.
Bővebb tartalomért és bank független hiteltanácsadásért keressen bizalommal! FIX 3% lakáshitelre megvehető
Tetszett ez az eladó Nyíregyházai átlagos állapotú 1 egész és 1 fél szobás panel lakás? Hívd fel a hirdetőt most, és tudj meg mindent erről az eladó panel lakásról! Ha gondolod nézelődj tovább az eladó lakás Nyíregyháza oldal hirdetései között. Ennek az eladó lakásnak az ára 45000000 Ft és mivel az alapterülete 47 négyzetméter, ezért az átlagos négyzetméterára 957447 HUF/m2.
Az eladó lakások menüpontban további hirdetések között is böngészhetsz. Ha van kedved, akkor böngészhetsz a Balogh István összes hirdetése között, vagy akár a/az Elements Group összes hirdetése között is.

