Eladó jó állapotú lakás Budapest XIII. kerület
| Kedvencbe | Megosztás | Árfigyelő |
| FIX 3% lakáshitelre megvehető | ||
| 79 900 000 HUF | ||
Ingatlan adatai
- Eladó vagy kiadó:Eladó
- Település:Budapest XIII. kerület
- Kategória:Lakás
- Alkategória:Tégla
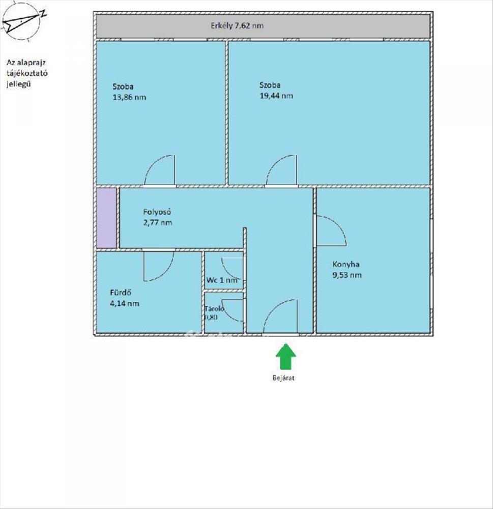
- Alapterület:60 m2
- Csere is:Nem
- Hirdető:Cég
- Élő videón megtekinthető:Nem
- Szobaszám:2
- Állapot:Jó állapotú
- Hány szintes az ingatlan:Földszintes
- Komfortosság:nincs megadva
- Hányadik emeleti:2
- Erkély:Van
- Lift:Nincs
- Parkolási lehetőség:Udvaron
- Fűtés:Gáz (cirko)
- Bútorozottság:nincs megadva
- Fényviszony:Napfényes
- Tájolás:nincs megadva
- Kilátás:nincs megadva
- Internet:nincs megadva
- Akadálymentesített:nincs megadva
- Energiatanúsítvány:D
- Villany:Van
- Víz:Van
- Gáz:nincs megadva
- Csatorna:Van
- Közös költség:25 000 Ft
- Üzenetküldés
- Hívás

Referencia szám: M317680

Hitel ajánlat
Ingatlan hirdetés leírása
Eladó Lakás, Budapest 13. ker.
Eladó XIII. kerületi lakás - nagy erkély, zárt lakópark, PARKOLÓ! ! !Ha már unod a kompromisszumokat és szeretnél egy zárt, biztonságos lakóparkban élni, rád vár ez a 60 nm-es világos, frissen festett, azonnal költözhető lakás.
Gyalog és autóval is kényelmes a bejutás, a bejáratot elektromos kapu őrzi.
Miért fogod imádni?
- 60 Nm jelenleg két szobás, de könnyes három szobássá alakítható
- Óriási erkély- reggeli kávé, baráti fröccsözés
- Vadiúj sarokkád- hogy a fürdőszoba wellness legyen
- Műanyag nyílászárók, nagy ablakok- jó hőszigetelés
- Eredeti fa parketta, frissen felújítva - karakter és elegancia egyben
- 2019-ben cserélt kondenzációs gázkazán - új, modern és takarékos
- Zárt saját tároló - bicikli, bőrönd, karácsonyi díszek
- Felszíni kocsibeálló - nem kell többé parkolóhelyet vadászni, és igen, benne van az ÁRBAN! ! ! !
- Tehermentes, 1/1 tulajdon, üres, azonnal költözhető
Várom hívását a hét minden napján 9-20 h között, jöjjön és nézzük meg együtt a leendő otthonát.
Ügyfeleink részére teljes banki és jogi háttérrel állunk rendelkezésre. FIX 3% lakáshitelre megvehető

